1 150 € / kk74 m²

Madetojankuja 5, Pukinmäki, Helsinki3h + k + s + parveke/terassi

Vuokra/kk
1 150 € / kk
Vapautuu
Heti vapaa
Asuinpinta-ala
74 m²
Huoneita
3
Rakennuksen tyyppi
Kerrostalo
Kaupunginosa
Pukinmäki
Kaupunki
Helsinki

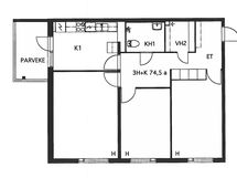
3h, avokeittiö, sauna, lasitettu parveke. Hyvien kulkuyhteyksien varrella oleva tilava asunto. 1. asuinkerros, ei maan tasalla. Lasitettu parveke etelään, huoneiden ikkunat sisäpihalle ja itään. Pohjakuva alkuperäinen, keittiön ja olohuoneen välinen seinä on purettu, vaatehuone yhdistetty kylpyhuoneeseen ja siinä sauna.

HUOM! Jätä asuntohakemus klikkaamalla Vuokraa tästä -painiketta. Hakemuksen jättäminen ei sido sinua, mutta mahdollistaa yhteydenoton vuokranantajaan!

Perustiedot

Kaupunginosa
Pukinmäki
Asuinpinta-ala
74 m²
Huoneiston kokoonpano
3h + k + s + parveke/terassi
Huoneita
3
Kunto
Hyvä
Vapautuu
Heti vapaa
Lisätietoa vapautumisesta
Heti – Toistaiseksi voimassa
Keittiön varusteet
Jääkaappi, Pakastin, Uuni, Liesi, Astianpesukone
Parveke
Kyllä
Kylpyhuoneen varusteet
Pyykkitupa, Suihku, WC
Asunnossa sauna
Kyllä
Asumistyyppi
Vuokra
Lemmikkieläimet sallittu
Kyllä
Muut ehdot
Tupakointi kielletty

Hinta

Vuokra/kk
1 150 € / kk
Lisätietoa vakuudesta
Ei vakuutta, kun käytät Qasan vuokrasopimusta ja sinulla on moitteettomat luottotiedot.
Vuokra-aika
Toistaiseksi voimassa oleva

Talon ja tontin tiedot

Rakennuksen tyyppi
Kerrostalo
Taloyhtiössä on sauna
Kyllä
Lisätietoja talosta
Siirry talosivulle