450 € / kk15,5 m²

Kotikonnuntie 3, Kontula, Helsinki1h + yhteistilat

Vuokra/kk
450 € / kk
Asuinpinta-ala
15,5 m²
Huoneita
1
Kerros
4 / 7
Rakennuksen tyyppi
Kerrostalo
Kaupunginosa
Kontula
Kaupunki
Helsinki

Huone soluasunnosta hyvällä näköalalla lähellä metroa ja palveluja. Varattu.

Huone sekasoluasunnosta hyvällä näköalalla. Kontulan metrolle ja ostoskeskukselle n. 7 min. kävelymatka. Metropolian kampus on yhden metropysäkin päässä.

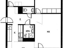
Huone 1 n. 11,3 m2, 400 eur/kk, (punainen) varattu. Huone 2 n. 15,5 m2, 450 eur/kk, (keltainen) varattu. Yhteiset tilat: eteinen, keittiö, kylpyhuone, erillinen WC, n. 20,5 m2. Vuokran lisäksi peritään sähkö-, vesi- ja nettimaksu 50 eur/kk. 2 kk:n takuuvuokra. Vuokrataan ilman kalusteita.

Asunto sijaitsee rauhallisessa paikassa, etsitään samanlaista vuokralaista. Solmitaan määräaikainen vuokrasopimus 12 kk:ksi, jonka jälkeen on mahdollista jatkaa. Tupakointi ja lemmikit eivät ole sallittu. Luottotiedot tarkistetaan. Tulee koko vuokrasuhteen ajan olla voimassaoleva kotivakuutus vastuuvakuutusosineen

Keittiön kodinkoneet ja astiat sekä taloyhtiön pesutupa ovat asukkaiden vapaasti käytettävissä. Saunavuoro ja parkkipaikka omalla sopimuksella.

Perustiedot

Kaupunginosa
Kontula
Kohdenumero
16245302
Kerros
4 / 7
Asuinpinta-ala
15,5 m²
Pinta-alojen lisätiedot
Huone 1: 11,3 m2 + 20,5 m2 yhteistilat
Huone 2: 15,5 m2 + 20,5 m2 yhteistilat
Huoneiston kokoonpano
1h + yhteistilat
Huoneita
1
Kunto
Hyvä
Lisätietoa vapautumisesta
Huone 1 varattu. Huone 2 varattu.
Keittiö
Keittiö
Keittiön varusteet
Astianpesukone, Jääkaappi, Pakastin, Paljon kaappitilaa, Paljon työskentelytilaa
Parveke
Ei
Parvekkeen lisätiedot
Parveke huoneen 3 yhteydessä.
Kylpyhuoneen varusteet
Suihku, Suihkuseinä, Peilikaappi, Erillinen WC
Ominaisuudet
Valoisa, Sälekaihtimet, Paljon ikkunoita
Ikkunoiden suunta
Ikkunoita itään
Näkymät
Kauniit avarat näkymät
Tehdyt remontit
Saniteettitilat ovat uudistettu putkiremontin yhteydessä v. 2018 lopussa.
Lemmikkieläimet sallittu
Ei
Palvelut
Kirjasto 550 m. Terveyskeskus 550 m. Puisto lähellä
Muut ehdot
Tupakointi kielletty. Kotivakuutus vaaditaan. Luottotiedot tarkistetaan.
TV-palvelut
Keskusantenni
Tietoliikennepalvelut
Nettiyhteys

Hinta

Vuokra/kk
450 € / kk
Vakuus
1 000 €
Lisätietoa vakuudesta
Kahden kk:n vuokran lisämaksuineen suuruinen: h 1 - 900 eur, h 2 - 1000 eur.
Vuokra-aika
Määräaikainen

Muut maksut

Muut kustannukset
Sähkö-, vesi- ja nettimaksu 50 eur/kk. Sauna: joka viikko 15 eur/kk, joka toinen vko 7,5 eur/kk. Autopaikka: sähköpistoke 20 eur/kk, ei sähköpistoketta 12,5 eur/kk. Varasto: pieni 15 eur/kk, iso 45 eur/kk. Maksut pitää tarkistaa taloyhtiöstä.

Talon ja tontin tiedot

Rakennuksen tyyppi
Kerrostalo
Kerroksia
7
Taloyhtiössä on sauna
Ei
Lisätietoa taloyhtiön saunasta
Oma sopimus: joka vko 10,00 eur, joka toinen vko 5,00 eur.
Harrastusmahdollisuudet
Vesalan kenttä 400 m. Uimahalli 550 m.
Liikenneyhteydet
Bussipysäkki 94A, 97N n. 70 m. Bussipysäkki 560 ja metroasema 750 m.
Lisätietoja talosta
Siirry talosivulle