70 000 €1 857 m²

Simonkyläntie 38, Ruskeasanta, Vantaa

Velaton hinta
70 000 €
Tontin pinta-ala
1 857 m²
Kaupunginosa
Ruskeasanta
Kaupunki
Vantaa

Rakennuttaja heti rakentamaan!

RAKENNUSLUPA VALMIINA. PYYDÄ LUPAMATERIAALI VÄLITTÄJÄLTÄ.

HUOM!

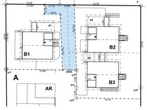
MUUTOSKUVILLA RAKENNUS B2 JA B3 ON MAHDOLLISTA TOTEUTTAA MYÖS ILMAN KELLARITILOJA.

Upea kohde arvostetulla Ruskeasannan alueella, Tikkurilan ja Tammiston palvelujen vieressä, hyvien liikenneyhteyksien kupeessa. Tontti jaettu hallinanjakosopimuksella osiin A, B1, B2 ja B3. Koko tontin pinta-ala on 1857m2.

Nyt mahdollisuus ostaa kerralla määräosat B1, B2 ja B3.

määräosa B1 = 70 000€ määräosa B2 = 70 000€ määräosa B3 = 70 000€

Rakennusoikeus osilla B1, B2 ja B3 on yhteensä 300m2. Jokaiseen rakennukseen osoitettu kaksi autopaikkaa. Määräosien kokonaisrakennusoikeus on määrätty hallinnanjakosopimuksessa. Tonttitehokkuusluku tontilla on 0.3.

Jokaiseen määräosaan B1, B2 ja B3 sisältyy 450 000€ suuruinen panttikirja mikä siirtyy ostajalle.

Pyydä lisätietoja välittäjältä. Tonttiin voi myös käydä itsenäisesti tutustumassa.

Asemakaavamääräykset:

AP4 = Asuinpientalojen korttelialue: Rakennus tai rakennukset jäsenneltävä enintään kahden asunnon osiin, jotka selvästi erottuvat toisistaan. Jokaisella asunnolla on oltava tarkoituksenmukaisesti näkösuojattu, asuntoon liittyvä ulko-oleskelutila, jolle on järjestettävä pääsy ulkokautta.

Autopaikkojen vähimmäismäärä 1 autopaikka/asunto

Perustiedot

Sijainti
Simonkyläntie 38, 01390 Vantaa
Kaupunginosa
Ruskeasanta
Kohdenumero
21114843
Tonttityyppi
Omakotitalotontti
Tontin pinta-ala
1 857 m²
Palvelut
Puisto lähellä, Päiväkoti lähellä

Hinta

Velaton hinta
70 000 €
Myyntihinta
70 000 €
Neliöhinta
37,70 € / m²

Talon ja tontin tiedot

Rakennuksen tyyppi
Omakotitalotontti
Kaavoitustiedot
Asemakaava Kiinteistötunnus 92-67-103-4
Liikenneyhteydet
Bussipysäkki lähellä, Sujuvat yhteydet omalla autolla
Tontin kuvaus
Tontti jaettu hallinanjakosopimuksella osiin A, B1, B2 ja B3. Koko tontin pinta-ala 1857m2.
Tontin omistus
Oma