79 050 €743 m²

Myrstenintie, Söderkullan kartanon asuinalue, Sipoo

Velaton hinta
79 050 €
Tontin pinta-ala
743 m²
Kaupunginosa
Söderkullan kartanon asuinalue
Kaupunki
Sipoo

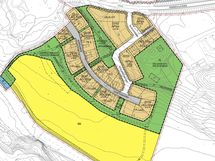
Söderkullan kartanon asuinalueen omakotitalotontit

Sipoon kunnan Söderkullan kartanon asuinalueen uudet omakotitalotontit tulevat vaiheittain myyntiin 25.8.2025 alkaen. Tontit myydään huutokaupalla. Lisätietoja tonteista ja huutokaupasta löydät Sipoon kunnan sivuilta osoitteesta https://www.sipoo.fi/rakentaminen/omakotitontit-soderkullan-kartanon-asuinalue/

Perustiedot

Kaupunginosa
Söderkullan kartanon asuinalue
Kohdenumero
23526446
Tonttityyppi
Omakotitalotontti
Tontin pinta-ala
743 m²

Hinta

Velaton hinta
79 050 €
Myyntihinta
79 050 €
Neliöhinta
106,39 € / m²

Talon ja tontin tiedot

Rakennuksen tyyppi
Omakotitalotontti