23 250 €7 750 m²

Tillolantie 41, Kausala, Iitti

Velaton hinta
23 250 €
Tontin pinta-ala
7 750 m²
Kaupunginosa
Kausala
Kaupunki
Iitti

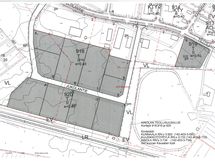
Teollisuustontti yhteyksien ytimessä valtatie 12 varrella

Teollisuustontti sijaitsee peltomaalle rakentuvalla teollisuus- ja varastorakennusten korttelialueella valtatie 12 läheisyydessä, tien pohjoispuolella.

Kunnallistekniikka on alueella valmiina ja lisäksi tämän alueen kiinteistöt on mahdollista liittää kaukolämpöverkkoon. Alueella toimiva sähköverkkoyhtiö on investoinut merkittävästi turvatakseen asiakkailleen häiriöttömän sähkön sähkönjakelun.

Tutustu alueeseen ja sijoitu Iittiin:

https://www.iitti.fi/sijoitu/

https://kartta.iitti.fi

Perustiedot

Sijainti
Tillolantie 41, 47400 Iitti
Kaupunginosa
Kausala
Kohdenumero
13573704
Tonttityyppi
Muu tontti
Tontin pinta-ala
7 750 m²
Rannan (vesistön) tyyppi
Ei rantaa
Rannan omistus
Ei rantaa
Ajo-ohjeet
Vt12 liikenneympyrästä Kouvolaan päin n. 2km, oikealle Jukolantietä 100m. Tillolantietä vasemmalle n.500m
Palvelut
Kausalan taajamapalvelut 2,5km
Kiinteistötunnus
142-403-3-763

Hinta

Velaton hinta
23 250 €
Myyntihinta
23 250 €
Neliöhinta
3 € / m²

Muut maksut

Muut kustannukset
Tontin myynnin yhteydessä veloitetaan lohkomiskulut Maanmittauslaitoksen kulloinkin voimassa olevan hinnaston mukaisesti. Määräaloilla lohkomiskuluista vastaa ostaja. Kaupanvahvistajan maksusta vastaa ostaja. Tontilla mahdollisesti kasvavan puuston arvo veloitetaan ostajalta kaupanteon yhteydessä tai vaihtoehtoisesti voidaan sopia, että kunta poistaa puuston kaupanteon jälkeen.

Talon ja tontin tiedot

Rakennuksen tyyppi
Muu tontti
Kunnallistekniikka
On
Kaavoitustiedot
Asemakaava
Kaavatilanne
Kaavavaraus teollisuus(T) kerrosluku II, tonttitehokkuus e=0,4
Rannan (vesistön) tyyppi
Ei rantaa
Rakennusoikeus
40% tontin pinta-alasta
Maasto
Tasainen