31 500 €1,05 ha

Jukolantie 9, Kausala, Iitti

Velaton hinta
31 500 €
Tontin pinta-ala
1,05 ha
Kaupunginosa
Kausala
Kaupunki
Iitti

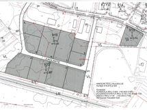
Teollisuustontti Kausalassa valtatie 12 eteläpuolella, Ainolan teollisuusalueella

Teollisuustontti valtatie 12 eteläpuolella, Ainolan teollisuusalueella.

Kunnallistekniikka on valmiina ja mahdollisuus toteuttaa nopea tietoliikenneyhteys valokuitukaapelilla. Alueella toimiva sähköverkkoyhtiö on investoinut merkittävästi turvatakseen asiakkailleen häiriöttömän sähkön sähkönjakelun.

Tutustu alueeseen ja sijoitu Iittiin: https://www.iitti.fi/sijoitu/

https://kartta.iitti.fi

Perustiedot

Sijainti
Jukolantie 9, 47400 Iitti
Kaupunginosa
Kausala
Kohdenumero
13573690
Tonttityyppi
Muu tontti
Tontin pinta-ala
1,05 ha
Rannan (vesistön) tyyppi
Ei rantaa
Rannan omistus
Ei rantaa
Ajo-ohjeet
Vt12 liikenneympyrästä Kouvolaan päin noin 2km, oikealla Jukolantie.
Palvelut
Kausalan taajamapalvelut noin 3km.
Kiinteistötunnus
142-403-3-763

Hinta

Velaton hinta
31 500 €
Myyntihinta
31 500 €
Neliöhinta
3 € / m²

Muut maksut

Muut kustannukset
Tontin myynnin yhteydessä veloitetaan lohkomiskulut Maanmittauslaitoksen kulloinkin voimassa olevan hinnaston mukaisesti. Määräaloilla lohkomiskuluista vastaa ostaja. Kaupanvahvistajan maksusta vastaa ostaja. Tontilla mahdollisesti kasvavan puuston arvo veloitetaan ostajalta kaupanteon yhteydessä tai vaihtoehtoisesti voidaan sopia, että kunta poistaa puuston kaupanteon jälkeen.

Talon ja tontin tiedot

Rakennuksen tyyppi
Muu tontti
Kunnallistekniikka
Alueen kunnallistekniikka on valmis.
Kaavoitustiedot
Asemakaava, https://iitti.karttatiimi.fi
Kaavatilanne
Kaavavaraus teollisuus(T) kerrosluku II, tonttitehokkuus e=0,4
Rannan (vesistön) tyyppi
Ei rantaa
Rakennusoikeus
40% tontin pinta-alasta.
Maasto
Tasainen