37 290 €1,24 ha

Jukolantie 12, Kausala, Iitti

Velaton hinta
37 290 €
Tontin pinta-ala
1,24 ha
Kaupunginosa
Kausala
Kaupunki
Iitti

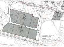
Teollisuustontti Kausalassa

Teollisuustontti valtatie 12 eteläpuolella, Ainolan teollisuusalueella.

Kunnallistekniikka on valmiina ja mahdollisuus toteuttaa nopea tietoliikenneyhteys valokuitukaapelilla. Alueella toimiva sähköverkkoyhtiö on investoinut merkittävästi turvatakseen asiakkailleen häiriöttömän sähkön sähkönjakelun.

Tonttitiedustelut ja varaukset: Yhteydenottolomakkeella voit pyytää lisätietoja tontista tai varata sen itsellesi. Tonttitiedustelut puhelimitse Iitin kunnan maankäyttöinsinööriltä ma-pe klo 9–15.

Tutustu alueeseen ja sijoitu Iittiin:

https://www.iitti.fi/sijoitu/

https://kartta.iitti.fi

Perustiedot

Sijainti
Jukolantie 12, 47400 Iitti
Kaupunginosa
Kausala
Kohdenumero
13573671
Tonttityyppi
Muu tontti
Tontin pinta-ala
1,24 ha
Rannan (vesistön) tyyppi
Ei rantaa
Rannan omistus
Ei rantaa

Hinta

Velaton hinta
37 290 €
Myyntihinta
37 290 €
Neliöhinta
3 € / m²

Muut maksut

Muut kustannukset
Lohkomiskulut ja tontilla olevan puuston hinta

Talon ja tontin tiedot

Rakennuksen tyyppi
Muu tontti
Kunnallistekniikka
On
Kaavoitustiedot
Asemakaava
Kaavatilanne
Kaavavaraus teollisuus(T) kerrosluku II, tonttitehokkuus e=0,4
Rannan (vesistön) tyyppi
Ei rantaa
Rakennusoikeus
40% tontin pinta-alasta