129 000 €44 m²

Peltotie 3, Nummela, Vihti2h, k, kph, terassi

Velaton hinta
129 000 €
Hoitovastike
272,80 € / kk
Asuinpinta-ala
44 m²
Huoneita
2
Rakennusvuosi
2024
Rakennuksen tyyppi
Rivitalo
Kaupunginosa
Nummela
Kaupunki
Vihti

Nummelan keskustan tuntumassa sijaitseva 2024 rakennettu rivitalokaksio etsii uutta omistajaansa!

-Toimivapohjainen kaksio ilman hukkaneliöitä -Keittiössä paljon säilytys- ja laskutilaa saarekkeen ansiosta -Eteisessä upeat isot liukuovikaapistot säilytykseen -Lämmitys sisältyy vastikkeeseen -Helppohoitoinen terassipiha, pienellä nurmialueella -Asunto myydään vuokrattuna ja onkin siitä syystä mahdollisuus myös sijoittajalle

Sovi oma esittelyaikasi!

Taru Vähäkangas 040 085 7013 taru.vahakangas@asuntokauppalkv.fi

Perustiedot

Sijainti
Peltotie 3, 03100 Vihti
Kaupunginosa
Nummela
Kohdenumero
65211520
Asuinpinta-ala
44 m²
Tontin pinta-ala
7 710 m²
Kokonaispinta-ala
44 m²
Pinta-alojen lisätiedot
Yhtiöjärjestyksen mukainen, Isännöitsijäntodistuksen mukainen
Huoneiston kokoonpano
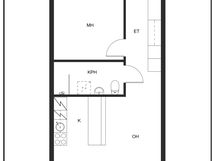
2h, k, kph, terassi
Huoneita
2
Kunto
Hyvä
Lisätietoa vapautumisesta
Kohde on vuokrattu. Vuokrasuhde alkanut 1.10.2024. Irtisanomisaika vuokranantajalla 6kk.
Keittiön varusteet
Työtaso: Laminaattitaso. Jääkaappipakastin, liesi, liesituuletin hormiin, astianpesukonevaraus, kiinteät valaisimet, kaapistot, saareke
Terassin kuvaus
Asunnossa on terassi. Terassin ilmansuunta: Etelä
Kylpyhuoneen varusteet
Kylpyhuone, suihku, suihkuseinä, pesukoneliitäntä, peili, lattialämmitys. WC: Kylpyhuoneen yhteydessä . Varusteet: Lattialämmitys
Näkymät
pohjoinen, etelä
Tulevat remontit
Kunnossapitotarveselvitys vuosille 2025-2029: 2025: IV-kanavien nuohous B- ja C-talot 2025-2029: B-C talojen kattoremontti palokatkoineen 2025-2029: B-C talojen varastokoppien korjauksia tarpeen mukaan (tarjous A-talon rakennuttajalta), autosähkölatauksen mahdollistaminen, vesimittareiden asennus B-C taloihin
Tehdyt remontit
2024: A-talon uudelleen rakennus, DNA-verkkoon liittyminen kaapeli tv:n lisäksi, B- ja C-taloissa palovaroittimet asennettu huoneistoihin. 2023: Lämmityspattereiden tarkastus, lämpöyhtiössä vesi-ilmalämpöpumppujen käyttöönotto kaukolämmön rinnalle, lämpöyhtiön lämmitysmuoto vaihdettiin kaukolämpöön. 2021: Rakennusten viemäputkien sukitus. 2019: Sadevesiremontti. 2018: Sisäilma- ja kosteustekninen tutkimus missä tutkittu 7 asuntoa, Raksystems kuntoarvio RS 15, yhden huoneiston rakennevauriokorjaukset. 2017: Pistorasiat tarkastettu ja taloyhtiön vastuulle kuuluvat viat korjattu, sisäilma- ja kosteustekninen tutkimus koskien yhtä asuntoa, pesuhuoneita uusittu 1kpl. 2016: Antenniverkostoa korjattu, kaikkiin asuntoihin lisätty tuloilmaventtiileitä sisäilman parantamiseksi. 2014: Pesuhuoneita uusittu 2kpl. 2013: Pesuhuoneiden kosteusmittaukset, pesuhuoneita uusittu 1kpl. 2008-2009: Kylpyhuoneita uusittu 9kpl. 2004: Ulko-ovet uusittu. 1999: Käyttövesiputkisto uusittu. 1994: Ikkunat uusittu. 1985: Harjakatto
Asunnossa sauna
Ei
Asumistyyppi
Omistus
Palvelut
Koulut: Kuoppanummen koulukeskus (1-9lk.) 0,5km, Luksia ammattikoulu 0,3km, Vihdin lukio 1,2km
Päiväkoti: Kuoppanummen päiväkoti 0,5km, Pajuniityn päiväkoti (24h) 1,8km
Kaupat: K-Market Nummela 0,24km, Sale Nummela 0,75km, K-Supermarket ja LIDL Nummela 1,3km, Prisma ja K-Citymarket Nummela 2,1km
Kohde on
Osakehuoneisto
Postitoimipaikka
Nummela
TV-palvelut
Kaapeli-TV
Tietoliikennepalvelut
Taloyhtiölaajakaista, Kiinteä laajakaistasaatavuus

Hinta

Velaton hinta
129 000 €
Myyntihinta
122 816,99 €
Neliöhinta
2 931,82 € / m²
Velkaosuus
6 183,01 €

Vastikkeet

Hoitovastike
272,80 € / kk
Pääomavastike
55,44 € / kk
Yhtiövastike yhteensä
328,24 € / kk

Muut maksut

Vesimaksun lisätiedot
Perusmaksu. 24 € / hlö / kk
Muut kustannukset
Autokatospaikka sähköpistokkeella: 10 € / kk. Tietoliikenneyhteysmaksu: 7,45 € / kk. Lämmitys sisältyy vastikkeeseen . Lisätietoa velkaosuudesta: RL5 Jätevesiviemärin saneeraus, Lämmityksen muutoslaina, A-talon rakennusurakkalaina.

Talon ja tontin tiedot

Uudiskohde
Ei
Taloyhtiön nimi
Asunto Oy Nummelan Puistokulma
Rakennuksen tyyppi
Rivitalo
Rakennusvuosi
2024
Rakennuksen käyttöönottovuosi
2024
Taloyhtiössä on sauna
Kyllä
Rakennusmateriaali
Pääasiallinen rakennusmateriaali: Puu
Kattomateriaali
Peltikate
Kattotyyppi
Harjakatto
Energialuokka
B2018
Ilmastointijärjestelmä
Koneellinen tulo, Koneellinen poisto, Lämmöntalteenotto
Tontin koko
7 710 m²
Kiinteistönhoito
Huoltoyhtiö. Nummelan Huoltokaksikko Oy
Isännöinti
Kiinteistö-Tahkola Helsinki Oy Salla Sundström salla.sundstrom@kiinteistotahkola.fi +358207481054
Kaavoitustiedot
Asemakaava
Pihan kuvaus
Asunnossa oma piha.
Lämmitys
Kaukolämpö, Ilmavesilämpöpumppu
Lisätietoja lämmityksestä
Lämmitystapa: Kaukolämpö, Ilmavesilämpöpumppu. Lämmönjakotapa: Vesikiertoinen patterilämmitys
Lisätietoja talosta
Siirry talosivulle
Tontin omistus
Oma

Tilat ja materiaalit

Pysäköintitilan kuvaus
Ulkoautopaikka sähköpistokkeella, Autokatospaikka sähköpistokkeella. Autopaikat jaetaan jonotusperiaatteella. Oven edessä myös kadunvarsi pysäköinti mahdollisuus.
Keittiön lattia
Laminaattilattia
Keittiön seinä
Maalattu seinä
Makuuhuoneen lattia
Laminaattilattia
Makuuhuoneen seinät
Maalattu seinä
Kylpyhuoneen lattia
Laattalattia. WC: Laattalattia
Kylpyhuoneen seinät
Kaakeliseinä. WC: Kaakeliseinä
Olohuoneen lattia
Laminaattilattia
Olohuoneen seinät
Maalattu seinä
Ominaisuudet
Sälekaihtimet, kiinteät valaisimet .