37 000 €52 m²

Repokankaantie 16, Repokangas, Varkaus2h+k+kph+s+var+ter

Velaton hinta
37 000 €
Hoitovastike
150 € / kk
Asuinpinta-ala
52 m²
Huoneita
2
Rakennuksen tyyppi
Rivitalo
Kaupunginosa
Repokangas
Kaupunki
Varkaus

Tervetuloa asumaan Repokankaalle! Reppari on tykätty asuinalue, etenkin lapsiperheiden keskuudessa. Leikkipuisto ja kenttä luisteluun tai kesällä futiksen pelaamiseen löytyy aivan vierestä. Lähimpään kouluun on alle kilometri ja lähin kauppa, ABC löytyy 900 metrin päästä. Uusimpaan kauppakeskukseen Prismaan on alle 2km ja keskustaan hieman yli 2km.

Itse asunto on vuonna 1982 valmistuneessa tiilivuoratussa rivitalossa, missä on uusittu muun muassa ikkunat, ovet, tiilikaton pinnoitus sekä muun muassa takapihojen aidat on lähivuosina laitettu uusiksi. Samoihin aikoihin huoneiston omalle takapihalle on rakennettu myös koristekuusiin asti ylettyvä viihtyisä terassi. Sisäänkäynti asuntoon ja terassille on ESTEETÖN, jonka vuoksi kulku on helppoa, koska tasoeroakaan sisätilojen lattiaan nähden ei juurikaan ole! Isoja kunnostuksia ei ole 5 vuotissuunnitelmassa näköpiirissä - suunnitteilla on salaojien huuhtelua ja kuvausta, jätekatoksen uusimista sekä sadevesikourujen ja syöksytorvien sekä laudoitusten uusimista.

Itse huoneistossa on neliöt käytetty tehokkaasti niihin tiloihin, missä sitä aikaa vietetäänkin eli olohuoneeseen ja makuuhuoneeseen. Makkarin seinä on täynnä kaappeja, joita löytyy lisää myös eteisestä. Wc toiminnot ovat pesuhuoneen yhteydessä ja omaan saunaan pääset milloin tahansa! Pesuhuone, sauna sekä keittiö on remontoitu edellisen omistajan aikana vuosien 2005-2011 välillä.

Tämä koti on heti vapaa, joten uuden kotisi avaimet saat käteesi kaupan teossa! Asunto on perus siisti, joten pakottavaa uusimista ei heti ole. Mikäli kuitenkin haluat laittaa tapetteja oman väripalettisi mukaiseksi, niin asunnon ilmettä uusii hyvinkin kustannustehokkaasti.

Tämä koti esitellään sinulle täysin omassa rauhassa ja yksityisesti. Ollaanhan soitossa tai laittele meille viestiä, niin mennään katsomaan!

Perustiedot

Kaupunginosa
Repokangas
Kohdenumero
50653847
Asuinpinta-ala
52 m²
Tontin pinta-ala
2 640 m²
Kokonaispinta-ala
52 m²
Pinta-alojen lisätiedot
Yhtiöjärjestyksen mukainen, Isännöitsijäntodistuksen mukainen
Huoneiston kokoonpano
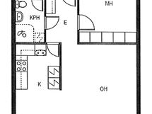
2h+k+kph+s+var+ter
Huoneita
2
Kunto
Hyvä
Keittiön varusteet
Varusteet: Pakastin, Astianpesukone. Liesi: Keraaminen liesi. Keittiö uusittu vuonna 2005-2011 välissä (tarkkaa ei tiedossa). Välitila on laatoitettu, keittiön kaapit ovat valkeilla puuovilla. Liesituuletin, jotta huippuimurin ohjaus (poistoilmanvaihto)
Terassin kuvaus
Asunnossa on terassi.
Kylpyhuoneen varusteet
Varusteet: Pesukoneliitäntä, Lattialämmitys, WC, Suihku, Peilikaappi, Kiinteät valaisimet. Kylpyhuone uusittu 2005-2011 välissä (tarkkaa ei tiedossa). WC-toiminnot kylpyhuoneen yhteydessä.
Säilytystilat
Ulkovarasto. Oma ulkovarasto on suoraan ulko-oven vieressä.
Tulevat remontit
Kunnossapitotarveselvitys: A-B talojen salaojien huuhtelu ja kuvaus 2024, jätekatoksen uusiminen. Betonirappujen kunnostus Otsalaudat takapihalle, sadevesikourut ja syöksytorvet 2023. Varastojen aluslaudoitusten uusiminen ja korjaaminen huonokuntoisten tilalle.
Tehdyt remontit
Nykyisen omistajan aikana: 2018: -Terassin rakennus. -Astianpesukone uusittu. -Olohuoneen tapetit uusittu. Edellisen omistajan aikana v.2005-2011 välissä: -Kylpyhuone ja sauna uusittu. -Keittiö uusittu. -Keraaminen liesi uusittu. Pintaremonttia. Toimeksiantaja on tehnyt huoneistossa muutostöitä Muutostöistä on ilmoitettu taloyhtiölle: Ei tiedossa Korjauksiin haettu / saatu lupa rakennusvalvontaviranomaiselta: Ei tiedossa Lopputarkastus tehty: Ei tiedossa Em. Korjauksiin liittyvät suunitelmat ja asiakirjat toimeksiantajalla: Ei tiedossa. 2008: Vesikourut korjattu/uusittu 2012: Etu-, ja takaovet uusittu, lukkojen uusiminen 2015: lämmitystolppien pistorasioiden uusiminen, ilmastokanavien puhdistus 2016: Katto-, ja piharemontti (sadevesijärjestelmän uusiminen) 2017: Välikaton kulkisiltojen rakentaminen 2018: A-talon taka-aitojen suunnittelu ja toteutus, huippuimureiden uusiminen 2021: Ikkunat vaihdettu 2023: Rännien uusinta, valokatteiden uusinta terasseille
Asunnossa sauna
Kyllä
Saunan lisätiedot
Varusteet: Sähkökiuas. Sauna uusittu kylpyhuoneremontin yhteydessä. Seinämateriaali: Puuseinä
Asumistyyppi
Omistus
Kohde on
Osakehuoneisto
Postitoimipaikka
Varkaus
TV-palvelut
Kaapeli-TV

Hinta

Velaton hinta
37 000 €
Myyntihinta
37 000 €
Neliöhinta
711,54 € / m²

Vastikkeet

Hoitovastike
150 € / kk
Yhtiövastike yhteensä
150 € / kk

Muut maksut

Vesimaksun lisätiedot
Kulutuksen mukaan
Autopaikan kustannukset
8 € / kk

Talon ja tontin tiedot

Uudiskohde
Ei
Taloyhtiön nimi
Asunto Oy Varkauden Kalevanpuisto
Rakennuksen tyyppi
Rivitalo
Rakennuksen käyttöönottovuosi
1982
Rakennusmateriaali
Pääasiallinen rakennusmateriaali: Rakennusmateriaali: muu. Rakennusmateriaali: puu, tiili.
Kattomateriaali
Tiili
Kattotyyppi
Harja
Energialuokka
Ei lain edellyttämää energiatodistusta
Tontin koko
2 640 m²
Kiinteistönhoito
Asukkaat itse. Osakkaat itse, koneelliset lumityöt ulkoistettu.
Isännöinti
ISTO Isännöinti, Markku Damski, puh: +358 10 411 8150 markku.damski@isto.fi
Kaavoitustiedot
Asemakaava
Pihan kuvaus
Asunnossa oma piha. Lounaan suuntaan valoisa takapiha, mihin on rakennettu vuonna 2018 puinen terassi. Terassi ylettyy koristekuusiin asti. Terassille helppo kulku, ei isoa tasoeroa. Terassin reuna-aidat hiljattain uusittu myös.
Lämmitys
Sähkö
Lisätietoja lämmityksestä
Lämmitystapa: Sähkölämmitys
Tontin vuokra päättyy
31.12.2031
Lisätietoja talosta
Siirry talosivulle
Maanvuokraaja
Varkauden Kaupunki
Tontin omistus
Vuokralla

Tilat ja materiaalit

Pysäköintitilan kuvaus
Ulkoautopaikat vuokrattavissa taloyhtiöltä.
Keittiön lattia
Parkettilattia
Keittiön seinä
Maalattu seinä
Makuuhuoneen lattia
Laminaattilattia
Makuuhuoneen seinät
Maalattu seinä, Tapettiseinä
Lisätietoja makuuhuoneen varusteista
Makuuhuoneessa yksi seinä täynnä kaapistoja, joten kaappitilaa on reilusti!
Kylpyhuoneen lattia
Laattalattia
Kylpyhuoneen seinät
Kaakeliseinä
Olohuoneen varusteet
Olohuoneen ja makuuhuoneen ikkunoissa on raitisilmaventtiilit.
Olohuoneen lattia
Parkettilattia
Olohuoneen seinät
Maalattu seinä, Tapettiseinä
Ominaisuudet
kaapistot, sälekaihtimet/rullaverhot, verhotangot, huoneistokohtainen ilmanvaihtokone, markiisi, pihavarusteet Muuta kauppaan kuuluvaa: Takapihalla on terassi ja markiisi.