399 990 €109 m²

Sotkatie 4, Korso, Vantaa5h (4mh + K, RT,OH + 2xWC+SH+KHH+S)

Myyntihinta
399 990 €
Asuinpinta-ala
109 m²
Huoneita
5
Kerroksia
2
Rakennusvuosi
2026
Rakennuksen tyyppi
Omakotitalo
Kaupunginosa
Korso
Kaupunki
Vantaa

2 Uutta omakotitaloa Korsossa

Haluatko uudisrakennuksen, mutta hinta on liian korkea? Myymme mahdollisuuden saada nelimakuuhuoneisen talon alle 400 000 eurolla.

Myymme kaksi rakennustonttia, joihin sisältyy rakennuslupa ja avaimet käteen -periaatteella kiinteähintaiset rakennussopimukset.

Tontit myydään hintaan 69 000 euroa kappaleelta. Tontit on jaettu hallinjakosopimuksella.

Rakennuskustannukset ovat noin 330 000 euroa. Tämä sisältää sopimuksen Kastellin kanssa (275 000 euroa). Tämä sopimus siirtyy ostajalle maan myynnin yhteydessä.

Työnjohtajan ja pääsuunnittelijan sopimuskustannukset jaetaan 50/50 kahden tontin omistajan kesken (5500 euroa taloa kohden).

Maanrakennusurakka jaetaan myös 50/50 toisen talon omistajien kanssa, ja se on myös järjestetty (40 000 euroa tontin omistajaa kohden). Mahdolliset odottamattomat lisäkustannukset ovat tontin omistajan vastuulla, jos lisäkustannukset syntyvät.

Molemmat talot rakennetaan samaan aikaan, ja rakentaminen ajoitetaan toisen tontin myyntiin.

HSY:n ja Sähkö liity hintaan erikseen mutta yhteensä 6000 euroa per talo. Tämä on HSY:n ja Vantaan Energia Sähköverkkojen hinnaston mukainen. Jokaisella talolla on omat vesi- ja sähköliittymänsä.

Joitakin lisäkustannuksia ei ole budjetoitu, kuten talon lämmityskustannuksia rakentamisen aikana, rakennusjätteen poiskuljetusta työmaalta ja talon viimeistä maalikerrosta.

Rakennuskustannuksia ei taata tontin myynnin yhteydessä. Esitetyt kustannukset ovat kuitenkin tiedossa olevat ja sovitut kustannukset.

Ostajan vastuulla on ottaa pankiltaan asuntorakennuslaina tontin myynnin ehtona ennen kuin maan myynti voi alkaa. Hanketta ei voida viivästyttää, koska ostaja ei saa rakennuslainoja.

Rakentamisen on tarkoitus alkaa keväällä 2026 ja valmistua vuoden 2026 loppuun mennessä.

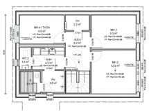
Jokaisessa talossa on 131 m²:n kerrosala, jossa käytettävissä olevaa tilaa on noin 109 m².

Talot on suunniteltu erittäin tehokkaasti ja jokaisessa on neljä makuuhuonetta, joten ne sopivat erinomaisesti perheille.

Taloissa on energiatehokas ilmavesilämpöpumppu ja lattialämmitys kaikkialla.

Keittiön ja kiinteät kalusteet on suunnitellut ja toimittanut Puusteli.

Ostajalla on mahdollisuus valita kaikki talon pintamateriaalit.

Also in English

Do you want a newly constructed house but the price is too high? We are selling the possibility of getting a 4 bedrooms house for potentially less than 400 000 euros.

We are selling two building plots including building permission and key in hand fixed price contracts to construct them.

The plots are being sold for 69 000 euros each. The plots are divided by a hallinanjakosopimus (shared land agreement, you own the land defined in the map in the agreement, the land is not divided into its own registered property number, there is one property number for both houses).

Construction costs will be approximately 330 000 euros. This includes the contract with Kastelli (275 000 euros). This contract will be transferred to the buyer at the time of sale of the land.

The työnjohtaja (work foreman) and pääsuunnitelija (Main planner). contracted costs will be split 50/50 between the two plot owners. (5500 euros per house)

The ground works contract will also be split 50/50 with the owners of the other house and has also been organised. (40 000 euros per plot owner). Any additional unforeseen costs are the responsibility of the plot owner where the additional costs occur.

Both houses will be constructed at the same time and construction will be scheduled when one of the plots are sold.

HSY and Vantaa Sähköverkko connection costs are approximately 6000 euros total per house. This is according to the set price list from HSY and Vantaa Energia Sähköverkkot. Each house will have their own water and electricity connections.

Some additional costs are not budgeted for, e.g. heating costs of the house during construction, construction rubbish removal from the site and the final coat of paint to the house.

The construction costs are not guaranteed with the sale of the plot. However what is presented are the known and contracted costs.

The buyer is responsible for securing a home construction loan from their bank as a condition of the plot sale before the land sale can proceed. The project cannot be delayed because the buyer is unable to get construction loans.

Construction is scheduled to begin in spring 2026 and be completed by the end of 2026.

Each house has a floor area of ​​131 m², with approximately 109 m² of usable space.

The houses are designed very efficiently and each has four bedrooms, making them ideal for families.

The houses have an energy-efficient air-to-water heat pump and underfloor heating throughout.

The kitchen and built-in furniture have been designed and supplied by Puusteli.

The buyer has the option to choose all the surface materials in the house.

Perustiedot

Sijainti
Sotkatie 4, 01450 Vantaa
Kaupunginosa
Korso
Kohdenumero
23237499
Kerroksia
2
Asuinpinta-ala
109 m²
Tontin pinta-ala
801 m²
Kokonaispinta-ala
131 m²
Pinta-alojen lisätiedot
Kerrosala 131m2
Kerrosala us250 125m2
Huoneistöala 109m2.
Huoneiston kokoonpano
5h (4mh + K, RT,OH + 2xWC+SH+KHH+S)
Huoneita
5
Kunto
Hyvä
Kunnon lisätiedot
Uusi
Keittiö
Avokeittiö
Keittiön varusteet
Tilaa isolle ruokapöydälle, Paljon kaappitilaa, Paljon työskentelytilaa, Laminaattitasot, Astianpesukone, Liesisaareke, Induktioliesi, Liesituuletin, Sähköliesi, Jääkaappi, Pakastin
Kylpyhuoneen varusteet
Useita suihkuja
Säilytystilat
Vaatehuone
Ikkunoiden suunta
Ikkunoita itään, Ikkunoita länteen, Ikkunoita etelään, Ikkunoita pohjoiseen
Rannan (vesistön) tyyppi
Muu ranta
Rannan kuvaus
Pohjoispuolella on tontin levyinen pieni puro.
Rannan omistus
Oma ranta
Asunnossa sauna
Kyllä
Saunan lisätiedot
Sähkökäyttöinen kiuas
Asumistyyppi
Omistus
Kohde on
Kiinteistö

Hinta

Myyntihinta
399 990 €

Vastikkeet

Hoitovastike
/ kk

Talon ja tontin tiedot

Valmistumisaika
2026
Uudiskohde
Kyllä
Rakennuksen tyyppi
Omakotitalo
Rakennusvuosi
2026
Rakennuksen käyttöönottovuosi
2026
Rakennusmateriaali
Puu
Kattomateriaali
Pelti
Kattotyyppi
Harjakatto
Energialuokka
B2018
Kunnallistekniikka
Vesi ja viemäri liittymet tontilla jo.
Ilmanvaihto
Koneellinen, lämmön talteenotolla
Tontin koko
801 m²
Rannan (vesistön) tyyppi
Muu ranta
Rakennusoikeus
262
Lisätietoa rakennusoikeudesta
2x131m2
Lämmitys
Ilmavesilämpöpumppu
Lämmönjakelu
Vesikiertoinen lattialämmitys
Rungon rakennustapa
Elementti
Tontin omistus
Oma