45 000 €62 m²

Kalevantie 17, Sorvakko, Uusikaupunki2h+k

Velaton hinta
45 000 €
Hoitovastike
254,08 € / kk
Asuinpinta-ala
62 m²
Huoneita
2
Kerros
3 / 5
Rakennusvuosi
1969
Rakennuksen tyyppi
Kerrostalo
Kaupunginosa
Sorvakko
Kaupunki
Uusikaupunki

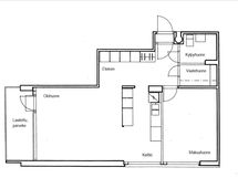
Heti vapaa hissitalon asunto suositulla Sorvakon asuinalueella lähellä merenrantaa, liikuntapaikkoja ja luontoa. Kolmannen kerroksen peruskuntoinen asunto, jossa olohuoneen jatkeena lasitettu parveke. Keittiö on olohuoneen vieressä ja perällä on hyvän kokoinen makuuhuone. Makuuhuoneen vieressä iso vaatehuone ja lähellä ovea on laatoitettu siisti kylpyhuone. Eteisessä on koko seinän verran kaappitilaa. Yhtiössä viimeisimpänä tehtynä mm. lvis-saneeraus, hissisaneeraus, ulko-ovi, parvekeovet ja ikkunat uusittu sekä liitytty valokuituinternetpalveluun. Loppukesästä valmistunut viemäreiden sukitus, joka on tämän asunnon osalta jo maksettu. Esittely ja myynti Kari Toivonen p. 0400502700

Perustiedot

Kaupunginosa
Sorvakko
Kohdenumero
21425331
Kerros
3 / 5
Asuinpinta-ala
62 m²
Tontin pinta-ala
3 000 m²
Kokonaispinta-ala
62 m²
Pinta-alojen lisätiedot
yhtiöjärjestyksen mukainen, isännöitsijäntodistuksen mukainen
Huoneiston kokoonpano
2h+k
Huoneita
2
Kunto
Tyydyttävä
Lisätietoa vapautumisesta
heti
Keittiön varusteet
Liesi: sähköliesi. Työtasot: laminaatti. Kylmäsäilytys: jääkaappi/pakastin. Varustus: kiinteät valaisimet.
Parveke
Kyllä
Parvekkeen lisätiedot
Tyyppi: lasitettu, ulostyönnetty.
Kylpyhuoneen varusteet
Pesutilojen kuvaus: Varustus: lavuaari, bidee, kaappi, suihkuverhovalmius. Varustus: pesukoneliitäntä, wc-istuin, suihku, peilikaappi, kiinteät valaisimet.
Säilytystilat
Kuvaus: Huoneistokohtaiset häkkivarastot.kellarikomero
Tulevat remontit
Kunnossapitotarveselvitys 2024: Kuntoarvion laadinta, parvekekaiteiden huoltomaalaus, parvekkeiden sisäseinien maalaus, aluevarusteiden kunnostus.
Tehdyt remontit
TALOYHTIÖSSÄ: 2003 Parvekkeiden kunnostus ja parvekelasien asennus. 2009 Liitytty kaukolämpöön, vesi- ja viemäriverk. tonttijoht. uusittu. 2010 IV-järjestelmän puhdistus ja säätö. 2011 Julkisivutason ikkunat uusittu ja jätevesiviemärien ruiskuvalupinnat. 2013 Lukkojen sarjoitus ja katon uusiminen. 2016 Salaojien ja sadevesiviemäröinnin uusiminen ja pohjaviemärien ja sadevesiviemärien pinnoitus. 2018 lvis-saneeraus. 2020 Hissisaneeraus ja ulko-oviseinän uusiminen sekä ovenaukaisun automatisointi. 2021 Vuokratontti lunastettiin omaksi. 2022 Parvekeovien ja ikkunoiden uusiminen, IV-Nuohous ja tasapainotuksen säätö, liitettiin kiinteään valokuituinternetpalveluun. 2023 Sokkelin maalaus. 2024 Yhden viemärilinjan sukitus. 2025 Loppujen viemärilinjojen sukitus.
Asumistyyppi
Omistus
Kohde on
Osakehuoneisto

Hinta

Velaton hinta
45 000 €
Myyntihinta
36 624,10 €
Lainaosuuden maksu
Kyllä
Neliöhinta
725,81 € / m²
Velkaosuus
8 375,90 €

Vastikkeet

Hoitovastike
254,08 € / kk
Pääomavastike
119,10 € / kk
Yhtiövastike yhteensä
373,18 € / kk

Muut maksut

Saunan kustannukset
3,00 e / kerta
Vesimaksun lisätiedot
oma mittari
Pysäköintimaksu
5.00 e / kk
Muut kustannukset
TV: 8.99 EUR/kk. Muut maksut: Vesiennakkomaksu 15,00€/hlö/kk, tasataan kerran vuodessa (kylmä vesi 4,87€/m3, lämmin vesi 8,76€/m3). Sähkö kulutuksen mukaan asukkaan oman sopimuksen mukaisesti. Varainsiirtovero ostajalle, erääntyy kaupanteossa.

Talon ja tontin tiedot

Uudiskohde
Ei
Taloyhtiön nimi
Asunto-Oy Tiiliranta
Rakennuksen tyyppi
Kerrostalo
Rakennusvuosi
1969
Huoneistojen lukumäärä
25
Kerroksia
5
Hissi
Kyllä
Taloyhtiössä on sauna
Kyllä
Rakennusmateriaali
tiili, muu
Kattomateriaali
Huopakate
Kattotyyppi
Tasakatto
Energialuokka
E2018
Energiatodistus
Kyllä
Kiinteistön antennijärjestelmä
kaapeli-tv
Tontin koko
3 000 m²
Kiinteistönhoito
huoltoyhtiö
Isännöinti
Vakka Isännöinti Oy Huolto-Oy Sorvakko Niko Vuorela info@huoltooysorvakko.fi p. 044 774 4600 23500 Uusikaupunki
Kaavoitustiedot
Uudenkaupungin kaupunki
Kaavatilanne
Asemakaava
Kuntotutkimus
2008 Kuntoarvio tehty vuonna 2008.
Lämmitys
Kaukolämpö
Tontin omistus
Oma

Tilat ja materiaalit

Pysäköintitilan kuvaus
piha-autopaikkoja: 25.
Yhteiset tilat
sauna, talopesula, mankeli, kellarikomero, urheiluvälinevarasto, askarteluhuone, väestönsuoja, kaapeli-tv. Taloyhtiössä muuta: Kylmäsäilytystila.
Muut tilat
Eteisessä reilusti kaappitilaa, jossa myös siivouskaappi.
Pintamateriaalit
Lattia: Keittiössä: laminaatti. Pesutiloissa: laatta. Olohuoneessa: parketti. Makuuhuoneessa: laminaatti. Seinät: Keittiössä: maalattu, puolipaneeli. Pesutiloissa: kaakeli. Olohuoneessa: tapetti. Makuuhuoneessa: tapetti.
Olohuoneen varusteet
Olohuoneesta käynti lasitetulle parvekkeelle.
Muut materiaalit
teräsbetoni