180 000 €225 m²

Kultalähteentie 3, Muhkuri, Turku6h+k+2kph+s

Myyntihinta
180 000 €
Asuinpinta-ala
225 m²
Huoneita
6
Rakennusvuosi
1968
Rakennuksen tyyppi
Omakotitalo
Kaupunginosa
Muhkuri
Kaupunki
Turku

Tilava omakotitalo omalla tontilla!

Tervetuloa tutustumaan tähän valoisaan ja avaraan kotiin Muhkurissa!

Vuonna 1968 rakennettu, osittain tiiliverhoiltu rapattu talo tarjoaa reilusti tilaa kolmessa kerroksessa.

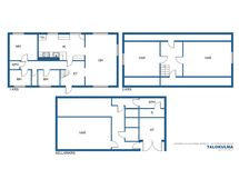
Asuinkerroksessa on tilava eteinen, avara olohuone, keittiö, remontoitu kylpyhuone sekä kolme pienempää makuuhuonetta. Alakerrassa on toinen kylpyhuone jonka yhteydessä on sauna sekä tekniset tilat ja yksi iso varastotila jota voi halutessaan käyttää myös huoneena. Yläkerta on pidetty viileänä tilana ja sieltä löytyy kaksi huonetta sekä kaappitilaa.

Alhaalla talon yhteydessä on autotalli.

Talo on peruskuntoinen jota voi remontoida omien tarpeiden mukaan. Kattoa on remontoitu ja ikkunoita vaihdettu aiemmin. Myöskään kuntokartoitusta ei taloon ole tehty.

Talossa on öljylämmitys.

Kiinteistö sijaitsee omalla tontilla (895m2) pientaloalueella. Manhattanin kauppakeskus on lähistöllä ja linja-auto menee läheltä.

Talo on tällä hetkellä vuokrattu hyville asukkaille.

Ole yhteydessä ja käydään katsomassa taloa!

Järvinen Anssi Kiinteistönvälittäjä, LKV, LVV Puh 0400 718 602 anssi.jarvinen@talokulma.fi

Talokulma LKV Järvinen Oy Logomo Byrå Junakatu 9 20100 Turku www.talokulma.fi

Haluatko ilmaisen arvion ja edullisen välityspalkkiotarjouksen? Soita tai lähetä minulle sähköpostia!

Perustiedot

Kaupunginosa
Muhkuri
Kohdenumero
80342767
Asuinpinta-ala
225 m²
Tontin pinta-ala
895 m²
Kokonaispinta-ala
225 m²
Pinta-alojen lisätiedot
Pinta-alan peruste: Ei tarkistusmitattu. Pinta-alat saattavat tämän ikäisissä kohteissa (rekisteröity ennen 01.01.1992) poiketa olennaisestikin asuinrakennusten nykyisten mittaustapojen ja standardien (SFS 5139) mukaan laskettavasta asuintilojen pinta-alasta. Pinta-ala voi siis olla edellä mainittua pienempi tai suurempi. Asuinrakennuksen asuinpinta-ala on myyjän ilmoituksen mukaan noin 225 m2 (asuinkerros 100m2 ja alakerta 125m2). Edellä mainittu pinta-ala saattaa tämän ikäisessä kohteessa poiketa olennaisestikin asuinrakennusten nykyisten mittaustapojen ja standardien mukaan laskettavasta asuintilojen pinta-alasta. Asuinrakennuksen todellinen asuinpinta-ala voi siis olla esitteessä mainittua pienempi tai suurempi.
Huoneiston kokoonpano
6h+k+2kph+s
Huoneita
6
Kunto
Tyydyttävä
Kunnon lisätiedot
Peruskuntoinen talo jossa on asuttu normaalisti. Tätä voi silti remontoida omien tarpeiden mukaan mm alakerran kylpyhuone- ja saunatilat ovat vanhoja.
Lisätietoa vapautumisesta
Sopimuksen mukaan. Myydään vuokrattuna.
Keittiön varusteet
Keittiön varusteet: Jääkaappipakastin, liesi, liesituuletin, uuni ja astianpesukone. Asuinkerroksessa keittiö josta kulku olohuoneeseen ja eteiseen. Kaappi- ja laskutilaa mukavasti. Keittiöstä löytyy kaikki tarpeellinen.
Kylpyhuoneen varusteet
Pesutilojen varusteet: WC-istuin, suihku, peilikaappi ja pesuallas. Pesutilojen kuvaus: Kylpyhuone asuinkerroksessa sekä alakerrassa saunan yhteydessä. Molemmista tiloista löytyy myös wc.
Rannan omistus
Ei rantaa
Asunnossa sauna
Kyllä
Saunan lisätiedot
Alakerrassa tilava sauna kylpyhuoneen yhteydessä.
Asumistyyppi
Omistus
Vuokrattu
Kyllä
Palvelut
Lähistöllä mm Manhattanin kauppakeskus.
Kohde on
Kiinteistö
Kiinteistötunnus
853-74-54-7
Postitoimipaikka
Turku

Hinta

Myyntihinta
180 000 €

Talon ja tontin tiedot

Uudiskohde
Ei
Rakennuksen tyyppi
Omakotitalo
Rakennusvuosi
1968
Rakennusmateriaali
Tiiliverhoilu
Kattomateriaali
Tiili
Kattotyyppi
Harjakatto
Energiatodistus
Ei lain edellyttämää energiatodistusta
Ilmastointijärjestelmä
Painovoimainen ilmanvaihto
Tontin koko
895 m²
Kaavoitustiedot
Turun kaupunki puh 02 330 000
Kaavatilanne
Asemakaava
Liikenneyhteydet
Bussipysäkki lähellä, hyvät pyöräilytiet ja sujuvat yhteydet omalla autolla www.föli.fi
Lämmitys
Öljy
Lisätietoja lämmityksestä
Öljy
Tontin omistus
Oma

Tilat ja materiaalit

Lisätietoja makuuhuoneen varusteista
Laskutavasta riippuen neljä tai viisi makuuhuonetta. Keskikerroksessa neljä huonetta ja alakerrassa iso varastotila joka toimii myös huoneena.
Kylpyhuoneen lattia
Laatta
Kylpyhuoneen seinät
Kaakeli
Olohuoneen varusteet
Iso ja avara olohuone josta kulku keittiöön ja eteiseen.
Ominaisuudet
Kohde myydään kalustettuna: Ei

Tekniset tiedot

Vesi ja jätevesi
Vesijohto: Kaupungin vesijohto.
Viemäröinti
Kaupungin viemäri.