169 000 €30,5 m²

Sammonkatu 70 A, Kaleva, Tampere1h+kt+alkovi

Velaton hinta
169 000 €
Hoitovastike
166,22 € / kk
Asuinpinta-ala
30,5 m²
Huoneita
1
Kerros
6 / 8
Rakennusvuosi
2017
Rakennuksen tyyppi
Kerrostalo
Kaupunginosa
Kaleva
Kaupunki
Tampere

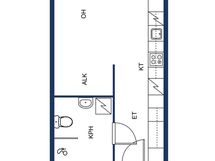
Sammonkadun varrella moderni ja tyylikäs yksiö, joka tarjoaa urbaania asumista parhaimmillaan. Vuonna 2017 valmistunut Asunto Oy Tampereen Kvartsi on modernin asumisen edelläkävijä, ja tämä 30,5 neliön koti sijaitsee kuudennessa kerroksessa. Asunto myydään vuokrattuna, tämänhetkinen vuokra 665 + vesimaksu.

Asunnon suunnittelussa on panostettu laatuun ja toimivuuteen. Avokeittiö yhdistyy saumattomasti olohuoneeseen, luoden avaran tilan sosiaaliseen elämään ja rentoutumiseen. Käytännöllisyyttä lisää myös keittiön jatkeena oleva kiinteä ruokapöytä. Asunnossa on käytännöllinen alkovi, joka tarjoaa erillisen nukkumatilan ilman että se vie liikaa tilaa oleskelualueelta, alkovissa on myös aina tarpeellista lisäsäilytystilaa.

Kaleva on tunnettu viihtyisästä asuinympäristöstään, jossa yhdistyvät loistavat kulkuyhteydet ja kaupunkielämän mukavuudet. Lähistöllä sijaitsevat niin bussi- kuin raitiovaunupysäkit takaavat sujuvat yhteydet ympäri kaupungin. Yliopiston keskustakampus ja TAMK sijaitsevat myös lähietäisyydellä.

Tämä koti on ihanteellinen valinta niin ensiasunnon ostajalle kuin sijoittajalle, joka arvostaa laadukasta rakentamista, toimivaa suunnittelua ja loistavaa sijaintia. Mikäli etsit kompaktia, mutta viihtyisää asuntoa Tampereelta, tämä yksiö tarjoaa ainutlaatuisen mahdollisuuden moderniin kaupunkiasumiseen.

Etu tämän kohteen ostajalle

Tämän kohteen kauppoihin sisältyy täysin veloitukseton oikeusturvavakuutus, joka tuo mielenrauhaa ja turvaa uuden kodin hankintaan.

Lue lisää

Perustiedot

Sijainti
Sammonkatu 70 A, 33540 Tampere
Kaupunginosa
Kaleva
Kohdenumero
80389430
Kerros
6 / 8
Asuinpinta-ala
30,5 m²
Tontin pinta-ala
2 006 m²
Kokonaispinta-ala
30,5 m²
Pinta-alojen lisätiedot
Pinta-alan peruste: Isännöitsijäntodistuksen mukainen ja yhtiöjärjestyksen mukainen. Ei tarkistusmitattu. Pinta-ala voi siis olla edellä mainittua pienempi tai suurempi. Pinta-alaa ei ole mitattu SFS 5139 standardin mukaisesti.
Huoneiston kokoonpano
1h+kt+alkovi
Huoneita
1
Kunto
Hyvä
Lisätietoa vapautumisesta
Asunto myydään vuokrattuna.
Keittiön varusteet
Keittiön varusteet: Jääkaappipakastin, liesituuletin ja astianpesukone. Liesi: Induktioliesi. Työtason materiaali: Laminaatti.
Parveke
Kyllä
Parvekkeen lisätiedot
Parvekkeen tyyppi: Ranskalainen parveke. Parvekkeen suunta: Itä.
Kylpyhuoneen varusteet
Pesutilojen varusteet: WC-istuin, suihku, pesukoneliitäntä, peilikaappi, lattialämmitys, allaskaappi ja bidee-suihku.
Säilytystilat
Kaapistot ja häkkivarasto. Lisätietoja säilytystiloista: Kaapistot eteisessä sekä alkovissa.
Tulevat remontit
Kunnossapitotarveselvityksen mukaan: 2026 Ilmanvaihdon puhdistus
Tehdyt remontit
2017 Ins.toim. Jorma Väänänen Oy, vuositarkastuksen ennakkotarkastus 2017 YIT Rakennus Oy vuositarkastus 2017-2019 YIT Rakennus Oy vuositakuukorjauksia
Asunnossa sauna
Ei
Asumistyyppi
Omistus
Vuokrattu
Kyllä
Kohde on
Osakehuoneisto
Kiinteistötunnus
837-119-0885-0008
Postitoimipaikka
Tampere

Hinta

Velaton hinta
169 000 €
Myyntihinta
86 656,23 €
Neliöhinta
5 540,98 € / m²
Velkaosuus
82 343,77 €
Lunastuspykälä
Taloyhtiöllä ei lunastusoikeutta. Osakkailla ei lunastusoikeutta.

Vastikkeet

Hoitovastike
166,22 € / kk
Pääomavastike
590,38 € / kk
Yhtiövastike yhteensä
756,60 € / kk

Muut maksut

Vesimaksun lisätiedot
23 € / hlö / kk
Muut kustannukset
Taloyhtiön hallitukselle on annettu valtuutus periä (tai olla perimättä) ylimääräisiä vastikkeita yhtiön taloudellisen aseman tai maksuvalmiuden sitä vaatiessa Lisätietoja maksuista: Hallituksella valtuudet tarvittaessa kerätä 1-2 ylimääräistä hoito- ja pääomavastiketta. Osakkaiden maksamat ylimääräiset lainaosuussuoritukset rahastoidaan. Rahoitusvastikkeet tuloutetaan. Pääomavastike A Euribor 12 kk + 0,75 %, lainan päättymispäivä 31.1.2042. Ylimääräisiä lainanlyhennyksiä vastaanotetaan touko- ja marraskuussa. Ylimääräisten lyhennysten pankin kulut jaetaan maksajien kesken. Yhtiö on hakeutunut arvonlisäverolliseksi. Arvonlisäverollisuuden hakeutumisaste on 3,76 Yhtiö ei ole hakeutunut arvonlisäverovelvolliseksi todistuksen huoneiston osalta. Yhtiö on velvollinen tarkistamaan vuonna 2017 valmistuneestä kiinteistöinvestoinnista tekemiään arvonlisäverovähennyksiä, jos kiinteistön verollinen käyttö muuttuu tarkastuskauden aikana. Viimeinen tarkastusvuosi on 2026. Vastuun enimmäismäärä on 64 681,50 euroa valmistuessa ja vastuu 31.12.2019 on 45 277,05 euroa.

Talon ja tontin tiedot

Uudiskohde
Ei
Taloyhtiön nimi
Asunto Oy Tampereen Kvartsi
Lisätietoa taloyhtiöstä
Taloyhtiön lisätiedot: Yhtiöjärjestyksen 5 § mukaan osakkeenomistajat ovat velvollisia sallimaan hallinnassaan olevissa huoneistoissa, osakashallinnassa olevissa tiloissa ja huoneistoparvekkeilla/terasseilla/asuntopihoissa sellaiset toimenpiteet, jotka ovat tarpeellisia yhtiön kiinteistön ja rakennuksen huollon, kunnossapidon ja muiden vastaavien toimenpiteiden suorittamiseksi. Osakkeenomistajat eivät ole oikeutettuja tekemään hallinnassaan olevissa tiloissa kuten esimerkiksi parvekkeilla/terasseilla/asuntopihoilla sellaisia korjaus-, kunnossapito- ja peruskorjaustoimenpiteitä tai asentamaan tai rakentamaan niille sellaisia laitteita julkisivuun rakenteisiin, väreihin tai muihin ulkonäköön vaikuttaviin seikkoihin. Yhtiöjärjestyksen 5 §:n momentin 8 mukaisesti niin kauan kuin muulla kuin perustajaosakkaalla on huoneistoon kohdistuvaa yhtiölainaosuutta enemmän kuin 75 % huoneiston alkuperäisestä yhtilölainaosuudesta, tulee yhtiön hallussa olla ao. huoneiston osalta ainakin vähintään kolmen (3) kuukauden pääomavastikkeiden suuruinen pääomavastike-ennakko yhtiön pääomavastikesaatavan vakuudeksi, ennakkoa voidaan korottaa tarvittaessa. Parvekeverhot harmaasävyiset verhot, toimittajan parvekelasijärjestelmään soveltuvat sallituja, muutostyöilmoitus tehtävä. Tupakointikielto voimassa kaikilla huoneistoihin kuuluvilla parvekkeilla ja huoneistopihoilla. Tupakointi sallittu erikseen merkityllä tupakointipaikalla. Taloyhtiön kiinnitykset: 12 175 320 €.
Rakennuksen tyyppi
Kerrostalo
Rakennusvuosi
2017
Huoneistojen lukumäärä
69
Liiketilojen pinta-ala
162 m²
Liikehuoneistojen lukumäärä
3
Rakennuksen käyttöönottovuosi
2017
Kerroksia
8
Hissi
Kyllä
Rakennusmateriaali
Betoni
Kattomateriaali
Kumibitumi
Kattotyyppi
Aumakatto
Energialuokka
Energialuokka: C2013, Energiatodistuksen voimassaoloaika: 28.04.2025, Lisätiedot: E-luku 130
Energiatodistus
Kyllä
Ilmastointijärjestelmä
Koneellinen
Tontin koko
2 006 m²
Kiinteistönhoito
Huoltoyhtiö
Isännöinti
Pirkanmaan Ammatti-Isännöinti Oy, Heini Asikainen, 0440475013
Kaavoitustiedot
Tampereen Kaupunki
Kaavatilanne
Asemakaava
Liikenneyhteydet
Bussipysäkki lähellä, raitiovaunupysäkki lähellä, hyvät pyöräilytiet ja sujuvat yhteydet omalla autolla
Lämmitys
Kaukolämpö
Lisätietoja lämmityksestä
Kaukolämpö, Vesikiertoinen patterilämmitys, sähköinen lattialämmitys
Tontin vuokra päättyy
31.05.2075
Tontin vuokra
69 817,68 € / vuosi
Lisätietoja talosta
Siirry talosivulle
Maanvuokraaja
Tampereen Kaupunki
Tontin omistus
Vuokralla

Tilat ja materiaalit

Pysäköintitilan kuvaus
Taloyhtiön autopaikat: Autopaikat osakkeina KOy Kalevanrinteen Pysäköinnissä (29 kpl), joista (1 kpl) on inva-autopaikkoja. Kaavan autopaikkavelvoite 1/125 m2. Yhtiöllä vuokrasopimus Kiinteistö Oy Kalevanrinteen Pysäköinnin kanssa (Y-tunnus 2657942-8).
Yhteiset tilat
Kuivaushuone, urheiluvälinevarasto, väestönsuoja, kellarikomero ja kaapeli-tv
Keittiön lattia
Laminaatti
Keittiön seinä
Kaakeli ja maali
Kylpyhuoneen lattia
Laatta
Kylpyhuoneen seinät
Kaakeli
Olohuoneen lattia
Laminaatti
Olohuoneen seinät
Maali
Ominaisuudet
Kohde myydään kalustettuna: Ei