220 900 €37 m²

Siivekkeenkatu 9 A 36, Härmälänranta, Tampere2H+KT

Velaton hinta
220 900 €
Asuinpinta-ala
37 m²
Huoneita
2
Kerros
6 / 7
Rakennusvuosi
2026
Rakennuksen tyyppi
Kerrostalo
Kaupunginosa
Härmälänranta
Kaupunki
Tampere

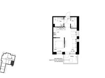
Kompakti valoisa kaksio

Kompakti kaksio, jonka kahteen suuntaan avautuvat ikkunat tuovat mukavasti luonnonvaloa sisään. Säilytystilaa on eteisen yhteydessä olevassa vaatehuoneessa. Käytännöllinen L-keittiö ja ruokaryhmälle hyvin tilaa. Etelänpuoleinen parveke viihtyisän sisäpihan suuntaan.

Hyvää elämää kotikorttelissa

Omalle tontilleen rakennettavassa As. Oy Tampereen Härmälänrannan Arthurissa pihapiiriisi kuuluu Pyhäjärven upea luonto ja sen tarjoamat ulkoilumahdollisuudet. Aktiivista tekemistä riittää, palvelut löytyvät läheltä, ja Tampereen keskustaankin matka taittuu mukavasti rannassa kulkevaa kevyen liikenteen väylää pitkin. Tulevaisuudessa Härmälänrantaan pääsee myös ratikalla. Arthuriin tulee 46 kotia, joissa on huoneita yhdestä neljään. Suurin osa kodeista sijaitsee seitsemänkerroksisessa kerrostalossa ja muutama matalammassa kaupunkipientalosiivessä.

Asunnot ovat nyt rakenteilla – tervetuloa valitsemaan omasi! Muuttamaan uuteen kotiisi pääset elokuussa 2026. Lue lisää: skanska.fi/arthur Kysy lisää asuntomyynnistämme: p. 040 721 7939.

Huomaathan, että visualisoinnit sekä mallisisustetun huoneiston kuvat eivät välttämättä ole tästä asunnosta. Kuvat ovat tästä kohteesta ja aina suuntaa antavia. Asunnon pohjakuvasta näet tämän huoneiston. Kysy lisää asuntomyyjältämme!

Perustiedot

Kaupunginosa
Härmälänranta
Kerros
6 / 7
Asuinpinta-ala
37 m²
Huoneiston kokoonpano
2H+KT
Huoneita
2
Kunto
Uusi
Parveke
Kyllä
Parvekkeen lisätiedot
Tavallinen, lasitettu
Asunnossa sauna
Ei
Asumistyyppi
Omistus
Uudiskohteen tila
Rakenteilla

Hinta

Velaton hinta
220 900 €
Myyntihinta
88 360 €
Neliöhinta
5 970,27 € / m²

Vastikkeet

Hoitovastike
144,30 € / kk
Pääomavastike
784,42 € / kk
Yhtiövastike yhteensä
928,72 € / kk

Talon ja tontin tiedot

Valmistumisaika
2026-08-10
Uudiskohde
Kyllä
Taloyhtiön nimi
As. Oy Tampereen Härmälänrannan Arthur
Rakennuksen tyyppi
Kerrostalo
Rakennusvuosi
2026
Kerroksia
7
Hissi
Kyllä
Energialuokka
A
Lämmitys
Kaukolämpö
Tontin omistus
Oma