189 000 €164 m²

Toivalantie 57 as 2, Toivala, SiilinjärviPt Toivala 5h,k,s,at

Myyntihinta
189 000 €
Asuinpinta-ala
164 m²
Huoneita
5
Kerroksia
2
Rakennusvuosi
1999
Rakennuksen tyyppi
Paritalo
Kaupunginosa
Toivala
Kaupunki
Siilinjärvi

Paritalo Toivala 5h,k,s,at

Kookas perheasunto Toivalassa koulun ja päiväkodin lähellä. Alakerran arkiolohuoneessa tilaa kuntosalille tai leffahuoneelle, lämpimään autotalliin mahtuu muutakin kuin auto. Leivinuuni antaa pehmeän lämmön ja typistää mukavasti sähkölaskua ilmalämpöpumpun kanssa. Tähän pitää tutustua paikan päällä!

Katso kohteen tarkemmat tiedot www.habita.com -sivustolta.

Perustiedot

Sijainti
Toivalantie 57 as 2, 70900 Siilinjärvi
Kaupunginosa
Toivala
Kohdenumero
965982
Kerroksia
2
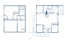
Asuinpinta-ala
164 m²
Tontin pinta-ala
1 523 m²
Kokonaispinta-ala
216,5 m²
Pinta-alan lähde
Muu lähde
Huoneiston kokoonpano
Pt Toivala 5h,k,s,at
Huoneita
5
Kunto
Tyydyttävä
Lisätietoa vapautumisesta
n. 2 kk kaupasta
Keittiön varusteet
Sähköliesi, Leivinuuni, Jääkaappi, Pakastin, Kaapisto, Liesituuletin, Astianpesukone
Parveke
Ei
Kylpyhuoneen varusteet
Suihku, Mukavuuslattialämmitys, Kaapisto, Allas, Suihkuseinä, WC-istuin, Lämminvesivaraaja, Peili
Säilytystilat
Kaapisto, Vaatehuone, Kellarikomero
Näkymät
Takapiha, Oma piha, Puutarha, Naapurusto, Maalaismaisema
Tehdyt remontit
2025 Muu - Valokuitu, 2016 Muu - porraskuilu sisälle ja saunan siirto alakertaan, yläkertaan muutoksessa tuli vaatehuone
Asunnossa sauna
Ei
Asumistyyppi
Omistus
Palvelut
Ostoskeskus 2 km, Koulu 0,5 km, Päiväkoti 0,5 km
Kohde on
Kiinteistö
Postitoimipaikka
Toivala

Hinta

Myyntihinta
189 000 €

Muut maksut

Vesimaksu
20 € / kk
Keskimääräinen sähkönkulutus
250 € / kk

Talon ja tontin tiedot

Uudiskohde
Ei
Rakennuksen tyyppi
Paritalo
Rakennusvuosi
1999
Rakennuksen käyttöönottovuosi
1999
Kerroksia
2
Hissi
Ei
Taloyhtiössä on sauna
Ei
Rakennusmateriaali
Puu, Betoni
Perustus
Betoni
Kattomateriaali
Pelti
Kattotyyppi
Harjakatto
Energialuokka
F, 2013
Energiatodistus
Kyllä
Kunnallistekniikka
Vesi, Viemäri, Sähkö
Ilmastointijärjestelmä
Koneellinen poistoilma
Tontin koko
1 523 m²
Kiinteistönhoito
lumityöt ulkoistettu
Kaavoitustiedot
lisätiedot Siilinjärven kunta
Kaavatilanne
Asemakaava
Liikenneyhteydet
Bussi 0,1 km
Rakennusoikeus
438 m2 yhteensä, käytetty 316 m2
Maasto
Kumpuileva
Lämmitys
Sähkö, Ilmalämpöpumppu
Lisätietoja lämmityksestä
Sähkölämmitys, Uuni- tai takkalämmitys, Ilmalämpöpumppu
Tontin omistus
Oma

Tilat ja materiaalit

Pysäköintitilan kuvaus
Pihapaikka, Autotalli
Pintamateriaalit
Parketti, Laminaatti, Laatta