72 000 €58,5 m²

Penttiläntie 7 E, Hyllykallio, Seinäjoki2h + k + p

Velaton hinta
72 000 €
Hoitovastike
204,75 € / kk
Asuinpinta-ala
58,5 m²
Huoneita
2
Kerros
1 / 3
Rakennusvuosi
1969
Rakennuksen tyyppi
Kerrostalo
Kaupunginosa
Hyllykallio
Kaupunki
Seinäjoki

Hyllykalliolla nyt myynnissä tyylikäs, saunallinen kerrostalokaksio.

Asunto Oy Nurmon Piippuhylly sijaitsee omalla, reilun kokoisella tontilla, hyvien kulkuyhteyksien varrella. Yhtiössä kaukolämpö ja koneellinen ilmanvaihto. Käyttövesi- ja viemäriputkisaneeraus on tehty!

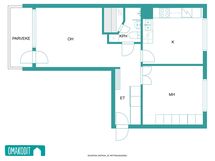
Kaupan kohteena olevasta asunnosta löytyy olohuone, josta kulku lasitetulle parvekkeelle. Keittiö, jossa runsaasti säilytystilaa ja paikka ruokailuryhmälle. Makuuhuone kauniiden pariovien takaa sekä kompakti sauna ja modernin tyylikkääksi remontoitu kylpyhuone, jossa wc, suihku ja paikka pesukoneelle. Huoneistoon on asennettu 2022 vuonna tehokas GREE Bora -huoneilmanjäähdytin.

Asunto sijaitsee lähellä Päivölän ja Hyllykallion palveluita!

Huoneistolle kuuluu autopaikka ja irtaimistovarasto.

Yhtiössä myynnissä myös toinen kaksio, mahdollisuus neuvotella kahden asunnon kaupasta, kysy välittäjältä lisätietoja!

Asunto on ollut vuokrattuna ja vapautuu vuokralaisen käytöstä tammikuun 2026 loppuun mennessä. Tervetuloa tutustumaan tähän kauniiseen kotiin. Soita, niin sovitaan esittely!

Sauli Kemppainen LKV 0400 518 804 Omakodit Seinäjoki

Perustiedot

Kaupunginosa
Hyllykallio
Kohdenumero
9564121
Kerros
1 / 3
Asuinpinta-ala
58,5 m²
Tontin pinta-ala
1,36 ha
Kokonaispinta-ala
58,5 m²
Pinta-alojen lisätiedot
yhtiöjärjestyksen mukainen, isännöitsijäntodistuksen mukainen
Huoneiston kokoonpano
2h + k + p
Huoneita
2
Kunto
Hyvä
Lisätietoa vapautumisesta
Vapautuminen AHVL:n mukaan, asunto myydään vuokrattuna.
Keittiön varusteet
Liesi: sähköliesi. Työtasot: laminaatti. Kylmäsäilytys: jääkaappi/pakastin. Varustus: liesituuletin, astianpesukone.
Parveke
Kyllä
Parvekkeen lisätiedot
Tyyppi: lasitettu. Suunta: länsi
Kylpyhuoneen varusteet
Varustus: suihkuseinä, pesukoneliitäntä, wc-istuin, suihku.
Säilytystilat
muu erillinen varasto
Tulevat remontit
Ilmastointikanavien puhdistus ja säätö.
Tehdyt remontit
TALOYHTIÖSSÄ: Penttiläntie 5 ja 7 kiinteistöjen eteläpäätyjen saneeraus julkisivulevyllä 2021. Asuntojen parvekkeiden saneeraus julkisivulevyllä 2021. Käyttövesi- ja viemäriputkisaneeraus 2023. Asuinkiinteistöjen peltikattojen huoltomaalaus 2023. Rappukäytävien pääovien pellitys, huoltomaalaus 2025. Vanhemmista kunnossapito-, ja korjaustöistä selvitys saatavilla välittäjältä.
Asunnossa sauna
Kyllä
Saunan lisätiedot
sähkökiuas
Asumistyyppi
Omistus
Vuokrattu
Kyllä
Lisätiedot
Kauppaan ei kuulu: Irtaimisto
Kohde on
Osakehuoneisto
Tietoliikennepalvelut
muu verkkoyhteys

Hinta

Velaton hinta
72 000 €
Myyntihinta
72 000 €
Neliöhinta
1 230,77 € / m²

Vastikkeet

Hoitovastike
204,75 € / kk
Erityisvastike
84,24 € / kk
Yhtiövastike yhteensä
306,28 € / kk
Lisätietoa vastikkeista

Hoitovastike muodostuu siten että
hoitovastike 204,75€ / kk
putkiremonttilaina 84,24€ / kk
hoitolaina 17,29€ / kk

Muut maksut

Vesimaksun lisätiedot
oma mittari
Muut kustannukset
Muut maksut: Autokatosvuokra 25,00€ / kk Autopaikkavuokrat 7,00€ / kk Saunamaksut 4,00€ / kk Varainsiirtovero 1,5% velattomasta kauppahinnasta

Talon ja tontin tiedot

Uudiskohde
Ei
Taloyhtiön nimi
Asunto Oy Nurmon Piippuhylly
Rakennuksen tyyppi
Kerrostalo
Rakennusvuosi
1969
Huoneistojen lukumäärä
75
Kerroksia
3
Taloyhtiössä on sauna
Kyllä
Rakennusmateriaali
betoni
Kattomateriaali
Pelti
Kattotyyppi
Harjakatto
Energialuokka
F2013
Energiatodistus
Kyllä
Kiinteistön antennijärjestelmä
kaapeli-tv
Tontin koko
1,36 ha
Kiinteistönhoito
huoltoyhtiö. Kiinteistönhoidon lisätiedot: Huoltoyhtiö / Lakeuden isännöinti Oy
Isännöinti
Lakeuden isännöinti Oy Arto Ylitalo 06 428 9100
Kaavoitustiedot
Seinäjoen kaupunki / Kaavoitus p. vaihde 06 416 2111
Kaavatilanne
Asemakaava
Lämmitys
Kaukolämpö
Tontin omistus
Oma

Tilat ja materiaalit

Pysäköintitilan kuvaus
autotalleja: 22.
Yhteiset tilat
sauna, talopesula, mankeli, urheiluvälinevarasto, Huoneistokohtaiset varastot.
Pintamateriaalit
Lattia: Keittiössä: laminaatti. Pesutiloissa: laatta. Olohuoneessa: laminaatti. Makuuhuoneessa: laminaatti. Saunassa: laatta. Seinät: Pesutiloissa: kaakeli. Olohuoneessa: maalattu. Makuuhuoneessa: maalattu. Saunassa: puu.