160 000 €136 m²

Kaurastenkatu 14, Pidesluoto, Rauma4h, k, s, kph, 2 x wc, parveke, autotalli, varasto, kellaritilat

Myyntihinta
160 000 €
Asuinpinta-ala
136 m²
Huoneita
5
Rakennusvuosi
1942
Rakennuksen tyyppi
Omakotitalo
Kaupunginosa
Pidesluoto
Kaupunki
Rauma

Tämä kaunis paritalosta yhdeksi asunnoksi yhdistetty huoliteltu koti suositulta Pidesluodon alueelta on vapautumassa uudelle asukkaalle.

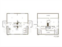
Asuntoon voit saapua talon päädyissä sijaitsevien viehättävien kuistien kautta. Kaksi keittiötä on yhdistetty yhdeksi tilaksi, joten aamiais- ja illallispöydälle on ruhtinaallisesti tilaa. Olohuone on avara ja valoisa. Yksi asunnon makuutiloista yhdistyy olohuoneeseen. Alakerrassa on myös wc.

Yläkerrassa on kaksi upean kokoista makuuhuonetta, sauna, pesuhuone ja wc. Yläkerran kruunaa kaunis puutarhaan ja länteen suuntaava parveke.

Kellarikerroksessa on runsaasti tilaa säilytykseen sekä tekninen tila. Piharakennuksessa on autotalli ja varasto. Kaunis hoidettu ja huoliteltu puutarha kivetyksineen ja pienen terassialueen kera hivelee silmää. Piha-alue on osittain aidattu.

Tervetuloa tutustumaan ja ihastumaan tähän kauniisti pidettyyn ja erittäin siistiin kotiin. Upeat merelliset ulkoilumaastot ovat aivan nurkan takana. Lisätiedot Annelta 040 594 7133.

Perustiedot

Sijainti
Kaurastenkatu 14, 26100 Rauma
Kaupunginosa
Pidesluoto
Kohdenumero
20417449
Asuinpinta-ala
136 m²
Tontin pinta-ala
700 m²
Kokonaispinta-ala
210 m²
Pinta-alojen lisätiedot
Pinta-alatiedot on saatu rakennuspiirustuksista. Kellaritilojen kanssa kokonaispinta-ala 210 m² verotustietojen mukaisesti. Autotalli + varasto 24 m²
Huoneiston kokoonpano
4h, k, s, kph, 2 x wc, parveke, autotalli, varasto, kellaritilat
Huoneita
5
Kunto
Hyvä
Lisätietoa vapautumisesta
Sopimuksen mukaan.
Keittiön varusteet
Varusteet: Jääkaappi, Pakastin. Työtaso: Laminaattitaso. Liesi: Keraaminen liesi, Mikroaaltouuni
Kylpyhuoneen varusteet
Varusteet: Pesukoneliitäntä, Suihku, Peilikaappi, Kiinteät valaisimet
Säilytystilat
Ulkovarasto
Tehdyt remontit
Ulko-ovet uusittu 2022, Katto uusittu 2018, öljykattila 2015, vesimittari 2013, ikkunat uusittu 2000- luvun alussa, pintaremontteja Korjauksiin haettu / saatu lupa rakennusvalvontaviranomaiselta: Kyllä Lopputarkastus tehty: Kyllä Em. Korjauksiin liittyvät suunitelmat ja asiakirjat toimeksiantajalla: Kyllä
Asunnossa sauna
Kyllä
Saunan lisätiedot
Varusteet: Sähkökiuas. Seinämateriaali: Puuseinä. Lattiamateriaali: Muovilattia
Asumistyyppi
Omistus
Kohde on
Kiinteistö
Postitoimipaikka
Rauma
TV-palvelut
Antenni-TV

Hinta

Myyntihinta
160 000 €

Muut maksut

Muut kustannukset
Muut lämmityskulut: 130 € / kk. 1500
Kiinteistövero
141 € / vuosi

Talon ja tontin tiedot

Uudiskohde
Ei
Tilan nimi
355
Rakennuksen tyyppi
Omakotitalo
Rakennusvuosi
1942
Rakennuksen käyttöönottovuosi
1942
Rakennusmateriaali
Pääasiallinen rakennusmateriaali: Puu
Kattomateriaali
pelti
Kattotyyppi
harja. Katon kunto: hyvä, uusittu 2018
Energialuokka
Ei lain edellyttämää energiatodistusta
Ilmastointijärjestelmä
Painovoimainen
Tontin koko
700 m²
Kaavoitustiedot
Yleiskaava. Rauman kaupunki
Muut rakennukset
Autotalli. Varasto
Lämmitys
Öljy
Lisätietoja lämmityksestä
Lämmitystapa: Öljylämmitys. Lämmönjakotapa: Vesikiertoinen patterilämmitys. Lisätietoa asunnon lämmityksestä: hyvä
Tontin vuokra päättyy
31.12.2029
Tontin vuokra
401 € / vuosi
Maanvuokraaja
Rauman kaupunki
Tontin omistus
Vuokralla

Tilat ja materiaalit

Keittiön lattia
Laminaattilattia
Keittiön seinä
Tapettiseinä
Makuuhuoneen lattia
Laminaattilattia
Makuuhuoneen seinät
Tapettiseinä
Kylpyhuoneen lattia
Muovilattia. WC: Muovilattia
Kylpyhuoneen seinät
Muoviseinä. WC: Tapettiseinä
Olohuoneen lattia
Laminaattilattia
Olohuoneen seinät
Tapettiseinä
Ominaisuudet
kaapistot, sälekaihtimet/rullaverhot, naulakko, kiinteät valaisimet, jätesäiliö, istutukset. Sähköliittymä. Takka

Tekniset tiedot

Vesi ja jätevesi
Kunnan vesijohto
Viemäröinti
Kunnan. valurauta