75 000 €93 m²

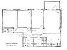
Venheenkatu 3, Kerttula, Raisio3mh+oh+k+kph/wc+wc+vh+lasitettu parveke

Velaton hinta
75 000 €
Hoitovastike
362,70 € / kk
Asuinpinta-ala
93 m²
Huoneita
4
Kerros
5 / 5
Rakennusvuosi
1976
Rakennuksen tyyppi
Kerrostalo
Kaupunginosa
Kerttula
Kaupunki
Raisio

Hyvän sijainnin, ylimmän kerroksen perheasunto vapaana uusille omistajille! Sijainti Raision keskustan ja Kerttulan läheisyydessä, rauhallisella alueella.

Taloyhtiössä alkamassa perinteinen linjasaneeraus. Nyt ostajalla mahdollisuus vaikuttaa mm. kylpyhuoneen ja erillisen wc:n pintamateriaaleihin. Huoneistojen kunnostukset tarkoitus toteuttaa huhti-heinäkuun aikana. Urakan tulisi olla valmis viimeistään syyskuussa. Loistava tilaisuus suunnitella ja toteuttaa perheelle omalainen koti.

Huoneistossa kolme hyväkokoista makuuhuonetta ja avara olohuone. Keittiössä runsaasti kaappitilaa ja esteettömät näkymät kauas Raision keskustan suuntaan. Lasitetulla, idän ilmansuunnan parvekkeella nautit omassa rauhassa.

Tervetuloa tutustumaan, myyjä vastaanottaa tarjouksia!

Lisätiedot ja esittelyt: Katriina Remahl, 040 300 2311, katriina.remahl@huoneistomarkkinat.com

Etu tämän kohteen ostajalle

Tämän kohteen kauppoihin sisältyy täysin veloitukseton oikeusturvavakuutus, joka tuo mielenrauhaa ja turvaa uuden kodin hankintaan.

Lue lisää

Perustiedot

Sijainti
Venheenkatu 3, 21200 Raisio
Kaupunginosa
Kerttula
Kohdenumero
80482466
Kerros
5 / 5
Asuinpinta-ala
93 m²
Tontin pinta-ala
2 532,7 m²
Kokonaispinta-ala
93 m²
Pinta-alojen lisätiedot
Pinta-alan peruste: Yhtiöjärjestyksen mukainen. Ei tarkistusmitattu. Pinta-alat saattavat tämän ikäisissä kohteissa (yhtiö rekisteröity ennen 01.01.1992) poiketa olennaisestikin asuinrakennusten nykyisten mittaustapojen ja standardien (SFS 5139) mukaan laskettavasta asuintilojen pinta-alasta. Pinta-ala voi siis olla edellä mainittua pienempi tai suurempi.
Huoneiston kokoonpano
3mh+oh+k+kph/wc+wc+vh+lasitettu parveke
Huoneita
4
Kunto
Tyydyttävä
Lisätietoa vapautumisesta
Sopimuksen mukaan. Taloyhtiössä alkaa perinteinen linjasaneeraus, asumishaitta arviolta huhtikuu-lokakuu 2026.
Keittiön varusteet
Alkuperäinen kaapisto, välitila laattaa, työtasot kalustelevyä. Lattia muovimattoa. Jenkkikaappi, sähköliesi ja uuni. Liesituuletin. Paljon kaappitilaa.
Ikkunanäkymä talon päädystä etelän ilmansuuntaan kohti Raision keskustaa.
Parveke
Kyllä
Parvekkeen lisätiedot
Parvekkeen tyyppi: Lasitettu. Parvekkeen suunta: Itä.
Kylpyhuoneen varusteet
Pesutilojen kuvaus: Kylpyhuone laatoitettu, suihku, wc-istuin, allas, peili, pk-liitäntä.
Linjasaneerauksen yhteydessä kylpyhuone saneerataan kauttaaltaan. Materiaalivalintoja tehdään nyt maalis-huhtikuun aikana. Erillisten WC:n lukumäärä: 2. Erillisen WC:n kuvaus: Erillinen pikku-wc, osittain laatoitettu tila. allas, wc-istuin.
WC tulee uusittua kokonaan linjasaneerauksen yhteydessä. Materiaalivalintoja tehdään nyt maalis-huhtikuun aikana.
Säilytystilat
Häkkivarasto, seinäkaapit ja vaatehuone
Näkymät
Korkealta yli Raision keskustan suuntaan etelään ja itään .
Tulevat remontit
Ylimääräisessä yhtiökokouksessa 9.12.2025 käsiteltiin seuraavat asiat Päätettiin linjasaneeraushankkeen aloittamisesta/toteuttamisesta taloyhtiöjohtoisesti ja urakoitsijan valinnasta Hankkeen esittely: Lainaosuudeksi kustannusarvion mukaan tulee 1,25 M€ euron lainamäärällä 821,83 €/neliö , myytävän huoneiston osuus 591 osaketta eli 73 875,00 € kertamaksuna tai 406,66 €/ kk rahoitusvastikkeena. Esitteessä tarkempi yksilöity tieto urakan sisällöstä. Saneerauksen tarkentunut aikataulu: - Yleisten tilojen valmistelevat työt aloitetaan työmaan perustamisella 9.3.2026 - Asuntojen aikataulu 13.4.2026 – 10.7.2026 - Porrashuoneen viimeistelyt ja siivous 3.8.2025 mennessä. Asuntojen töiden alkaessa asunnon sähköt, vedet ja viemärit eivät ole käytettävissä, joten asukkaiden kannalta suositellaan sijaisasunnon hankintaa asuntojen töiden ajaksi. Yleisten tilojen ja valmistelevien sekä viimeistely töiden aikana asunnot ovat normaalisti asukkaiden käytettävissä talotekniikan osalta. Alla aikaväli, jolloin asunnoissa asumista ei voida suositella asunnoissa tehtävien töiden takia: - maanantai 13.4.2026 klo 7:00 – perjantai 10.7.2026 klo 16:00
Tehdyt remontit
Ikkunoiden maalauskunnostus 1999 Parvekkeet ja julkisivut korjattu/osittain uusittu Osa ikkunoista uusittu (eteläsivu) Vesikate ja vesikourut uusittu Piha-alueen uudelleen järjestely (lisätty parkkipaikkoja) Autopaikkojen (yhtiön) pistorasiakotelot uusittu 2001 Huoneistokohtaiset sähkömittarit asennettu Ala-aulan remontti 2002 Saunatilat uusittu 2003 Lukituksen uusiminen Hissi peruskorjattu 2004 Lämmityksen alajakokeskus uusittu Antenniverkon digisaneeraus 2005 Vialliset patteritermostaatit uusittu Jätepiste uusittu 2007 Ilmastoinnin puhdistus ja säätö 2008 Kuivaushuoneen puhallin uusittu Kellarin ja varastotilojen lattioiden maalaus 2009 Saunan pukuhuoneet maalattu Osa sisävalaisimista vaihdettu led-valaisimiksi 2010 Huonokuntoiset ikkunat uusittu/korjattu 2011 Kylmäkellarin eristekorjaus 2012 Vesimittarin runkoputken korjaus ja tonttivesijohdon uusiminen Ulko-oven maalaus 2013 Ulkovalaistus uusittu Talon eteläpäädyn julkisivulaattojen kiinnityksen korjaus 2014 Jäte- ja sadevesiviemäreiden painehuuhtelu sekä juurien poisto (kuntotutkimus) 2015 Porraskäytävän ja yleisten tilojen valaistusuudistus Kuivaushuoneen puhallin uusittu Salaojaviemäreiden kuvaus ja huuhtelu Viiden asunnon kylpyhuoneiden lattiakaivojen tiivistys Väestönsuojan tarkastus ja paineistus 2016 Autokatoksen lämmitystolppien uusiminen Ilmastoinnin puhdistus ja säätö 2017 Taloyhtiön kylmiö muutettu kuivantilan varastoksi (käyttötarkoituksen muutos) 2018 Ikkunoiden ja parvekeovien (3-sivua) sekä salaojituksen (2-sivua) uusiminen 2019 Ulko-ovirakenteen uusiminen ja esteettömän ovimekanismin hankinta Kuivaushuoneen puhaltimen uusiminen 2020 Ilmanvaihdon mittaus ja säätö (ikkunoiden uusimisen jälkeen) Kaukolämpöventtiilin uusiminen Hyönteisverkkojen hankinta (vuonna 2019 asennettuihin tuuletusikkunoihin) Parvekekynnysten korjaus (17 kpl) 2021 Asunnon 12 kylpyhuonesaneeraus ja asunnon 7 kylpyhuoneen katon kosteusvauriokorjaus 2023 Linjasaneeraushankkeen kartoitus ja toteutussuunnittelu Asunnon 24 vuotokorjaus (kattokaivon tiivistys) Asuntojen palovaroittimet asennutettu 2024
Asunnossa sauna
Ei
Asumistyyppi
Omistus
Vuokrattu
Ei
Palvelut
Palvelut: Raision keskustan kaikki palvelut lähellä. Myllyn kauppakeskukseen n. 2,5 km matka.
Paikallistiedot: Kerttulan liikuntapalvelut, virkistysalue, Raision keskustan palvelut lähellä.
Lisätiedot
Muut kaupan kannalta merkittävät tiedot: Rauhallinen sijainti Raision keskustan läheisyydessä.
Kohde on
Osakehuoneisto
Kiinteistötunnus
680-3-344-1
Postitoimipaikka
Raisio

Hinta

Velaton hinta
75 000 €
Myyntihinta
74 610,42 €
Neliöhinta
806,45 € / m²
Velkaosuus
389,58 €
Lunastuspykälä
Taloyhtiöllä ei lunastusoikeutta. Osakkailla ei lunastusoikeutta.

Vastikkeet

Hoitovastike
362,70 € / kk
Pääomavastike
80,55 € / kk
Yhtiövastike yhteensä
443,25 € / kk

Muut maksut

Vesimaksun lisätiedot
30 € / hlö / kk
Muut kustannukset
Lisätietoja maksuista: Sähkö kulutuksen mukaan taloyhtiön sopimuksella. Vesi kulutuksen mukaan kun linjasaneeraus valmistunut syksyllä 2026.
Autopaikan kustannukset
9 € / kk

Talon ja tontin tiedot

Uudiskohde
Ei
Taloyhtiön nimi
Asunto Oy Venheenköli
Rakennuksen tyyppi
Kerrostalo
Rakennusvuosi
1976
Huoneistojen lukumäärä
24
Kerroksia
5
Hissi
Kyllä
Taloyhtiössä on sauna
Kyllä
Rakennusmateriaali
Betoni
Kattomateriaali
Huopa
Kattotyyppi
Tasakatto
Energialuokka
Energialuokka: D2018, Energiatodistuksen voimassaoloaika: 02.03.2033
Energiatodistus
Kyllä
Ilmastointijärjestelmä
Koneellinen poisto
Kiinteistön antennijärjestelmä
Kaapeli-TV
Tontin koko
2 532,7 m²
Kiinteistönhoito
Huoltoyhtiö
Isännöinti
Lounais-Suomen Isännöinti Oy, Minna Rauten, turku@isis.fi, 024347519
Kaavoitustiedot
Raision kaupunki
Kaavatilanne
Asemakaava
Liikenneyhteydet
Kaupunkiliikenneyhteys, hyvät pyöräilytiet ja bussipysäkki lähellä Föli-linjat, valtatie 8 ja E18- kehätie helposti saavutettavissa.
Kuntotutkimus
Lisätietoja tutkimuksista: Julkisivujen kuntotutkimus Julkisivun, parvekkeiden ja vesikaton korjaustyöselitys, Insinööritoimisto Hirsinummi Oy Ikkunoiden kuntoarvio, Seppo Alankoja ja Petri Lammervo Vesijohtojen ja viemäreiden kuntotutkimus Peruskuntoarvio, Raksystems Oy Märkätilojen kosteuskartoitus, Raksystems Oy Kiinteistöstrategia, Lounais-Suomen Isännöinti Oy Parvekkeiden, julkisivun ja takapihan salaojituksen
Pihan kuvaus
Taloyhtiön piha-alue.
Lämmitys
Kaukolämpö
Lisätietoja lämmityksestä
Kaukolämpö
Lisätietoja talosta
Siirry talosivulle
Tontin omistus
Oma

Tilat ja materiaalit

Pysäköintitilan kuvaus
Lisätietoja huoneiston autopaikasta: Huoneiston omistajalla käytössä autokatoksesta paikka nro 9. Kirjaus yhtiön papereista: Autotalli on rakennettu omakustannushintaan taloyhtiössä aikanaan olleiden halukkaiden toimesta. Autotallin omistajat vastaavat kaikesta autotallirakennukseen liittyvistä kustannuksista. Autotallirakennus sijaitsee Asunto Oy Venheenkölin hallinnoimalla autopaikoitusalueella ja autotallipaikasta on tehtävä erillinen vuokrasopimus Asunto Oy Venheenkölin kanssa. Asunto Oy Venheenkölin varsinainen yhtiökokous päättää autotallipaikasta perittävän vuokran määrän vuosittain.
Yhteiset tilat
Kuivaushuone, pyörävarasto, väestönsuoja ja kaapeli-tv
Muut tilat
Eteinen, missä avonaulakko, lattia parkettia. Vaatehuoneeseen käynti eteisestä.
Lisätietoja makuuhuoneen varusteista
Kolme hyväkokoista makuuhuonetta, kaapistot, seinät tapettia/ maalia, lattiat muovimattoa.
Olohuoneen varusteet
Seinät tapettia ja maalia, lattia mosaiikkiparkettia. Käynti lasitetulle parvekkeelle.
Ominaisuudet
Kohde myydään kalustettuna: Ei

Tekniset tiedot

Vesi ja jätevesi
Vesijohto: Kunnallisvesi.
Viemäröinti
Kunnallinen viemäriverkosto.