49 000 €51 m²

Saaristokatu 53 E, Keskusta, Raahe2h, k, kph/wc, parveke

Velaton hinta
49 000 €
Hoitovastike
172,80 € / kk
Asuinpinta-ala
51 m²
Huoneita
2
Kerros
3 / 3
Rakennusvuosi
1964
Rakennuksen tyyppi
Kerrostalo
Kaupunginosa
Keskusta
Kaupunki
Raahe

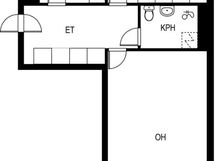
Kerrostalo, 2h, k, kph/wc, parveke, 51 m2, Saaristokatu 53 E 36, 92130 Raahe

Näppärä, ylimmän kerroksen 51 m2:n kerrostalokaksio, läheltä Raahen keskustan palveluita.

Asuntoon on uusittu keittiö noin vuonna 2013 ja kylpyhuone/wc on remontoitu kokonaan 2014-2015 ja on siistissä käyttökunnossa. Muuten asunnon pinnat kaipaavat laittoa. Lasitettu parveke on lännen suuntaan.

Taloyhtiössä on tehty paljon remonttia; mm. 2014-2015 on uusittu käyttövesiputkistot ja viemärit. Vuonna 2003 on vaihdettu kaukolämmönvaihdin. Vuonna on tehty 1999 julkisivuremontti. Vuonna 1994 uusittu ikkunat ja parvekeovet.

Ydinkeskustan palveluihin on noin 900 m matkaa, lähikauppaan ja päiväkotiin on noin 300 m.

Tästä heti vapaa asunto. Pienelläkin pintaremontilla saat tästä oman näköisen kodin. Soita ja varaa esittelyaika. Myynti Pasi Siuvatti p. 050 555 5134 pasi.siuvatti@kodinaika.fi

Perustiedot

Sijainti
Saaristokatu 53 E, 92130 Raahe
Kaupunginosa
Keskusta
Kohdenumero
80375536
Kerros
3 / 3
Asuinpinta-ala
51 m²
Tontin pinta-ala
5 640 m²
Kokonaispinta-ala
51 m²
Pinta-alojen lisätiedot
Pinta-alan peruste: Yhtiöjärjestyksen mukainen ja isännöitsijäntodistuksen mukainen. Ei tarkistusmitattu. Pinta-alat saattavat tämän ikäisissä kohteissa (yhtiö rekisteröity ennen 01.01.1992) poiketa olennaisestikin asuinrakennusten nykyisten mittaustapojen ja standardien (SFS 5139) mukaan laskettavasta asuintilojen pinta-alasta. Pinta-ala voi siis olla edellä mainittua pienempi tai suurempi. Jyvitetty pinta-ala 54 m2. Hinta ei ole pinta-alaperusteinen.
Huoneiston kokoonpano
2h, k, kph/wc, parveke
Huoneita
2
Kunto
Hyvä
Kunnon lisätiedot
Hyvä/tyydyttävä.
Lisätietoa vapautumisesta
Heti.
Keittiön varusteet
Kaapistot, liesi, liesituuletin, jääpakastinkaappi. Remontoitu noin 2013.
Parveke
Kyllä
Parvekkeen lisätiedot
Parvekkeen tyyppi: Lasitettu. Parvekkeen suunta: Länsi.
Kylpyhuoneen varusteet
Pesutilojen kuvaus: Kylpyhuone/wc: wc-istuin, bidesuihku, allas, peilikaappi, suihku, pesukoneliitäntä, kuivauspatteri. Remontoitu 2014 - 2015.
Säilytystilat
Lisätietoja säilytystiloista: Kaapistot ja häkkivarasto.
Tulevat remontit
Taloyhtiön seuraavan viiden vuoden kunnossapitotarveselvityksen mukaan: Ei merkittyjä remontteja.
Tehdyt remontit
2020 jätekatoksen oven lukko asennettu. 2019 porraskäytävien huoltomaalaus tehty. 2017-2018 pintavesiohjauksien parantaminen + salaojien tarkastus, korjaus. Pihan kuivatus ja salaojituksen rakentaminen/pihan muotoilu. Hulevesiliittymä. Salaojapumpun asennus. Parkkipaikkojen laajennus. 2014-2015 uusittu käyttövesiputket ja viemärit. 2012 vesikatot maalattu. 2012 A-talon pihaviemäri rakennettu, B-talon viemärisortuma rakennuksen ja jakokaivon välillä uusittu sekä tonttivesijohto uusittu rakennuksen ja vesilaitoksen sulkuun saakka. Lisätty lumiesteitä 3 kpl:ta. 2011 vesikourut ja syöksyt uusittu, sekä laitettu lumiesteet. 2009 rakennettu jätekatos. 2008 teetätetty kuntoarvio. 2004 uusittu autonlämmityspistokkeet. 2003 uusittu kaukolämmönvaihdin. 1999 tehty julkisivuremontti. 1997 B-talon parvekkeet kunnostettu. 1994 uusittu ikkunat ja parvekeovet. 1993 uusittu ulko-ovet.
Asunnossa sauna
Ei
Asumistyyppi
Omistus
Vuokrattu
Ei
Ajo-ohjeet
Katso kartta.
Palvelut
Lähikauppa noin 300 m. Raahen keskustan palvelut noin 900 m.
Kohde on
Osakehuoneisto
Postitoimipaikka
Raahe

Hinta

Velaton hinta
49 000 €
Myyntihinta
40 884,01 €
Neliöhinta
960,78 € / m²
Velkaosuus
8 115,99 €
Lunastuspykälä
Taloyhtiöllä ei lunastusoikeutta. Osakkailla ei lunastusoikeutta.

Vastikkeet

Hoitovastike
172,80 € / kk
Pääomavastike
129,60 € / kk
Yhtiövastike yhteensä
302,40 € / kk

Muut maksut

Muut kustannukset
Lisätietoja maksuista: Sähkö ja vesi kulutuksen mukaan. Vesiennakko 13 €/hlö/kk (omat mittarit). Saunamaksu 10,00 €/kk. Autopaikka 10,00 €/kk. Autotalli 20,00 €/kk. Pesutupamaksu 10,00 €/kk.

Talon ja tontin tiedot

Uudiskohde
Ei
Taloyhtiön nimi
Asunto Oy Saaristokatu 53
Lisätietoa taloyhtiöstä
Taloyhtiöön kuuluu: Ulkoiluvälinevarasto, väestönsuoja, pesutupa, sauna, huoneistokohtaiset varastot.
Rakennuksen tyyppi
Kerrostalo
Rakennusvuosi
1964
Huoneistojen lukumäärä
36
Rakennuksen käyttöönottovuosi
1964
Kerroksia
3
Hissi
Ei
Taloyhtiössä on sauna
Kyllä
Rakennusmateriaali
Betoni
Kattomateriaali
Pelti
Kattotyyppi
Harjakatto
Energialuokka
D2007
Energiatodistus
Kyllä
Ilmastointijärjestelmä
Painovoimainen
Tontin koko
5 640 m²
Kiinteistönhoito
Huoltoyhtiö
Isännöinti
OP Koti Pohjoinen Oy LKV, Vesa Heikkinen, vesa.heikkinen@op.fi, 010 253 9200
Kaavoitustiedot
Asemakaava. Lisätietoja Raahen kaupunki p. 08 439 3111.
Lämmitys
Kaukolämpö
Lisätietoja lämmityksestä
Kaukolämpö
Lisätietoja talosta
Siirry talosivulle
Tontin omistus
Oma