54 800 €55 m²

Kanahaukantie 17 A, Siltakylä, Pyhtää2h+k+kph+s+2*varasto+ap

Velaton hinta
54 800 €
Hoitovastike
330 € / kk
Asuinpinta-ala
55 m²
Huoneita
2
Kerroksia
1
Rakennusvuosi
1995
Rakennuksen tyyppi
Rivitalo
Kaupunginosa
Siltakylä
Kaupunki
Pyhtää

Maaliskuussa 2026 pintaremontoitu rivitalokaksio Pyhtään Siltakylän luonnonläheisessä ympäristössä etsii uutta omistajaa. Tämä yksitasoinen asunto on rakennettu vuonna 1995. Kompaktin kokoisessa ja toimivan pohjaratkaisun omaavassa asunnossa on oma sauna sekä piha jossa näkymät vehreän metsän suuntaan.

Asuntoon kuuluu myös kaksi varastoa, jotka tarjoavat runsaasti säilytystilaa.

Siltakylän alue tarjoaa erinomaiset ulkoilumahdollisuudet, ja Kotkan kaupungin palvelut ovat vain vartin ajomatkan päässä. Helsinkiin pääsee reilussa tunnissa, joten sijainti on ihanteellinen myös pääkaupunkiseudulla työskenteleville. Lähikoulu, urheilukenttä ja kirjasto ovat lyhyen matkan päässä, mikä tekee alueesta myös perheystävällisen.

Kohde myydään vuokrattuna 6kk irtisanomisajalla. Vuokra on 660 € sisältäen vesimaksun.

Ota yhteyttä ja sovi yksityisesittely! Nana Nedo Laillistettu kiinteistönvälittäjä LKV, LVV, KiLAT 041 311 7861 nana.nedo@aitoalkv.fi

Asuntounelmissa aidosti mukana Pyhtäällä, Kotkassa ja Haminassa.

Seuraa meitä myös somessa: FB: Aitoa LKV Ig: aitoa_lkv TikTok: aitoa_lkv

www.aitoalkv.fi

Perustiedot

Sijainti
Kanahaukantie 17 A, 49220 Pyhtää
Kaupunginosa
Siltakylä
Kohdenumero
80464068
Kerroksia
1
Asuinpinta-ala
55 m²
Tontin pinta-ala
414 m²
Kokonaispinta-ala
55 m²
Pinta-alojen lisätiedot
Pinta-alan peruste: Yhtiöjärjestyksen mukainen. Ei tarkistusmitattu. Pinta-ala voi siis olla edellä mainittua pienempi tai suurempi.
Huoneiston kokoonpano
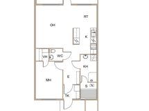
2h+k+kph+s+2*varasto+ap
Huoneita
2
Kunto
Tyydyttävä
Lisätietoa vapautumisesta
Myydään vuokrattuna.
Keittiön varusteet
Keittiön varusteet: Jääkaappipakastin, liesituuletin, uuni ja liesi. Liesi: Valurautaliesi.
Kylpyhuoneen varusteet
Pesutilojen varusteet: Suihku, pesukoneliitäntä, peilikaappi ja allaskaappi. Erillisten WC:n lukumäärä: 1. Erillisen WC:n varusteet: WC-istuin, bidee-suihku, pesuallas ja peili.
Säilytystilat
Kylmä ulkovarasto ja kaapistot
Tulevat remontit
Kunnossapitotarveselvitys 2025-2030: *2026-2027 Piha-aidan kunnostus. *2027-2028 Sokkelin kunnostus. *2029-2030 Kylpyhuoneiden korjausselvitys/kunnostus, ilmanvaihtok. nuohous.
Tehdyt remontit
*2024 Lämmitysjärjestelmän korjaus, piha-alueiden valaistus uusittiin. *2023 Pihapuiden kaatoa, kiertovesipumpun vaihto, katon läpivientien uudelleen eristys, 2 tolppapaikan lisäys. *2022 Pihapuiden kaatoa. *2021 Ulkovalaisimien polttimoiden vaihto led valoiksi. *2020 Etupihan saneeraus, kasvien istutus. *2019 Asuinkiinteistön puuosien ja piharakennuksen maalaus, pensaiden (vieraslajien) poisto ja poisvienti tontilta. *2018 Räystäslautojen vaihto. *2014 Vesi-ilmalämpöpumpun asennus.
Asunnossa sauna
Kyllä
Saunan lisätiedot
Kiuas: Sähkökiuas
Asumistyyppi
Omistus
Vuokrattu
Kyllä
Palvelut
Siltakylän asuinalue sijaitsee Pyhtäällä, joka on pieni, mutta pirteä kunta. Täällä sinulla on kaikki mahdollisuudet virkistäytymiseen upeilla ulkoilureiteillä, metsän luonnonrauhassa tai meren äärellä. Kotkan kaupungin palvelut ovat vartin ajomatkan päässä ja pk-seudulle pääset reilun tunnin ajamisella.

Huutjärven asuinalueelta löytyy lähikoulu ja urheilukenttä, sekä kirjasto ja lähimmät kaupat. Prismaan ajaa autolla noin kymmenessä minuutissa. Kotkan kaupungin palvelut ovat vartin ajomatkan päässä ja Helsinkiin pyörähtää reilu tunnin ajamisella.
Kohde on
Osakehuoneisto
Postitoimipaikka
Pyhtää

Hinta

Velaton hinta
54 800 €
Myyntihinta
54 800 €
Neliöhinta
996,36 € / m²
Lunastuspykälä
Taloyhtiöllä ei lunastusoikeutta. Osakkailla ei lunastusoikeutta.

Vastikkeet

Hoitovastike
330 € / kk
Yhtiövastike yhteensä
330 € / kk

Muut maksut

Vesimaksun lisätiedot
Vesimaksuennakko 20 € / kk / hlö, tasaus kulutuksen mukaan
Autopaikan kustannukset
10 € / kk

Talon ja tontin tiedot

Uudiskohde
Ei
Taloyhtiön nimi
Asunto Oy Kanahaukantie
Lisätietoa taloyhtiöstä
Taloyhtiön lisätiedot: Asunto on isännöitsijäntodistuksen mukaan D ja näin on merkitty huoneiston ovivaloonkin.
Rakennuksen tyyppi
Rivitalo
Rakennusvuosi
1995
Huoneistojen lukumäärä
6
Rakennuksen käyttöönottovuosi
1995
Kerroksia
1
Taloyhtiössä on sauna
Ei
Rakennusmateriaali
Puu ja tiili
Kattomateriaali
Pelti
Kattotyyppi
Harjakatto
Energiatodistus
Ei lain edellyttämää energiatodistusta
Ilmastointijärjestelmä
Koneellinen ilmanvaihto
Kiinteistön antennijärjestelmä
Kaapeli-TV
Tontin koko
414 m²
Kiinteistönhoito
Asukkaat
Isännöinti
Omatoiminen, Jouni Puranen, hallituksen pj.
Liikenneyhteydet
Bussipysäkki lähellä Pysäkille 600 m.
Pihan kuvaus
Suojaisa piha.
Lämmitys
Ilmavesilämpöpumppu, Öljy
Lisätietoja lämmityksestä
Ilmavesilämpöpumppu, Öljy
Tontin omistus
Oma

Tilat ja materiaalit

Pysäköintitilan kuvaus
Lisätietoja huoneiston autopaikasta: Yhtiöjärjestyksen mukaan kukin huoneisto hallitsee yhtä autopaikkaa.
Yhteiset tilat
Huoneistokohtaiset varastot
Keittiön lattia
Laminaatti
Keittiön seinä
Maali
Makuuhuoneen lattia
Laminaatti
Makuuhuoneen seinät
Maali
Kylpyhuoneen lattia
Muovimatto
Kylpyhuoneen seinät
Kaakeli
Olohuoneen lattia
Laminaatti
Olohuoneen seinät
Maali