12 500 €97 m²

Halmekatu 15, Puolanka, Puolanka4h + k + s

Velaton hinta
12 500 €
Hoitovastike
400 € / kk
Asuinpinta-ala
97 m²
Huoneita
4
Kerroksia
1
Rakennusvuosi
1978
Rakennuksen tyyppi
Rivitalo
Kaupunginosa
Puolanka
Kaupunki
Puolanka

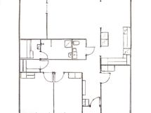
Rivitaloasunto 4H+K+S Puolangan keskustassa

Myydään tilava rivitalokoti 4(-5)H+K+S Puolangalla, rauhallisella asuinalueella keskustan palvelujen lähellä.

Asunnossa keittiö, olohuone, 3 makuuhuonetta, ja lisäksi olohuoneen yhteydessä liukuovellinen huone esim. vieras- tai työhuoneeksi, pesuhuone ja sauna, erillinen WC, vaatehuone sekä suojaisa oma takapiha. Varastotilaa ulkorakennuksessa.

Asuntoa uudistettu vuosina 2020-2021: - Seinäpinnat maalattu ja lattioihin laminaatit 2020 - keittiön kodinkoneet 12/2020, keittiön kaapit maalattu 2021 - kylpyhuoneen suihku ja suihkuseinä 2021 (kylpyhuone ja sauna remontoitu n. 15 v. sitten) - WC-allas ja allaskaappi 2021

Taloyhtiössä käyttövesiputket on uusittu. Lämmitysmuotona kaukolämpö, joka sisältyy vastikkeeseen. Piha- ja kattoremontti 2022: - Huopakate, sadevesien poisto ja salaojat uusittu - etupihalle tehty uusi pysäköintialue ja asennettu sähkötolpat - takapihalle vinyyliväliaidat

Myyntihinta 3500 e Velaton hinta 12.500 e (taloyhtiön lainaosuus n. 9000 e)

Hoitovastike 426,80 e/kk (sisältää kaukolämmön) Rahoitusvastike 170,10 e/kk Vesimaksu 21 e/hlö/kk

Asunto on tällä hetkellä vuokrattuna, vapautuu sopimuksen mukaan.

Yhteydenotot: Teemu Heikkinen p. 0505290000 Reetta Heikkinen p. 0407772023

Perustiedot

Sijainti
Halmekatu 15, 89200 Puolanka
Kaupunginosa
Puolanka
Kohdenumero
22007483
Kerroksia
1
Asuinpinta-ala
97 m²
Kokonaispinta-ala
97 m²
Huoneiston kokoonpano
4h + k + s
Huoneita
4
Kunto
Tyydyttävä
Keittiö
Keittiö
Asunnossa sauna
Kyllä
Kohde on
Osakehuoneisto
Sähköinen omistajamerkintä
Ei

Hinta

Velaton hinta
12 500 €
Myyntihinta
3 500 €
Neliöhinta
128,87 € / m²

Vastikkeet

Hoitovastike
400 € / kk

Talon ja tontin tiedot

Rakennuksen tyyppi
Rivitalo
Rakennusvuosi
1978
Liikehuoneistojen lukumäärä
0
Liikehuoneistojen pinta-ala
0 m²
Kerroksia
1
Lisätietoja lämmityksestä
Vesikeskuslämmitys
Lisätietoja talosta
Siirry talosivulle
Tontin omistus
Oma