84 000 €105 m²

Kapraantie 36, Vähärauma, Pori4 h + k + kh/wc + lasikuisti + sauna + pesu- ja pukuhuone + ullakko- ja varastotilat + kellari-ym tilat

Myyntihinta
84 000 €
Asuinpinta-ala
105 m²
Huoneita
4
Kerroksia
3
Rakennuksen tyyppi
Omakotitalo
Kaupunginosa
Vähärauma
Kaupunki
Pori

Omakotitalo hyvällä sijainnilla

Ryhdikäs 50-luvun omakotitalo viihtyisällä omalla puutarhatontilla. Esteetön sisäänkäynti. Kaksi päiväkotia ja koulut on lähellä.

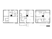
Talossa on kaksi asuinkerrosta sekä kellarikerros.

Alakerran asunto-osassa on keittiö, makuuhuone ja olohuone sekä kylpyhuone/wc, eteinen, vaatehuone ja lasikuisti. Runsaasti komerotilaa.

Yläkerrassa on kaksi alkovillista huonetta, josta toinen on toiminut myös keittiönä. Lisäksi on eteinen, vaate- ym. komerotilaa ja ullakkotilat.

Kellarikerroksessa on saunatilat, työ- ja varastotilaa, kellarit sekä keskuslämmityskattila- ja öljysäiliötila. Talossa on vesikiertoinen patterilämmitys.

Rakennuksessa on jonkin verran jäljellä tyylikästä 50- ja 60-luvun tunnelmaa ja rakenteita, kuten hienot sisäovet ja porrastilan ja yläkerran eteisen sormipaneloinnit, joten paikka sopii myös rakennus- ym. perinteitä arvostavalle.

Tontilla on hedelmäpuita ja marjapensaita sekä sopivasti vanhoja puita ja muuta kasvillisuutta. Ulkovajassa voi säilyttää polkupyöriä, puutarhavälineitä ym. Oman tontin koko on 1147 m2.

Esteetön sisäänkäyntiluiska ja katos on tarvittaessa helposti purettavissa ja sisäänkäynti palautettavissa alkuperäiseen asuun.

Rakennukseen on vuosien varrella uusittu tiilikatto ja ulkomaalaus, asennettu kolminkertaiset ikkunat, uusittu saunaosasto, kylpyhuone, sähkökaappi ja liittymäkaapelointi ym.

Kunnallinen vesi- ja viemäröinti. Hyvät liikenneyhteydet ja ulkoiluseudut, palvelut lähellä.

Perustiedot

Sijainti
Kapraantie 36, 28600 Pori
Kaupunginosa
Vähärauma
Kohdenumero
23067646
Kerroksia
3
Asuinpinta-ala
105 m²
Kokonaispinta-ala
177 m²
Huoneiston kokoonpano
4 h + k + kh/wc + lasikuisti + sauna + pesu- ja pukuhuone + ullakko- ja varastotilat + kellari-ym tilat
Huoneita
4
Lisätietoa vapautumisesta
1 kk tai sopimuksen mukaan
Keittiö
Keittiö
Keittiön varusteet
Tilaa isolle ruokapöydälle, Paljon kaappitilaa, Paljon työskentelytilaa, Puutasot, Sähköliesi, Liesikupu, Liesituuletin, Jää-pakastinkaappi, Laminaattitasot
Kylpyhuoneen varusteet
Suihku, Lattialämmitys, Bideesuihku, Laattaseinä, Laattalattia, Suihkuseinä
Säilytystilat
Vaatehuone, Tilaa ulkoiluvälineille, Ullakkokomerot, Tilaa pyykeille, Säilytystilaa
Ominaisuudet
Paljon ikkunoita, Valoisa
Ikkunoiden suunta
Ikkunoita itään, Ikkunoita länteen, Ikkunoita pohjoiseen, Ikkunoita etelään
Näkymät
puutarhapiha, katu
Tehdyt remontit
Sähkökaappi ja liittymäkaapelointi uusittu 2024. Esteetön sisäänkäynti, katos, kynnysten poisto 2008. Kolminkertaiset ikkunat 2006. Kylpyhuone, wc, suihku, lattialämmitys, kaakeloinnit ym. 2006. Putkistojen uusiminen 2006. Sauna, pesuhuone, saunakamari (lisäeristeet, lattiat, paneloinnit, kiuas, pata ym.) 2000. Ulkomaalaus 1999. Tiilikatto, aluskate, ruoteet, tikkaat, kourut 1998. Myös muita remontteja tehty, kuten keittiön, yläkerran ja kuistin uudistamiset.
Asunnossa sauna
Kyllä
Saunan lisätiedot
Puukäyttöinen kiuas, löylyhuone, pesuhuone, Ikkuna ulos, vilpola
Soveltuvuus liikuntaesteisille
Esteetön sisäänkäynti, kulkuluiska
Palvelut
Päiväkoti lähellä, Ala-aste lähellä, Lukio lähellä, Yläaste lähellä, Kirjasto lähellä, Puisto lähellä, Koirapuisto lähellä
Kohde on
Kiinteistö

Hinta

Myyntihinta
84 000 €

Talon ja tontin tiedot

Rakennuksen tyyppi
Omakotitalo
Kerroksia
3
Rakennusmateriaali
Puu, Tiili
Kattomateriaali
Tiili
Kattotyyppi
Harjakatto
Energialuokka
Ei lain edellyttämää energiatodistusta
Harrastusmahdollisuudet
Ulkoilureittejä, Jalkapallokenttä
Liikenneyhteydet
Bussipysäkki lähellä, Sujuvat yhteydet omalla autolla, Maksuton pysäköinti
Lämmitys
Öljy
Lämmönjakelu
Vesikiertoinen patterilämmitys

Tilat ja materiaalit

Pintamateriaalit
Puupaneeli, Korkki, Muovimatto, Tapetti