194 600 €76 m²

Koulutalonkuja 12 D1, Sandsund, Pedersöre3h + k + kph + s + khh

Myyntihinta
194 600 €
Asuinpinta-ala
76 m²
Huoneita
3
Kerros
1 / 1
Rakennusvuosi
2022
Rakennuksen tyyppi
Paritalo
Kaupunginosa
Sandsund
Kaupunki
Pedersöre

Ensimmäiset asukkaat ovat muuttaneet sisään!

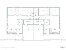
Upea uudistuotanto rakennetaan parhaimillaan suositulle Sandsundin alueelle, kivenheiton päähän kouluista, päiväkodeista, luonnosta ja Pietarsaaren keskustasta. Kodit on erittäin hyvin suunniteltuja ja käsittää 3h,k,kph, khh,s 76 m² sekä autokatospaikan ja varaston. Avarat oleskelutilat ja suuret ikkunat, joista tulvii valoa sisään pihan ja terassin suunnalta. Yhtiöön rakennetaan yhteensä 8 asuntoa. Kaukolämpö ja kuituliittymä. Mahdollisuus ostaa joko avaimet käteen velattomalla hinnalla 194 600,00 euroa tai levyvalmiina velattomaan hintaan 181 600,00 euroa (sis kaikki materiaalit). Valitse itsellesi sopivin vaihtoehto ja toteuta unelmasi omasta kauniista kodistasi!

***

De första bostäderna är inflyttade!

Nu byggs en fantastisk nyproduktion i omtyckta Sandsund, ett stenkast från skolor, daghem, naturen och även Jakobstads centrum. Varje bostad är mycket välplanerad och omfattar 3r k bdr b hjk, 76m2, samt ett biltak och förråd intill. Sällskapsytorna är öppna och och har ett bra ljusinsläpp. Därtill en terrassdörr på gaveln ut till den stora terrassen. Totalt byggs 8st bostäder. Fjärrvärme och fiberanslutning. Säljs antingen med nyckel i hand 194 600 euro alternativt skivfärdigt för 181 600 euro (inkl allt material). Välj vad som passar dig bäst och förverkliga dina drömmar om ett eget vackert hem!

Perustiedot

Kaupunginosa
Sandsund
Kohdenumero
21258094
Kerros
1 / 1
Asuinpinta-ala
76 m²
Tontin pinta-ala
6 210 m²
Kokonaispinta-ala
81,8 m²
Pinta-alojen lisätiedot
Asuinpinta-ala 76m2 + Varasto 5,8m2
Huoneiston kokoonpano
3h + k + kph + s + khh
Huoneita
3
Kunto
Uusi
Lisätietoa vapautumisesta
sopimuksen mukaan
Keittiön varusteet
Liesi: induktio, erillisuuni. Kylmäsäilytys: jääkaappi/pakastin. Varustus: liesituuletin, astianpesukone. HUUSHOLLI keittiö, (maalatut mdf ovet)
Kylpyhuoneen varusteet
Varustus: lattialämmitys, wc-istuin.
Säilytystilat
ulkovarasto
Asunnossa sauna
Kyllä
Saunan lisätiedot
sähkökiuas
Asumistyyppi
Omistus
Lisätiedot
Sähköliittymä.
Uudiskohteen tila
Rakenteilla
Kohde on
Kiinteistö
Kiinteistötunnus
599-406-8-189
Tietoliikennepalvelut
valokuitu

Hinta

Myyntihinta
194 600 €

Talon ja tontin tiedot

Uudiskohde
Ei
Rakennuksen tyyppi
Paritalo
Rakennusvuosi
2022
Kerroksia
1
Rakennusmateriaali
puu
Kattomateriaali
Pelti
Kattotyyppi
Harja
Energiatodistus
Ei lain edellyttämää energiatodistusta
Tontin koko
6 210 m²
Kaavatilanne
Asemakaava
Lämmitys
Kaukolämpö
Lämmönjakelu
Vesikiertoinen lattialämmitys
Tontin vuokra
4000 EUR/v.
Maanvuokraaja
Pedersören kunta
Tontin omistus
Vuokralla

Tilat ja materiaalit

Pintamateriaalit
Lattia: Keittiössä: laminaatti. Pesutiloissa: laatta. Olohuoneessa: laminaatti. Makuuhuoneessa: laminaatti. Saunassa: laatta. Kodinhoitohuoneessa: laatta. Seinät: Keittiössä: maalattu. Pesutiloissa: kaakeli. Olohuoneessa: maalattu. Makuuhuoneessa: maalattu. Saunassa: puu. Kodinhoitohuoneessa: maalattu.

Tekniset tiedot

Viemäröinti
kunnan