105 000 €118 m²

Metsänkaatajankuja 6, Rauhala, Loviisa4h+k+takkah+s+at+var

Myyntihinta
105 000 €
Asuinpinta-ala
118 m²
Rakennusvuosi
1975
Rakennuksen tyyppi
Omakotitalo
Kaupunginosa
Rauhala
Kaupunki
Loviisa

Hyväkuntoinen omakotitalo viehättävällä tasamaatontilla, kävelymatkan päässä keskustasta. Tasainen tontti 728 m². Autokatos ja varasto. Harjakatto. Huopakate. Öljylämmityksen korvaamiseksi lokakuussa 2023 asennettu vesi- ja ilmalämpöpumput (hybridilämmitys). Kaapeli-TV, valokuitu.

Perustiedot

Kaupunginosa
Rauhala
Kohdenumero
21372438
Asuinpinta-ala
118 m²
Tontin pinta-ala
728 m²
Kokonaispinta-ala
146 m²
Pinta-alojen lisätiedot
Pinta-alatieto ohjeellinen - ei tarkistusmitattu.
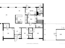
Huoneiston kokoonpano
4h+k+takkah+s+at+var
Kunto
Hyvä
Lisätietoa vapautumisesta
sopimuksen mukaan
Keittiön varusteet
Liesi: sähköliesi. Työtasot: laminaatti. Kylmäsäilytys: jääkaappi/pakastin, jää/viileäkaappi. Varustus: liesituuletin / hormi.
Kylpyhuoneen varusteet
Varustus: suihkuseinä, pesukoneliitäntä, wc-istuin, suihku, peili.
Säilytystilat
ulkovarasto
Tehdyt remontit
Lokakuussa 2023 asennettu hybridilämmitys (vesi- ja ilmalämpöpumppu) korvaamaan öljylämmitystä.
Asunnossa sauna
Kyllä
Saunan lisätiedot
puukiuas
Asumistyyppi
Omistus
Lisätiedot
Sähköliittymä.
Kohde on
Kiinteistö

Hinta

Myyntihinta
105 000 €

Muut maksut

Kiinteistövero
238€/v. €/v

Talon ja tontin tiedot

Uudiskohde
Ei
Tilan nimi
745
Rakennuksen tyyppi
Omakotitalo
Rakennusvuosi
1975
Rakennusmateriaali
elementti
Kattomateriaali
Palahuopa
Kattotyyppi
Harjakatto
Energiatodistus
Ei lain edellyttämää energiatodistusta
Kiinteistön antennijärjestelmä
kaapeli-tv
Tontin koko
728 m²
Kaavatilanne
Asemakaava
Rakennusoikeus
218 m2. e-luku: 0.3
Lämmitys
Ilmavesilämpöpumppu
Lämmönjakelu
Ilmalämpöpumppu, Vesikiertoinen patterilämmitys
Tontin vuokra päättyy
31.12.2034
Tontin vuokra
269.76 EUR/v.
Maanvuokraaja
Loviisan kaupunki
Tontin omistus
Vuokralla

Tilat ja materiaalit

Muut tilat
Olohuoneessa moasiikkiparketti ja makuuhuoneissa Pergo-laminaatti.
Pintamateriaalit
Lattia: Pesutiloissa: laatta. Erillisessä WC:ssä: vinyyli. Olohuoneessa: parketti. Makuuhuoneessa: laminaatti. Saunassa: laatta. Kodinhoitohuoneessa: laatta. Seinät: Keittiössä: kaakeli. Pesutiloissa: tapetti. Erillisessä WC:ssä: maalattu. Olohuoneessa: tapetti. Makuuhuoneessa: tapetti. Saunassa: puu. Kodinhoitohuoneessa: tapetti.
Muut materiaalit
Veitsiluodon Vel-Pallas 118/M

Tekniset tiedot

Viemäröinti
kunnan