90 000 €120,5 m²

Nurmeksentie 46, Niitty-jamali, Lieksa4h + k + khh + kph + s

Myyntihinta
90 000 €
Asuinpinta-ala
120,5 m²
Huoneita
4
Kerros
1 / 2
Rakennusvuosi
1985
Rakennuksen tyyppi
Omakotitalo
Kaupunginosa
Niitty-jamali
Kaupunki
Lieksa

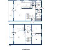
Omakotitalo 4 h + k, pinta-ala 120,5 m².

Lieksan keskustasta noin 6 km Nurmeksen suuntaan, kantatien varrella valkotiiliverhoiltu omakotitalo, käkikello-tyyppinen. Laaja tontti, omaa maapohjaa 6,350 hehtaaria. Omakotitalossa on 4h + k +khh + kph + s + terassi.

Yläkerrassa sijaitsevat makuuhuoneet ja wc sekä terassi. Alakerrassa sijaitsevat olohuone, keittiö sekä sauna- ja pesutilat. Olohuoneesta on käynti terassille.

Kotia on huoltoremontoitu vuosien varrella, mm. talon vesikate on uusittu, käyttövesiputkisto on uusittu.

Sähkölämmitys, alakerrassa massavaraaja.

Esittelyajan voit varata heti.

Perustiedot

Sijainti
Nurmeksentie 46, 81700 Lieksa
Kaupunginosa
Niitty-jamali
Kohdenumero
20001642
Kerros
1 / 2
Asuinpinta-ala
120,5 m²
Tontin pinta-ala
6,35 ha
Kokonaispinta-ala
120,5 m²
Pinta-alojen lisätiedot
Ei tarkistusmitattu. Pinta-alat saattavat tämän ikäisissä kohteissa (rekisteröity ennen 1.1.1992) poiketa olennaisestikin asuinrakennusten nykyisten mittaustapojen ja standardien (SFS 5139) mukaan laskettavasta asuintilojen pinta-alasta. Pinta-ala voi siis olla edellä mainittua pienempi tai suurempi.
Huoneiston kokoonpano
4h + k + khh + kph + s
Huoneita
4
Kunto
Tyydyttävä
Lisätietoa vapautumisesta
sopimuksen mukaan
Keittiön varusteet
Liesi: keraaminen. Työtasot: laminaatti. Kylmäsäilytys: jääkaappi, pakastin. Varustus: astianpesukone. L-mallinen keittiö, runsaasti kaappi - ja laskutilaa.
Kylpyhuoneen varusteet
Pesutilojen kuvaus: Lattialämmitys. Tuuletusikkuna. Varustus: suihku. Varustus: lattiakaivo, peilikaappi, bidee-suihku.
Tehdyt remontit
Käyttövesiputkisto uusittu, lämminvesivaraaja uusittu. Vesikate uusittu. Keittiökaapistojen ovet uusittu.
Asunnossa sauna
Kyllä
Saunan lisätiedot
sähkökiuas
Asumistyyppi
Omistus
Palvelut
Lisätietoa palveluista: Lieksan ydinkeskustaan noin 6km.
Lisätiedot
Sähköliittymä.
Kohde on
Kiinteistö
Kiinteistötunnus
422-415-29-208

Hinta

Myyntihinta
90 000 €

Muut maksut

Muut kustannukset
Muut maksut: Varainsiirtovero 3%.
Kiinteistövero
282,57 €/v

Talon ja tontin tiedot

Uudiskohde
Ei
Rakennuksen tyyppi
Omakotitalo
Rakennusvuosi
1985
Kerroksia
2
Rakennusmateriaali
puu, tiili
Kattomateriaali
Pelti
Kattotyyppi
Harja
Energiatodistus
Ei lain edellyttämää energiatodistusta
Tontin koko
6,35 ha
Kaavoitustiedot
Tekninen virasto.
Kaavatilanne
Yleiskaava
Liikenneyhteydet
Sujuvat yhteydet omalla autolla.
Lisätietoa rakennusoikeudesta
Rakennusvalvonta.
Lämmitys
Sähkö
Lämmönjakelu
Muu
Lisätietoja lämmityksestä
Massavaraaja olohuoneessa
Tontin omistus
Oma

Tilat ja materiaalit

Muut tilat
Terassi: laatoitettu alue, osittain katettu.
Pintamateriaalit
Lattia: Keittiössä: lauta. Pesutiloissa: laatta. Erillisessä WC:ssä: laatta. Olohuoneessa: laatta. Makuuhuoneessa: lauta. Saunassa: laatta. Kodinhoitohuoneessa: muovi. Seinät: Keittiössä: maalattu. Pesutiloissa: kaakeli. Erillisessä WC:ssä: kaakeli. Olohuoneessa: tapetti. Makuuhuoneessa: maalattu, tapetti. Saunassa: puu. Kodinhoitohuoneessa: kaakeli.
Lisätietoja makuuhuoneen varusteista
Mh1; yläkerrassa, ikkuna pohjoiseen Mh2; yläkerrassa, 3kaapistoa Mh3; yläkerrassa, 3kaapistoa ikkuna etelään.
Olohuoneen varusteet
Ikkunat pohjoiseen. Käynti terassille.

Tekniset tiedot

Viemäröinti
oma
Käyttövesi
Käyttövesiputkisto uusittu.