39 000 €85 m²

Rikkiläntie 5, Vainikkala, Lappeenranta4h, k, s, ak

Myyntihinta
39 000 €
Asuinpinta-ala
85 m²
Huoneita
4
Kerros
1 / 1
Rakennusvuosi
1977
Rakennuksen tyyppi
Omakotitalo
Kaupunginosa
Vainikkala
Kaupunki
Lappeenranta

Punainen omakotitalo, jossa on mukavat tilat asumiseen ja kaunis rinnetakapiha, joka odottaa uutta asukasta laittamaan sen loistoonsa!

Uudethan tämän talon tilat ei ole, mutta kaikki on kuitenkin niin siistiä, että on mahdollisuus muuttaa asumaan vaikka heti. Ei siis välittömiä korjaustarpeita perushuoltoa lukuunottamatta. Ja kun katsot hintalappua, niin harvassa on tämän kuntoiset talot tähän hintaan!

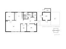
Kolmen makuuhuoneen koti, jossa on myös tilava olohuone, jonka neljä isoa ikkunaa tuovat mukavasti luonnonvalon sisään. Ilmalämpöpumppu ja takka hoitavat lämmitystä sähköpattereiden lisänä. Avoin keittiö on hyvin varusteltu ja laskutasoa ja kaappitilaa löytyy. Erillinen wc ja vieressä sauna ja kylpyhuone. Talon yhteydessä on myös autokatos ja runsaasti varastotilaa. Yläpihalla on mukava terassialue kesäiltojen viettoon.

Ota yhteyttä ja varaa oma esittelyaikasi! Lappeenrannasta tänne Vainikkalaan hurauttaa alle puolessa tunnissa!

Perustiedot

Kaupunginosa
Vainikkala
Kohdenumero
20257234
Kerros
1 / 1
Asuinpinta-ala
85 m²
Tontin pinta-ala
909 m²
Kokonaispinta-ala
95 m²
Pinta-alojen lisätiedot
Huoneiston kokoonpano
4h, k, s, ak
Huoneita
4
Kunto
Tyydyttävä
Lisätietoa vapautumisesta
sopimuksen mukaan
Keittiön varusteet
Liesi: keraaminen. Työtasot: laminaatti. Kylmäsäilytys: jääkaappi/pakastin. Varustus: astianpesukone, kiinteät valaisimet, liesituuletin / hormi.
Kylpyhuoneen varusteet
Varustus: suihkukaappi, pesukoneliitäntä, suihku, peili, kiinteät valaisimet. Erillisen WC:n kuvaus: Pesuallas, allaskaappi, peili, wc-istuin. Lattia: laminaatti. Seinät: maalattu.
Säilytystilat
ulkovarasto
Asunnossa sauna
Kyllä
Saunan lisätiedot
sähkökiuas
Asumistyyppi
Omistus
Palvelut
Palvelut: Palvelut: Lappeenranta.
Lidl - Lappeenranta, Myllymäki Koulut: Koulut: Kasukkala / Lappeenranta.
Lappeenrannan kaupunki - Simolan Koulu
Lappeenrannan kaupunki - Kesämäen Koulu

Päiväkoti: Päiväkodit: Lappeenranta.
Lisätiedot
Sähköliittymä.
Kohde on
Kiinteistö
Kiinteistötunnus
405-497-2-73

Hinta

Myyntihinta
39 000 €
Kiinnitykset
67751.01

Muut maksut

Muut kustannukset
Muut maksut: Varainsiirtovero 3 % kauppahinnasta.
Kiinteistövero
170,12 €/v

Talon ja tontin tiedot

Uudiskohde
Ei
Tilan nimi
Koivula RN:o 2:73, Mäkitalo RN:o 2:204
Rakennuksen tyyppi
Omakotitalo
Rakennusvuosi
1977
Kerroksia
1
Rakennusmateriaali
puu
Kattomateriaali
pelti
Kattotyyppi
harjakatto
Energiatodistus
Ei lain edellyttämää energiatodistusta
Tontin koko
909 m²
Kaavatilanne
Kaavoittamaton
Liikenneyhteydet
Linja-auto.
Lämmitys
Puu, Ilmalämpöpumppu, Sähkö
Lämmönjakelu
Sähköpatterilämmitys, Ilmalämpöpumppu, Uuni/takka
Tontin omistus
Oma

Tilat ja materiaalit

Muut tilat
Eteisessä laminaatti lattia
Pintamateriaalit
Lattia: Keittiössä: laminaatti. Pesutiloissa: laatta. Olohuoneessa: laminaatti. Makuuhuoneessa: laminaatti. Saunassa: laatta. Seinät: Keittiössä: maalattu. Pesutiloissa: kaakeli. Olohuoneessa: maalattu. Makuuhuoneessa: maalattu. Saunassa: puu.

Tekniset tiedot

Viemäröinti
oma, umpisäiliö