95 000 €108 m²

Harjakkaantie 27, Kaivola, Laitila5h+k+ph+s

Myyntihinta
95 000 €
Asuinpinta-ala
108 m²
Huoneita
5
Rakennusvuosi
1979
Rakennuksen tyyppi
Omakotitalo
Kaupunginosa
Kaivola
Kaupunki
Laitila

Omakotitalo Kaivolassa

Etsitkö rauhallista asuinpaikkaa? Sijaintinsa puolesta Harjakkaantie 27 tarjoaa rauhallisen ja turvallisen ympäristön asua, kaukana kaupungin hälinästä, mutta silti vain noin 15 kilometrin päässä Laitilan palveluista. Talo sijaitsee tien päässä, mikä takaa rauhallisen ympäristön ilman ohikulkevaa liikennettä.

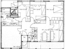
Talossa on 5h+k+ph+s. Yksi huoneista on ollut takkahuone, mutta takka on purettu ja huonetta on pidetty makuuhuonekäytössä. Voisihan tästä huoneesta tehdä vaikka erilliset kodinhoitotilat tms., jos makuuhuoneita ei tarvita enempää kuin kolme. Siitä on myös käynti ulos. Talon sisäpintojen kunto on tyydyttävä, mutta isompia remontteja on tehty, mm. käyttövesi- ja lämmitysputkien uusiminen 2017 sekä katon uusiminen vuonna 2020. Lämmitysjärjestelmänä toimivat puu ja sähkö, mikä mahdollistaa energiatehokkaan ja ekologisen asumisen.

Iso, 5920 m²:n tontti antaa tilaa niin puutarhanhoidolle, lasten leikeille kuin kesäisille grillijuhlillekin. Lisäksi pihapiirissä on autotalli ja varastorakennus, jotka tarjoavat kätevää säilytystilaa ja mahdollisuuden harrastuksiin. Tontilla on myös matala katos, joka soveltuu monenlaiseen ulkosäilytykseen.

Ota yhteyttä ja sovi sinulle sopiva näyttöaika!

Perustiedot

Sijainti
Harjakkaantie 27, 23800 Laitila
Kaupunginosa
Kaivola
Kohdenumero
80388326
Asuinpinta-ala
108 m²
Tontin pinta-ala
5 920 m²
Kokonaispinta-ala
108 m²
Pinta-alojen lisätiedot
Pinta-alan peruste: Ei tarkistusmitattu. Pinta-alat saattavat tämän ikäisissä kohteissa (rekisteröity ennen 01.01.1992) poiketa olennaisestikin asuinrakennusten nykyisten mittaustapojen ja standardien (SFS 5139) mukaan laskettavasta asuintilojen pinta-alasta. Pinta-ala voi siis olla edellä mainittua pienempi tai suurempi. Rakennusala on n. 121 m² ja huoneistoala on n. 108 m².
Huoneiston kokoonpano
5h+k+ph+s
Huoneita
5
Kunto
Tyydyttävä
Lisätietoa vapautumisesta
Sopimuksen mukaan.
Keittiön varusteet
Keittiön varusteet: Jääkaappi, liesi, liesituuletin ja astianpesukone
Kylpyhuoneen varusteet
Pesutilojen varusteet: Suihku, pesuallas ja pesukoneliitäntä. Erillisten WC:n lukumäärä: 1. Erillisen WC:n varusteet: WC-istuin, pesuallas, allaskaappi ja peili.
Säilytystilat
Kaapistot
Tehdyt remontit
Käyttövesiputket uusittu 2017. Lämmitysputket uusittu 2017. Katto on uusittu v. 2020.
Asunnossa sauna
Kyllä
Saunan lisätiedot
Kiuas: Puukiuas
Asumistyyppi
Omistus
Vuokrattu
Ei
Palvelut
Laitilan keskustaan n. 15 km.
Lisätiedot
Muut kaupan kannalta merkittävät tiedot: Talo sijaitsee tien päässä, joten ohikululiikennettä ei ole. Rauhallinen sijainti maalla.
Kohde on
Kiinteistö
Kiinteistötunnus
400-405-4-26
Postitoimipaikka
Laitila
Tietoliikennepalvelut
LP Vahvavirta Osk, valokuitu

Hinta

Myyntihinta
95 000 €

Muut maksut

Kiinteistövero
220 € / vuosi
Tiemaksut
100 € / vuosi

Talon ja tontin tiedot

Uudiskohde
Ei
Rakennuksen tyyppi
Omakotitalo
Rakennusvuosi
1979
Rakennusmateriaali
Puu
Energiatodistus
Ei lain edellyttämää energiatodistusta
Tontin koko
5 920 m²
Pihan kuvaus
Iso piha, jossa nurmikkoa sekä reilu alue ajoneuvoille.
Lämmitys
Puu, Sähkö
Lisätietoja lämmityksestä
Kohteessa on sähkölämmitys. Lisäksi lämmitysjärjestelmät: Puu
Tontin omistus
Oma

Tilat ja materiaalit

Keittiön lattia
Muovimatto
Lisätietoja makuuhuoneen varusteista
Kahdessa makuuhuoneessa on muovimatto lattialla. Yhdessä makuuhuoneessa on laminaattilattia. Entisessä takkahuoneessa on muovimatto.
Kylpyhuoneen lattia
Laatta
Kylpyhuoneen seinät
Kaakeli
Olohuoneen lattia
Laminaatti

Tekniset tiedot

Vesi ja jätevesi
Vesijohto: Harjakkaan vesiyhtymä.
Viemäröinti
Omat saostuskaivot.