35 000 €45,5 m²

Koskentöyryntie 2, Myllykoski, Kouvola2h + avok + s + varasto + autotallipaikka

Velaton hinta
35 000 €
Hoitovastike
222,13 € / kk
Asuinpinta-ala
45,5 m²
Huoneita
2
Kerroksia
1
Rakennusvuosi
1987
Rakennuksen tyyppi
Rivitalo
Kaupunginosa
Myllykoski
Kaupunki
Kouvola

Rivitalokaksio rauhalliselta alueelta

Siistikuntoinen, saunallinen kaksio rivitalon päädyssä lähellä Myllykosken palveluja. Lattiat parkettia, kylpyhuone laatoitettu, erillinen wc. Ilmalämpöpumppu. Suositulla Koivusaaren alueella, jossa on hyvät ulkoilumahdollisuudet, lähistöllä frisbee-golfrata ja maauimala. Kymijoella on mahdollista harrastaa kalastusta. Asunnolle kuuluu autotallipaikka. Yhtiössä on uusittu mm. kaukolämpöpaketti, patteriventtiilit, palovaroittimet, tehty talojen huoltomaalaus, sokkelin pinnoitus ja maalaus, yläpohjan tuuletusputkien, tuulenohjainten ja puhallusvillan asennus.

Terassi uusittu 2025, kattoremontti suunnitteilla.

Vapautuminen sopimuksen mukaan.

Perustiedot

Kaupunginosa
Myllykoski
Kohdenumero
22736201
Kerroksia
1
Asuinpinta-ala
45,5 m²
Huoneiston kokoonpano
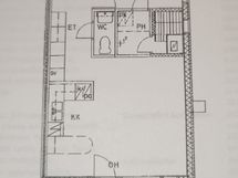
2h + avok + s + varasto + autotallipaikka
Huoneita
2
Kunto
Hyvä
Keittiö
Avokeittiö
Keittiön varusteet
Astianpesukone, Sähköliesi, Jää-pakastinkaappi, Laminaattitasot, Pesukoneliitos
Kylpyhuoneen varusteet
Suihku, Pesukonevalmius, Erillinen WC, Lattialämmitys, Laattaseinä, Allaskaappi, Peilikaappi, Laattalattia
Säilytystilat
Säilytystilaa oma ulkovarasto, liukuovikaapistot
Ominaisuudet
Sälekaihtimet
Asunnossa sauna
Kyllä
Saunan lisätiedot
Sähkökäyttöinen kiuas, Ikkuna ulos
Soveltuvuus liikuntaesteisille
Asunto sopii liikuntarajoitteiselle
Palvelut
Puisto lähellä
Kohde on
Osakehuoneisto
Osakeluettelo on siirretty huoneistojärjestelmään
Ei
TV-palvelut
Keskusantenni

Hinta

Velaton hinta
35 000 €
Neliöhinta
769,23 € / m²

Vastikkeet

Hoitovastike
222,13 € / kk

Talon ja tontin tiedot

Taloyhtiön nimi
Asunto Oy Töyrykara
Rakennuksen tyyppi
Rivitalo
Rakennusvuosi
1987
Huoneistojen lukumäärä
9
Liikehuoneistojen lukumäärä
0
Liikehuoneistojen pinta-ala
0 m²
Kerroksia
1
Rakennusmateriaali
Puu, Tiili
Kattomateriaali
Tiili
Kattotyyppi
Harjakatto
Energialuokka
E2013
Ilmanvaihto
Koneellinen, poisto huippuimurilla
Kiinteistön antennijärjestelmä
Antenni
Isännöinti
Reim Kymi Oy
Harrastusmahdollisuudet
Ulkoilureittejä, Uimaranta lähellä
Liikenneyhteydet
Bussipysäkki lähellä
Lämmitys
Kaukolämpö
Lämmönjakelu
Vesikiertoinen patterilämmitys
Lisätietoja lämmityksestä
Vesikeskuslämmitys
Lisätietoja talosta
Siirry talosivulle
Tontin omistus
Oma

Tilat ja materiaalit

Pysäköintitilan kuvaus
Autotalli
Pintamateriaalit
Parketti