60 000 €106,5 m²

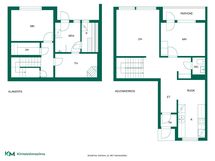
Vaskirinteentie 28, Elimäki, KouvolaYLÄKERTA: oh, mh, k, wc, p. ALAKERTA: mh, tkh, vh, kph, s

Velaton hinta
60 000 €
Hoitovastike
426 € / kk
Asuinpinta-ala
106,5 m²
Huoneita
4
Rakennusvuosi
1978
Rakennuksen tyyppi
Rivitalo
Kaupunginosa
Elimäki
Kaupunki
Kouvola

Tervetuloa tutustumaan kodikkaaseen kotiin Elimäelle palveluiden läheisyyteen. Viihtyisässä 2-kerroksisessa kodissa yläkerran makuuhuoneesta pääset parvekkeelle ihastelemaan puistomaista näkymää. Alakerrassa sinulla on saunatilat ja takkahuone sekä toinen makuuhuoneista. Kodissa uusittu keittiö ja kylpyhuonetilat v. 2005. Huoneistolla autokatospaikka. Tämä kodikas koti tarjoaa mukavaa asumista kauniissa, rauhaisassa ympäristössä.

Perustiedot

Kaupunginosa
Elimäki
Kohdenumero
1354259
Asuinpinta-ala
106,5 m²
Tontin pinta-ala
3 355 m²
Kokonaispinta-ala
106,5 m²
Pinta-alan lähde
Yhtiöjärjestyksenmukainen pinta-ala
Huoneiston kokoonpano
YLÄKERTA: oh, mh, k, wc, p. ALAKERTA: mh, tkh, vh, kph, s
Huoneita
4
Kunto
Hyvä
Kunnon lisätiedot
Hyvä
Lisätietoa vapautumisesta
sopimuksen mukaan
Keittiön varusteet
Jääkaappi/pakastin (2019), sähköliesi, astianpesukoneliitäntä, astianpesukone, liesituuletin/ aktiivihiilisuodatin (2012), kaapistot. Keittiö uusittu kaapistoineen v. 2005.
Parveke
Kyllä
Parvekkeen lisätiedot
sisään vedetty. Parvekkeen suunta: etelä
Kylpyhuoneen varusteet
KYLPYHUONE: suihku, suihkuseinä, pesukoneliitäntä, vesikiertoinen lattialämmitys, poistoilmapuhallin, kiinteät valaisimet. SAUNA: sähkökiuas, kiinteät valaisimet. ERILLINEN WC: peilikaappi, kylpyhuonekaapisto, kiinteät valaisimet. kylpyhuone ja wc-tila remontoitu v. 2005.
Säilytystilat
Vaatehuone, kaapistot, huoneistokohtainen irtainvarasto
Ikkunoiden suunta
pohjoinen, etelä
Näkymät
puistomaiset, pihalle
Tulevat remontit
2024-2028 KUNNOSSAPITOTARVESELVITYS: 2024 ja 2027 IV-nuohous (tarkistetaan liesituulettimien poistokanava). 2024 ja 2027 takkojen nuohous (7 kpl 3.vuoden välein). 2024 parvekeovien takuutarkastus. 2025 turvallisuuskävely ja kattoturvallisuustyöt raportin mukaan. 2025 syyskuussa lämmitysjärjestelmä, takuutarkastus. 2026 käyttövesiputkiston uusimisen suunnittelu, kph vesieristys, sähk. lattialämmitys ja lattiakaivo taloyhtiön kustannus. 2026 etupihan laatoituksen korjaus.
Tehdyt remontit
2023 lämmitysjärjestelmä vaihdettu ilmavesilämpöpumppuun. 2023 uusittu väliaidat. 2023 takapihan puolen otsalautojen kunnostus. 2022 uusittu (A1, C3, D4, F6, G7 ja I9) parvekkeiden ovet 6 kpl. 2021 uusittu ovikellot ja postilaatikot telineineen. 2021 autokatoksen takapuolen kourujen asennus ja piilorännien korjaus. 2020 autokatoksen runkorakenteiden korjaus ja kaltevuuden lisäys. 2019 uusittu energiatodistus. 2019 uusittu kattohuopa, rännit ja syöksyt. 2017 ikkunoiden huoltomaalaus ja korjaus. 2017 etupihan valot uusittu. 2015 öljysäiliö tyhjennetty ja täytetty hiekalla. 2015 IV-nuohous. 2015 lisätty autopistokepaikkoja 2 kpl. 2014 öljylämmitys muutettu maakaasulle. 2014 lämmityskattila uusittu. 2013 käyttövesiputkiston suunnitelma. 2010 etupihan peruskorjaus (vedenohjaus, laatoitus, istutukset). 2005 uusittu ulko-ovet ja lukitus. 2003 maakellarin korjaus. 2003 antennikeskuksen digitalisointi. 2001 kourut uusittu.
Asunnossa sauna
Kyllä
Asumistyyppi
Omistus
Vuokrattu
Ei
Palvelut
Elimäen Yhtenäiskoulu (etäisyys n. 1.9 km), Peippolan päiväkoti (etäisyys n. 2.3 km), Elimäen S-Market (etäisyys n. 1.1 km), Pukaro (etäisyys n. 16 km), Koria (etäisyys n. 18.8 km), Kouvola (etäisyys n. 25 km)
Lisätiedot
7.6.2022 hallitus on kokouksessaan päättänyt, että osakkeenomistajalle voidaan myöntää lupa ilmalämpöpumppujen asentamiseen taloyhtiön ja osakkeenomistajan välillä laadittavan sopimuksen mukaisesti. 19.4.2023 hallituksen kokouksessa on päätetty, että osakkeenomistajan kylpyhuoneremonteissa tarvittavan valvojan kustannukset kuuluvat osakkeenomistajalle. 19.6.2023 yhtiökokouksessa päätetty kph-remonttien osalta veden eristys, sähköisen lattialämmityksen asentaminen ja lattiakaivon uusiminen on taloyhtiön kustannus. Avotakat (A, C, D, F, G, I, ja J) on asennettu rakennusvaiheessa ja taloyhtiö vastaa niiden nuohouksesta (viimeksi v. 2021). .
Kohde on
Osakehuoneisto
Osakeluettelo on siirretty huoneistojärjestelmään
Kyllä
Tiedustelut
Satu Hurmalainen-Lehtinen p. 050 301 6700
satu.hurmalainen@kiinteistomaaima.fi

Hinta

Velaton hinta
60 000 €
Myyntihinta
42 745,57 €
Neliöhinta
563,38 € / m²
Lainalaskuri

Vastikkeet

Hoitovastike
426 € / kk
Pääomavastike
106,50 € / kk
Yhtiövastike yhteensä
532,50 € / kk

Muut maksut

Vesimaksu
25 € / kk
Vesimaksun lisätiedot
25 €/hlö/kk

Talon ja tontin tiedot

Uudiskohde
Ei
Taloyhtiön nimi
Asunto Oy Lapiolinja
Rakennuksen tyyppi
Rivitalo
Rakennusvuosi
1978
Rakennusvuoden lisätiedot
1978
Huoneistojen lukumäärä
10
Liiketilojen pinta-ala
0 m²
Liikehuoneistojen lukumäärä
0
Hissi
Ei
Taloyhtiössä on sauna
Ei
Rakennusmateriaali
Puu, tiili
Kattomateriaali
Huopa
Kattotyyppi
Harjakatto
Energialuokka
D2018
Kiinteistön antennijärjestelmä
Yhteisantennijärjestelmä DVB-T
Tontin koko
3 355 m²
Liikenneyhteydet
Elimäen keskusta (etäisyys n. 1.1 km)
Pihan ilmansuunnat
pohjoinen,etelä
Lisätietoja lämmityksestä
Vesi-ilmalämpö
Lisätietoja talosta
Siirry talosivulle
Tontin omistus
Oma

Tilat ja materiaalit

Pysäköintitilan kuvaus
Katospaikka, kuuluu huoneistoon yhtiöjärjestyksen perusteella
Yhteiset tilat
Huoneistokohtainen irtainvarasto
Ominaisuudet
Kiinteät valaisimet, sälekaihtimet, naulakko, takka (ei varaava)
Lainalaskuri