Hiljainen myynti - huomisen kohteet jo tänään!

Tulossa myyntiin -merkinnällä olevat asuntoilmoitukset ovat hiljaisessa myynnissä olevia asuntoja. Seuraamalla näitä asuntoja saat tietää aina ensimmäisten joukossa, mitkä asunnot ovat tulossa myyntiin. Ota yhteys ilmoittajaan ja kerro kiinnostuksestasi asuntoa kohtaan.

TULOSSA MYYNTIIN

70 000 €76 m²

Mustasaarentie 111, Koivumäenkylä, Kauhajoki2h

Velaton hinta
70 000 €
Asuinpinta-ala
76 m²
Huoneita
2
Rakennusvuosi
2010
Rakennuksen tyyppi
Muu
Kaupunginosa
Koivumäenkylä
Kaupunki
Kauhajoki

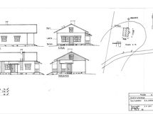
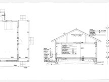
Mökki, metsätila/peltotila yht.10,4ha, vanha maatila talousrakennuksineen

Kahdesta kiinteistöstä koostuva kokonaisuus. Metsää ja peltoa vaikkapa luomutilaksi tai muuhun harrastetoimintaan. Kokonaisuuteen kuuluu useita rakennuksia, joista uusin rakennettu tällä vuosituhannella ja loppusilausta vaille valmis. Soita ja kysy lisää /tarjoa. Jouko Salomäki 040-6208 213

Perustiedot

Kaupunginosa
Koivumäenkylä
Kohdenumero
21856738
Asuinpinta-ala
76 m²
Huoneiston kokoonpano
2h
Huoneita
2

Hinta

Velaton hinta
70 000 €
Myyntihinta
70 000 €
Neliöhinta
921,05 € / m²

Talon ja tontin tiedot

Rakennuksen tyyppi
Muu
Rakennusvuosi
2010
Liikehuoneistojen lukumäärä
0
Liikehuoneistojen pinta-ala
0 m²
Lämmitys
Sähkö
Lisätietoja lämmityksestä
Suora sähkölämmitys
Rungon rakennustapa
Paikalla tehty
Tontin omistus
Oma