258 000 €135 m²

Ykköspesä 4, Reima/Pitkämäki, Kankaanpää4mh, oloh, k, kph, khh, s, 2wc

Myyntihinta
258 000 €
Asuinpinta-ala
135 m²
Huoneita
5
Kerros
2 / 2
Rakennusvuosi
2012
Rakennuksen tyyppi
Omakotitalo
Kaupunginosa
Reima/Pitkämäki
Kaupunki
Kankaanpää

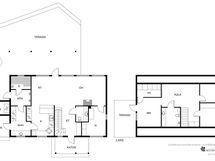
Skandinaavisen tyylikäs koti Pitkämäessä. Tämä hillityn, tumman harmaa talo vaihtuu kutkuttavan valoisiin asuintiloihin heti sisään astumisen jälkeen. Eteisestä näkymä olohuoneeseen, jossa lähes seinän täydeltä huoneenkorkuisia ikkunoita etelä-länsi suuntaan, taaten auringonvaloa päivästä iltamyöhään. Olohuoneen yhteydessä ruokailutila, jonka vieressä avokeittiö. Kodinhoitohuoneeseen käynti keittiöstä ja suoraan etupihalta. Kylpyhuoneen kautta käynti terassille, jossa kylpytynnyri ja 80 neliötä tilaa ulkona oleskeluun. Olohuoneen vieressä yksi makuuhuone. Yläkerrassa aula, kolme makuuhuonetta ja suihkukaapilla varustettu tilava wc. Hienosti suunniteltu kokonaisuus, jossa asuinpinta-ala 135 neliötä käytetty poikkeuksellisen hyvin.

Kauniiden pintojen lisäksi erityistä huomioita on kiinnitetty myös energiatehokkuuteen. Vesikiertoinen lattialämmitys kaukolämmöllä. Molemmissa kerroksissa ilmalämpöpumput lämmitykseen/viilennykseen. Vuosittainen kaukolämpökustannus ollut lapsiperheellä 1500- 1700 euron välillä. Olohuoneessa varaava takka. Energialuokka B. Autotallirakennuksessa kaukolämmitteiset talli- ja varastotilat sekä autokatos. Etupiha asfaltoitu/kivetty. Suojaisalla mutta aurinkoisella takapihalla suuren terassin lisäksi paljon hyvin hoidettua nurmikkoaluetta.

Hieno koti tarjolla, tervetuloa tutustumaan!

Perustiedot

Kaupunginosa
Reima/Pitkämäki
Kohdenumero
21860473
Kerros
2 / 2
Asuinpinta-ala
135 m²
Tontin pinta-ala
1 588 m²
Kokonaispinta-ala
152 m²
Pinta-alojen lisätiedot
Huoneiston kokoonpano
4mh, oloh, k, kph, khh, s, 2wc
Huoneita
5
Kunto
Hyvä
Lisätietoa vapautumisesta
sopimuksen mukaan
Keittiön varusteet
Liesi: induktio. Työtasot: laminaatti. Kylmäsäilytys: jääkaappi/pakastin. Varustus: liesituuletin, mikroaaltouuni, astianpesukone.
Kylpyhuoneen varusteet
Varustus: lattialämmitys, suihku. Erillisen WC:n kuvaus: Molemmissa kerroksissa. Yläkerran wc:ssä suihku. Varustus: lattialämmitys, suihkukaappi, peilikaappi, bidee-suihku.
Säilytystilat
Kuvaus: Vaatehuone yläkerrassa. Tilava ulkovarasto autotallin yhteydessä.vaatehuone, ulkovarasto
Asunnossa sauna
Kyllä
Saunan lisätiedot
sähkökiuas
Asumistyyppi
Omistus
Lisätiedot
Sähköliittymä.
Kohde on
Kiinteistö
Kiinteistötunnus
214-7-547-2
Tietoliikennepalvelut
valokuitu

Hinta

Myyntihinta
258 000 €

Muut maksut

Muut kustannukset
Muut maksut: Kiinteistön käytöstä aiheutuvat maksut. Kaukolämmön kustannus/vuosi (talo+talli) n. 1500-1700EUR/vuosi (5hlö). Sähkönkulutus noin 6000kwh/vuosi. Varainsiirtovero 3%.
Kiinteistövero
478 €/v

Talon ja tontin tiedot

Uudiskohde
Ei
Rakennuksen tyyppi
Omakotitalo
Rakennusvuosi
2012
Kerroksia
2
Rakennusmateriaali
Puurunko, lautaverhous puu
Kattomateriaali
Tiilikate
Kattotyyppi
Harjakatto
Energialuokka
B2018
Energiatodistus
Kyllä
Kiinteistön antennijärjestelmä
kaapeli-tv
Tontin koko
1 588 m²
Kaavatilanne
Asemakaava
Rakennusoikeus
300 m2.
Lämmitys
Kaukolämpö, Ilmalämpöpumppu
Lämmönjakelu
Vesikiertoinen lattialämmitys, Uuni/takka, Ilmalämpöpumppu
Lisätietoja lämmityksestä
Vesikiertoinen lattialämmitys (kaukolämpö), varaava takka 2 ilmalämpöpumppua
Tontin omistus
Oma

Tilat ja materiaalit

Muut tilat
Tekninen tila. Terassin pinta-ala 81m2, jossa kylpytynnyri. Yläkerrassa aula ja parveke.
Pintamateriaalit
Lattia: Keittiössä: laatta. Pesutiloissa: laatta. Erillisessä WC:ssä: laatta. Olohuoneessa: laminaatti. Makuuhuoneessa: laminaatti. Saunassa: laatta. Kodinhoitohuoneessa: laatta. Seinät: Keittiössä: maalattu. Pesutiloissa: kaakeli. Erillisessä WC:ssä: kaakeli, tapetti. Olohuoneessa: maalattu. Makuuhuoneessa: maalattu, tapetti. Saunassa: puu. Kodinhoitohuoneessa: kaakeli.
Lisätietoja makuuhuoneen varusteista
Yksi alakerrassa, kolme yläkerrassa.

Tekniset tiedot

Viemäröinti
kunnan