149 000 €78,3 m²

Keinokartanontie 12, Okeroinen, Hollola3h+k+s

Velaton hinta
149 000 €
Hoitovastike
305,37 € / kk
Asuinpinta-ala
78,3 m²
Huoneita
3
Kerroksia
2
Rakennusvuosi
1981
Rakennuksen tyyppi
Rivitalo
Kaupunginosa
Okeroinen
Kaupunki
Hollola

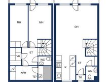
Keinokartanontie 12:ssa, Hollolan rauhallisella asuinalueella, odottaa viehättävä rivitalokoti uusia asukkaita. Tämä kaksitasoinen, vuonna 1981 valmistunut asunto tarjoaa mukavaa asumista hyvällä pohjaratkaisulla. Asunnossa on tilavat kaksi makuuhuonetta, olohuone, keittiö ja oma sauna. Parveke ja terassi suuntautuvat etelään, mikä takaa runsaasti luonnonvaloa ja mahdollisuuden nauttia ulkoilmasta.

Asunto Oy Viherpeippo on hyvin hoidettu taloyhtiö, jossa on tehty säännöllisesti huolto- ja kunnostustöitä. Asunnon lämmitysjärjestelmänä toimii kaukolämpö, mikä lisää asumismukavuutta. Taloyhtiöllä on oma tontti, ja autokatospaikka löytyy kätevästi asunnon edestä.

Sijainti on erinomainen perheille, sillä lähellä on päiväkoti ja koulu. Alueella on hyvät liikenneyhteydet, ja luonnonläheinen ympäristö tarjoaa upeat ulkoilumahdollisuudet. Tämä koti on ihanteellinen valinta, jos arvostat rauhallista asuinympäristöä ja toimivaa arkea. Tartu tilaisuuteen ja tule tutustumaan!

Etu tämän kohteen ostajalle

Tämän kohteen kauppoihin sisältyy täysin veloitukseton oikeusturvavakuutus, joka tuo mielenrauhaa ja turvaa uuden kodin hankintaan.

Lue lisää

Perustiedot

Kaupunginosa
Okeroinen
Kohdenumero
80431135
Kerroksia
2
Asuinpinta-ala
78,3 m²
Tontin pinta-ala
1 380 m²
Kokonaispinta-ala
78,3 m²
Pinta-alojen lisätiedot
Pinta-alan peruste: Yhtiöjärjestyksen mukainen
Huoneiston kokoonpano
3h+k+s
Huoneita
3
Kunto
Hyvä
Lisätietoa vapautumisesta
Sopimuksen mukaan.
Keittiön varusteet
Keittiön varusteet: Jääkaappi, erillinen pakastin, erillisuuni, liesi, liesituuletin ja astianpesukone. Liesi: Keraaminen liesi. Työtason materiaali: Laminaatti.
Parveke
Kyllä
Parvekkeen lisätiedot
Parvekkeen tyyppi: Ulostyönnetty parveke. Parvekkeen suunta: Etelä.
Kylpyhuoneen varusteet
Pesutilojen varusteet: Suihku, pesukoneliitäntä ja lattialämmitys. Erillisten WC:n lukumäärä: 2. Erillisen WC:n varusteet: WC-istuin, peilikaappi, allaskaappi ja bidee-suihku.
Säilytystilat
Vaatehuone ja kylmä ulkovarasto
Tulevat remontit
Salaojien huuhtelu ja tarkastus 2025 Ikkunoiden kuntotarkastus 2025 Vesikaton maalaus 2026 Ajoväylien kunnostus Keinokartanontien kunnostuksen yhteydessä 2025-2028 Huoneistoparvekkeiden kaiteiden kunnostus 2030
Tehdyt remontit
1991 Parvekevanerit uusittu. 1998 Antennivahvistin uusittu. 2001 Sadevesikourut ja -juoksuputket uusittu. 2010 Ulkokatto maalattu. 2017 Sadevesikourut uusittu, lumiesteet asennettu. 2019 Lämmönvaihdin uusittu. 2023 Märkätilojen kuntokartoitus, jäteastioiden aitauksen rakentaminen. 2024 LVIS-saneerauksen suunnittelu ja kilpailutus. 2025 LVIS-saneeraus 2024-2025 2025 Sähkökeskuksen uusiminen ja huoltaminen
Asunnossa sauna
Kyllä
Saunan lisätiedot
Kiuas: Sähkökiuas
Asumistyyppi
Omistus
Vuokrattu
Ei
Kohde on
Osakehuoneisto
Postitoimipaikka
Hollola

Hinta

Velaton hinta
149 000 €
Myyntihinta
118 788 €
Neliöhinta
1 902,94 € / m²
Velkaosuus
30 212 €
Lunastuspykälä
Taloyhtiöllä ei lunastusoikeutta. Osakkailla ei lunastusoikeutta.

Vastikkeet

Hoitovastike
305,37 € / kk
Pääomavastike
255,12 € / kk
Yhtiövastike yhteensä
560,49 € / kk

Muut maksut

Vesimaksun lisätiedot
19 € / hlö / kk

Talon ja tontin tiedot

Uudiskohde
Ei
Taloyhtiön nimi
Asunto Oy Viherpeippo
Lisätietoa taloyhtiöstä
Taloyhtiön kiinnitykset: 716 400 €.
Rakennuksen tyyppi
Rivitalo
Rakennusvuosi
1981
Huoneistojen lukumäärä
9
Kerroksia
2
Taloyhtiössä on sauna
Ei
Rakennusmateriaali
Puu ja betoni
Kattomateriaali
Maalattu pelti
Kattotyyppi
Harjakatto
Energialuokka
Energialuokka: C2018, Energiatodistuksen voimassaoloaika: 23.05.2032
Energiatodistus
Kyllä
Ilmastointijärjestelmä
Painovoimainen ilmanvaihto
Kiinteistön antennijärjestelmä
Kaapeli-TV
Tontin koko
1 380 m²
Kiinteistönhoito
Asukkaat
Isännöinti
TiKo Isännöinti Oy, Veli-Pekka Mäntynen, veli-pekka.mantynen@tikoisannointi.fi, 0401485401
Liikenneyhteydet
Hyvä kulkuyhteys ja sujuvat yhteydet omalla autolla
Lämmitys
Kaukolämpö
Lisätietoja lämmityksestä
Kaukolämpö
Lisätietoja talosta
Siirry talosivulle
Tontin omistus
Oma

Tilat ja materiaalit

Pysäköintitilan kuvaus
Lisätietoja huoneiston autopaikasta: Autokatospaikka huoneiston edessä
Yhteiset tilat
Ulkovarasto ja kaapeli-tv
Keittiön lattia
Laatta
Keittiön seinä
Maali, tapetti ja laatta
Makuuhuoneen lattia
Laminaatti
Makuuhuoneen seinät
Tapetti ja maali
Kylpyhuoneen lattia
Laatta
Kylpyhuoneen seinät
Kaakeli
Olohuoneen lattia
Parketti
Olohuoneen seinät
Tapetti
Ominaisuudet
Kohde myydään kalustettuna: Ei

Tekniset tiedot

Vesi ja jätevesi
Vesijohto: Kunnallisvesi.
Viemäröinti
Kunnallinen viemäriverkosto.