487 399 €67 m²

Verkkosaarenranta 2 A 5, Kalasatama, Helsinki3h + avok + p

Velaton hinta
487 399 €
Asuinpinta-ala
67 m²
Huoneita
3
Kerros
2 / 6
Rakennusvuosi
2026
Rakennuksen tyyppi
Kerrostalo
Kaupunginosa
Kalasatama
Kaupunki
Helsinki

Upean kolmion ikkunoista avautuu meri

Stadin Ankkuri on asukkaiden itsensä rakennuttama 28 asunnon kerrostalo Kalasatamassa. Sijainti Verkkosaaren kanavan ja meren yhtymäkohdassa tarjoaa hulppeat näkymät, loistavat yhteydet sekä monipuoliset palvelut ja virkistysmahdollisuudet. Tavoitteemme on luoda talo, jossa runsaat, toimivat ja viihtyisät yhteiset tilat tukevat yhteisöllisyyttä. Keitiössä voi kokata isollekin porukalle ja olohuoneessa katsella leffoja. Kattoterassilla saa pyykit kuivaksi ja viherhuone jatkaa kasvukautta molemmista päistä. Energiaa yhteisiin tiloihin tuotamme sekä maasta että auringosta. Parkkihalliin saa pysäköityä niin fillarit kuin sähköautotkin. Kiinnostuitko? Rakennuta itsellesi omanlainen koti! Vielä ehtisit tekemään valitsemaasi asuntoon jonkin verran yksilöllisiä ratkaisuja. Pääsisit myös vaikuttamaan talon yhteisiin asioihin. Ankkurilla on rakennuslupa ja rakentamaan päästään, kun kaikki asunnot ovat tulleet sitovasti varatuiksi.  Ilmoituksen hinnat perustuvat luotettavan toimiston tekemään kustannusarvioon. Ryhmärakennuttamishankkeen hinta tarkentuu kuitenkin vasta urakkasopimuksen kilpailutuksen jälkeen.  Hankkeen on käynnistänyt Stadiin ry, joka on jo rakennuttanut yhden talon Kalasatamaan. Nyt on Ankkurin aika. Tehdään se yhdessä! www.stadinankkuri.fi

Perustiedot

Kaupunginosa
Kalasatama
Kohdenumero
21070318
Kerros
2 / 6
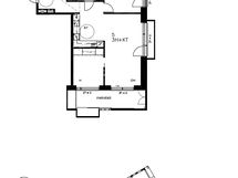
Asuinpinta-ala
67 m²
Kokonaispinta-ala
67 m²
Pinta-alojen lisätiedot
HUOM! Asunto on yhdistettävissä viereiseen asuntoon A6 (41,5m"), jolloin muodostuu kookas perheasunto. Kysy lisätietoja!
Huoneiston kokoonpano
3h + avok + p
Huoneita
3
Kunto
Hyvä
Kunnon lisätiedot
uudisrakennus
Vapautuu
01.01.2027
Keittiö
Avokeittiö
Keittiön varusteet
Astianpesukone, Integroidut koneet, Pesukoneliitos, Liesituuletin, Induktioliesi, Liesi tai uuni erikseen, Jää-pakastinkaappi, Tilaa isolle ruokapöydälle
Parveke
Kyllä
Parvekkeen lisätiedot
Parveke, Lasitettu parveke, Ranskalainen parveke, Parvekkeelta ja olohuoneesta näkymä merelle, itään.
Kylpyhuoneen varusteet
Suihku, Pesukonevalmius, Peilikaappi, Allaskaappi, Laattalattia, Laattaseinä, Lattialämmitys
Säilytystilat
Säilytystilaa, Tilaa pyykeille, Tilaa ulkoiluvälineille, varastokomero
Ominaisuudet
Valoisa, Korkeat ikkunat, Paljon ikkunoita
Ikkunoiden suunta
Ikkunoita länteen
Näkymät
Avoin merinäköala.
Asumistyyppi
Omistus
Soveltuvuus liikuntaesteisille
Sekä asunnot että yhteistilat sopivat liikuntaesteisille.
Palvelut
Kirjasto lähellä, Terveyskeskus lähellä, Lääkäriasema lähellä, Puisto lähellä, Päiväkoti lähellä, Ala-aste lähellä, Yläaste lähellä
Muut ehdot
Asunnon varaajat tutustuvat huolellisesti kaikkiin hankkeen asiakirjoihin ja suunnitelmiin ja allekirjoittavat ryhmärakennuttamissopimuksen sekä asukassopimuksen.
Kohde on
Osakehuoneisto

Hinta

Velaton hinta
487 399 €
Myyntihinta
243 670 €
Neliöhinta
7 274,61 € / m²
Velkaosuus
243 669 €
Taloyhtiön tilat ja tuotot
Yhteistiloja mm. olohuone, keittiö, takkahuone, 2 saunaa, pesula+vaatehuoltotila, kattoterassi merinäkymin.
Kohde on yhtiölainoitettu
Taloyhtiölainasta on vastuussa jokainen osakas. Jos lainaa koskevia pääomavastikkeita ei saada joidenkin asuntojen osalta muutoin perittyä, maksuvelvollisuus voi langeta viime kädessä muille osakkaille.

Vastikkeet

Hoitovastike
663 € / kk
Yhtiövastike yhteensä
663 € / kk

Muut maksut

Vesimaksun lisätiedot
Omat vesimittarit, laskutus kulutuksen mukaan.
Saunamaksu
Sovitaan asukaskokouksessa myöhemmin.

Talon ja tontin tiedot

Valmistumisaika
1.1.2027
Uudiskohde
Kyllä
Taloyhtiön nimi
Stadin Ankkuri
Lisätietoa taloyhtiöstä
Taloyhtiö perustetaan osakkaiden toimesta.
Rakennuksen tyyppi
Kerrostalo
Rakennusvuosi
2026
Rakennuksen käyttöönottovuosi
2027
Kerroksia
6
Hissi
Kyllä
Taloyhtiössä on sauna
Kyllä
Lisätietoa taloyhtiön saunasta
Taloyhtiössä on 2 saunaa katolla ja niiden yhteydessä takkahuone sekä terassi merinäkymin. Saunojen käytöstä asukkaat päättävät itse asukaskokouksessa.
Rakennusmateriaali
Betoni, Tiili
Kattotyyppi
Tasakatto
Energialuokka
A2007
Ilmanvaihto
Koneellinen, lämmön talteenotolla
Kiinteistön antennijärjestelmä
Kaapeli
Harrastusmahdollisuudet
Ulkoilureittejä, Kuntosali lähellä, Urheiluhalli lähellä, Jalkapallokenttä, Uimaranta lähellä, Uimahalli lähellä
Liikenneyhteydet
Bussipysäkki lähellä, Yöbussin pysäkki lähellä, Raitiovaunupysäkki lähellä, Sujuvat yhteydet omalla autolla, Metroasema lähellä, Taksitolppa lähellä
Lämmitys
Maalämpö
Lisätietoja lämmityksestä
Vesikeskuslämmitys, Maalämpöpumppu
Rungon rakennustapa
Elementti

Tilat ja materiaalit

Pysäköintitilan kuvaus
Parkkihalli, Pistokkeellisia autopaikkoja, 16 autopaikkaa
Pintamateriaalit
Parketti