269 900 €33,5 m²

Mäkitorpantie 30, Oulunkylä, Helsinki1h + avok + lasitettu parveke

Velaton hinta
269 900 €
Hoitovastike
206,03 € / kk
Asuinpinta-ala
33,5 m²
Huoneita
1
Kerros
3 / 4
Rakennusvuosi
2017
Rakennuksen tyyppi
Kerrostalo
Kaupunginosa
Oulunkylä
Kaupunki
Helsinki

Valoisa ja tilava yksiö Oulunkylässä, lasitetulla parvekkeella - OMA TONTTI

Tervetuloa tutustumaan tähän upeaan, valoisaan yksiöön (33,5 m²) Helsingin Oulunkylässä! Asunto sijaitsee erinomaisella paikalla, hyvien liikenneyhteyksien ja monipuolisten palveluiden äärellä.

Soveltuu omaan käyttöön tai sijoittajalle. Asunto on juuri vuokrattu toistaiseksi voimassaolevalla sopimuksella, jonka ensimmäinen mahdollinen irtisanomisaika on 11kk kuluttua.

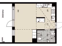
Asunnon ominaisuudet: Lattiat: Parkettia Kylpyhuone: Kaakeloitu Lämmitys: Lattialämmitys, ei häiritseviä pattereita Parveke: Koko huoneiston levyinen, lasitettu (n. 10 m²) Yhteiset tilat: Pesula, kerhohuone ja saunaosasto Varastotila: Oma irtainvarasto Piha: Viihtyisä, istutettu piha lasten leikkipaikoilla

Asunto on valmistunut heinäkuussa 2017 ja on tällä hetkellä vuokrattuna. Näytöt sopimuksen mukaan.

Sijainti: Asunto sijaitsee arvostetulla alueella Oulunkylässä, lyhyen kävelymatkan päässä palveluista. Oulunkylä tunnetaan rauhallisesta ja kylämäisestä tunnelmastaan, vehreydestään ja puistomaisista maisemistaan. Läheisestä liikekeskuksesta löydät kaikki tarvittavat palvelut, kuten kaupat, postin ja pankin. Alueella on myös kirjasto, terveysasema, koulut, päiväkoti ja lasten leikkipuisto.

Liikenneyhteydet: Oulunkylästä on erinomaiset liikenneyhteydet. Junalla pääset Helsingin keskustaan noin 10 minuutissa. Tuleva Raide-Jokeri kulkee Oulunkylän läpi, tuoden mukanaan uusia kävely- ja pyöräilyteitä. Kehä 1:n läheisyys mahdollistaa sujuvan liikkumisen eri suuntiin.

Ulkoilu ja liikunta: Oulunkylän alueella on runsaasti ulkoilu- ja liikuntamahdollisuuksia. Oulunkylän liikuntapuistosta löydät jalkapallokentän, jäähallin, tekojääradan, curlinghallin ja erilaisia liikuntasaleja. Uimarit voivat suunnata Pirkkolan uimahalliin tai kesäisin Kumpulan maauimalaan. Vantaanjoen rannassa kulkee suosittuja ulkoilureittejä ja talvisin hiihtolatuja.

Perustiedot

Kaupunginosa
Oulunkylä
Kohdenumero
16217269
Kerros
3 / 4
Asuinpinta-ala
33,5 m²
Huoneiston kokoonpano
1h + avok + lasitettu parveke
Huoneita
1
Kunto
Hyvä
Vapautuu
Heti vapaa
Keittiö
Avokeittiö
Keittiön varusteet
Paljon kaappitilaa, Paljon työskentelytilaa, Suuri tiskipöytä, Halogeenivalot, Laminaattitasot, Astianpesukone, Keraaminen liesi, Liesituuletin, Liesikupu, Jääkaappi, Pakastin
Parveke
Kyllä
Parvekkeen lisätiedot
Lasitettu parveke, Iso parveke
Kylpyhuoneen varusteet
Suihku, Suihkuseinä, Pesukonevalmius, Peilikaappi, Allaskaappi, Laattalattia, Laattaseinä, Halogeenivalot
Säilytystilat
Säilytystilaa, Tilaa ulkoiluvälineille, Ullakkokomero
Ominaisuudet
Valoisa, Sälekaihtimet
Asumistyyppi
Omistus
Vuokrattu
Kyllä
Kohde on
Osakehuoneisto
Osakeluettelo on siirretty huoneistojärjestelmään
Kyllä
Sähköinen omistajamerkintä
Ei

Hinta

Velaton hinta
269 900 €
Myyntihinta
153 252 €
Neliöhinta
8 056,72 € / m²
Vuokratulo
885 € / kk
Velkaosuus
116 648 €

Vastikkeet

Hoitovastike
206,03 € / kk
Pääomavastike
987 € / kk
Yhtiövastike yhteensä
1 193,03 € / kk

Muut maksut

Lämmityskustannukset
sisältyy vastikkeeseen
Vesimaksu
15 € / kk
Saunamaksu
10

Talon ja tontin tiedot

Taloyhtiön nimi
Asunto Oy Oulunkylän Onnela
Rakennuksen tyyppi
Kerrostalo
Rakennusvuosi
2017
Liikehuoneistojen lukumäärä
0
Liikehuoneistojen pinta-ala
0 m²
Rakennuksen käyttöönottovuosi
2017
Kerroksia
4
Hissi
Kyllä
Energialuokka
C2013
Lisätietoja lämmityksestä
Vesikeskuslämmitys
Rungon rakennustapa
Elementti
Lisätietoja talosta
Siirry talosivulle
Tontin omistus
Oma

Tilat ja materiaalit

Pintamateriaalit
Parketti