15 500 €150 m²

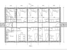
Venttiilitie, Eurajoki, EurajokiKeittiö + rh + kph (2 x suihku/2 x wc-istuin) + 7 h.

Myyntihinta
15 500 €
Asuinpinta-ala
150 m²
Huoneita
7
Kerroksia
1
Rakennusvuosi
2005
Rakennuksen tyyppi
Erillistalo
Kaupunginosa
Eurajoki
Kaupunki
Eurajoki

Asuntoyksikkö, majoitus -tai pysyvään asumiseen

150 m2, majoitus -tai pysyvään asumiseen tarkoitettuja asumisyksiköitä.

Yksikön mitat: p 15,532 m x l 9,708 m x 3,544 m (sisäkorkeus: 2,557 m)

Keittiö + rh + kph (2 x suihku/2 x wc-istuin) + 7 h. Hinta: 15 500 € + alv

Ovat olleet majoituskäytössä ja erittäin hyväkuntoisia.

Yksiköt tuotaisiin kahdessa lohkossa ja se ei tarvitse muuta kuin suoran alustan mihin tulee kolme isoa palkkia alle. Asuinyksiköt eivät tarvitse muuta kuin sähkön, veden ja viemäriliitännän. Patterit ovat paikoillaan.

Mikäli kyse väliaikaisesta asumisesta, menee lupabyrokratia pelkällä toimenpideluvalla joten rakennuslupaa ei tarvita. Yksiköitä mahdollisuus asentaa päällekkäin. Teräsrakenne myös mahdollistaa väliseinien poistamisen.

Yksiköitä on useampia kappaleita jäljellä.

Asumismukavuutta lisäämään tarjolla myös vaihtoehtoja:

Majoitusyksiköiden ilmanvaihdon ja lämmön talteenoton sekä putkituksen asennus jokaiseen huoneeseen selvitetty, paperit kysyttäessä!

E-luvun mittaukset/laskelmat eri variaatoilla tehty, paperit kysyttäessä!

Meidän kauttamme myös mahdollisuus kysellä kuljetusta.

Kysy rohkeasti lisää.

Varaa oma esittelyaika.

Lisätietoja antaa

Jari Viertonen

p. 045 273 1098

s-posti: jari.viertonen69@gmail.com

Perustiedot

Kaupunginosa
Eurajoki
Kohdenumero
21111319
Kerroksia
1
Asuinpinta-ala
150 m²
Kokonaispinta-ala
150 m²
Huoneiston kokoonpano
Keittiö + rh + kph (2 x suihku/2 x wc-istuin) + 7 h.
Huoneita
7
Kunto
Tyydyttävä
Keittiö
Avokeittiö
Keittiön varusteet
Suuri tiskipöytä, Astianpesukone, Liesituuletin, Sähköliesi, Jää-viileäkaappi
Kylpyhuoneen varusteet
Suihku x 2, wc x 2, iso peili ja pesuallas x 2
Kohde on
Kiinteistö

Hinta

Myyntihinta
15 500 €

Talon ja tontin tiedot

Rakennuksen tyyppi
Erillistalo
Rakennusvuosi
2005
Kerroksia
1