28 959 €72,5 m²

Tikankolo 4, Leppävaara, Espoo3h+k+s

Velaton hinta
28 959 €
Hoitovastike
1 139,55 € / kk
Asuinpinta-ala
72,5 m²
Huoneita
3
Kerros
1 / 3
Rakennusvuosi
1998
Rakennuksen tyyppi
Kerrostalo
Kaupunginosa
Leppävaara
Kaupunki
Espoo

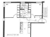
Keväällä vapautuva siisti ja hyväpohjainen kolmio. Asunto on ensimmäisessä kerroksessa (talossa kaksi kerrosta). Oma sauna ja parveke. Asuintilojen lattiat ovat laminaattia. Tikankolo 4 on kolmen kerrostalon asumisoikeuskohde Espoon Lintuvaarassa. Lintuvaara on rauhallista pientalovaltaista aluetta aivan Leppävaaran runsaiden palveluiden lähettyvillä. Muun muassa kauppakeskus Sello loistavine palveluineen sijaitsee noin 1,5 kilometrin päässä. Lähistöltä löytyy kauppojen lisäksi myös muun muassa kirjasto elokuvateatteri, terveyskeskus ja lääkäriasemia. Alueen ulkoilu- ja liikuntamahdollisuudet ovat erinomaiset. Kävelymatkan päässä on mm. frisbeegolfrata, urheilupuisto, maauimala, uimahalli, hiihtoladut, seikkailupuisto ja ratsastuskoulu. Useat liikuntakeskukset löytyvät muutaman kilometrin säteeltä. Kohde on rauhallisella sijainnilla tien päässä ja sieltä on kävellen Leppävaaran juna-asemalle matkaa vain noin 1,5 kilometriä. Useita bussilinjoja kulkee aivan lähettyviltä. Lyhyen matkan päässä on päiväkoteja ja useampia eri asteisia suomen- sekä ruotsinkielisiä kouluja. Talot ovat hissittömiä. Kiinteistö on savuton. Savuttomuus tarkoittaa, että tupakointi on kielletty koko kiinteistössä, sen huoneistoissa, parvekkeilla, piha-alueilla ja yhteisissä tiloissa.

Perustiedot

Sijainti
Tikankolo 4, 02660 Espoo
Kaupunginosa
Leppävaara
Kerros
1 / 3
Asuinpinta-ala
72,5 m²
Kokonaispinta-ala
72,5 m²
Huoneiston kokoonpano
3h+k+s
Huoneita
3
Vapautuu
13.05.2026
Parveke
Kyllä
Asunnossa sauna
Kyllä
Asumistyyppi
Asumisoikeus
Lemmikkieläimet sallittu
Kyllä
Lisätiedot
Alkup. asomaksu: 15 746,76 € indeksikorotus: 13 100,00 € muutostyöt: 112,00 €
Postitoimipaikka
ESPOO

Hinta

Velaton hinta
28 958,76 €
Neliöhinta
399,43 € / m²

Vastikkeet

Hoitovastike
1 139,55 € / kk

Muut maksut

Vesimaksun lisätiedot
Vesimaksu 20,00 €/kk/hlö
Muut kustannukset
Vakuus: 2 088,82 €

Talon ja tontin tiedot

Uudiskohde
Ei
Rakennuksen tyyppi
Kerrostalo
Rakennusvuosi
1998
Kerroksia
3
Hissi
Ei
Taloyhtiössä on sauna
Ei
Energialuokka
D2007
Lämmitys
Kaukolämpö
Lisätietoja lämmityksestä
Kaukolämpö
Lisätietoja talosta
Siirry talosivulle