579 000 €101 m²

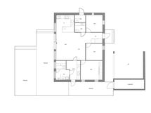
Vesikelkantie 8 D, Kurttila, Espoo4h, k, rt, s, kph, khh, wc, terassi, autokatos, lämmin varasto 7,3 m2 ja tekninen tila 3m².

Myyntihinta
579 000 €
Asuinpinta-ala
101 m²
Huoneita
4
Kerroksia
1
Rakennusvuosi
2022
Rakennuksen tyyppi
Omakotitalo
Kaupunginosa
Kurttila
Kaupunki
Espoo

LAADUKASTA ASUMISTA ÅMINNEN KARTANON KUPEESSA

Tässä Kurttilan Åminnessa sijaitsevassa laadukkaassa omakotitalossa asut palveluiden läheisyydessä, rauhallisella pientaloalueella, hyvien yhteyksien päässä. Tärkeimmät palvelut ja suomen- sekä ruotsinkieliset päiväkodit ja koulut löytyvät kävelyetäisyydeltä.

Myytävänä oleva, omalla tontilla sijaitseva, yksitasoinen, vuonna 2022 rakennettu omakotitalo on uuden veroinen. Rakennusmateriaalina on puu ja perustuksena tuulettuva alapohja. Lämmitysmuotona toimii kustannustehokas poistoilmalämpöpumppu. Toshiba Haori Design ilmalämpöpumppu huolehtii kesällä viilennyksestä ja toimii energian säästäjänä talvella. Talon on toimittanut Ainoakoti/Den Finland Oy ja rakennetakuuta on jäljellä vielä 6 vuotta!

Tämä kuuden omakotitalon tontti on jaettu hallinnanjakosopimuksella. Täällä asut mukavien naapureiden ympäröimänä omalla 636,68 m² tontilla. Kukin määräalan omistaja vastaa omasta kiinteistöstään täysin itsenäisesti. Myytävänä oleva Vesikelkantie 8 D talo sijaitsee suurimalla tontilla aivan alueen perällä. Talon yläpuolella kulkeva tie Åminnenmäki muuttuu kevyenliikenteen väyläksi, kun jo hyväksytty Mulbyn ja Åminnen kaava-alueiden katu- ja puistohanke käynnistyy keväällä. Liikenne siirtyy uudelle asemakaavan mukaiselle hidaskadulle Vesikelkantielle.

Talon yhteydessä on kahden auton autokatos sekä lämmin varasto. Autokatoksessa on valmius myös latauspisteelle. Olohuone jatkuu suoraan aurinkoiselle terassille avattavan liukuoviseinän ansiosta. Terassia suojaisella pihalla on lähes 90 m2! Terassin lisäksi piha-alueen rinteeseen voit halutessasi toteuttaa oleskelualueen ilta-auringon katseluun tai vaikkapa pienen kasvimaan.

Suuri saarekkeellinen Novartin Nordic Nature keittiö on tämän kodin sydän. Keittiö sisältää upean aamiaiskaapin, integroidut kodinkoneet, sekä runsaasti säilytystilaa.

Tässä avarassa kodissa olohuoneen vino katto on korkeimmillaan 3,15 metriä. Kodin lukuisat harkitut ja viimeistelyt yksityiskohdat, sekä laadukkaat pintamateriaalit tekevät tästä kodista ainutlaatuisen.

Tule tutustumaan ja rakastu tämän kodin ainutlaatuiseen tunnelmaan!

Varaa oma yksityisnäyttösi: Sirkka Mertala, 050 357 4696, sirkka@sueno.fi.

Perustiedot

Sijainti
Vesikelkantie 8 D, 02780 Espoo
Kaupunginosa
Kurttila
Kohdenumero
24271625
Kerroksia
1
Asuinpinta-ala
101 m²
Kokonaispinta-ala
111,3 m²
Huoneiston kokoonpano
4h, k, rt, s, kph, khh, wc, terassi, autokatos, lämmin varasto 7,3 m2 ja tekninen tila 3m².
Huoneita
4
Kunto
Hyvä
Kunnon lisätiedot
Uuden veroinen
Lisätietoa vapautumisesta
Sopimuksen mukaan.
Keittiö
Keittiö
Keittiön varusteet
Suuri saarekkeellinen Novartin Nordic Nature keittiö. Keittiö sisältää upean aamiaiskaapin, integroidut kodinkoneet, sekä runsaasti säilytystilaa.
Kylpyhuoneen varusteet
WC:n allaskaluste: Svedbergs Epos. Taso Dekton.
Pesuhuoneen allaskaluste: Bathlife Lättsam, musta tammi
Kaikki hanat: Damixa Silhouet, väri musta. Pesuhuoneessa sadesuihku


Ominaisuudet
Olohuoneen vino katto on korkeimmillaan 3,15 metriä. Olohuoneessa avattava liukuoviseinä suurelle n. 90 m2 terassille.
Asunnossa sauna
Kyllä
Saunan lisätiedot
Sauna: Lämpöhaapa, Kiuas: Harvia Cilindro valokauluksella.
Asumistyyppi
Omistus
Kohde on
Kiinteistö

Hinta

Myyntihinta
579 000 €

Muut maksut

Muut kustannukset
Sähkönkulutus: 11400 kWh vuodessa
Kiinteistövero
679,30 euroa/vuosi

Talon ja tontin tiedot

Rakennuksen tyyppi
Omakotitalo
Rakennusvuosi
2022
Kerroksia
1
Kattomateriaali
Pelti
Kattotyyppi
Pulpettikatto
Energialuokka
B2018
Lämmitys
Poistoilmalämpöpumppu, Ilmalämpöpumppu
Lämmönjakelu
Vesikiertoinen lattialämmitys, Ilmalämpöpumppu
Tontin omistus
Oma

Tilat ja materiaalit

Pysäköintitilan kuvaus
Autokatos, Talon yhteydessä on kahden auton autokatos. Autokatoksessa on valmius latauspisteelle.