1 230 € / kk73,5 m²

Sinirikonkuja 6, Viertola, Vantaa3h + k + s

Vuokra/kk
1 230 € / kk
Asuinpinta-ala
73,5 m²
Huoneita
3
Kerros
2 / 3
Rakennuksen tyyppi
Kerrostalo
Kaupunginosa
Viertola
Kaupunki
Vantaa

Kulmakolmio Tikkurilan keskustassa!

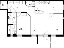
Vuokrataan rauhallisen kerrostaloyhtiön toisen kerroksen saunallinen kulmakolmio keskeiseltä sijainnilta Tikkurilassa, loistavien yhteyksien ja palvelujen ääreltä. Asunnon keittiössä on reilusti kaappi- ja työskentelytilaa, sekä paikka ruokailuryhmälle ikkunan ääressä, ja yhdessä olohuoneen kanssa muodostavat nämä yhteisen avaran oleskelutilan, josta on myös kulku parvekkeelle. Makuuhuoneet sijaitsevat eri puolilla asuntoa omassa rauhassaan. Kylpyhuoneen oman saunan lämmöistä nautit koska haluat, ja perhearkea sujuvoittamassa on asunnossa erillis-wc. Vuokraan sisältyy 50 Mbit/s internetyhteys.

Perustiedot

Sijainti
Sinirikonkuja 6, 01300 Vantaa
Kaupunginosa
Viertola
Kohdenumero
24272852
Kerros
2 / 3
Asuinpinta-ala
73,5 m²
Huoneiston kokoonpano
3h + k + s
Huoneita
3
Kunto
Hyvä
Lisätietoa vapautumisesta
Asunto on heti vapaa, vuokrasopimuksen alkamispäivä sopimuksen mukaan.
Keittiö
Keittiö
Parveke
Kyllä
Asunnossa sauna
Kyllä
Lemmikkieläimet sallittu
Kyllä
Muut ehdot
Tupakointi kielletty, Kotivakuutus vaaditaan, Luottotiedot tarkastetaan.

Hinta

Vuokra/kk
1 230 € / kk
Vakuus
2 460 €
Vuokrauksen erityisehdot
Tässä asumisoikeusasunnossa on vuokrausmahdollisuus silloin, kun asumisoikeushakijoita ei ole. Mikäli vuokraat tämän asumisoikeusasunnon, vuokrasopimus voidaan tehdä määräaikaisena enintään kahdeksi vuodeksi. Määräaikaisuudesta huolimatta vuokralaisella on oikeus irtisanoa vuokrasopimus kuukauden irtisanomisajalla. Mikäli asunnolle ei ole kahden vuoden määräaikaisen vuokrasopimuksen päättyessä kysyntää asumisoikeusasuntona, vuokrasopimusta voidaan jatkaa.
Vuokra-aika
Määräaikainen

Muut maksut

Vesimaksu
16,50 € / kk
Vesimaksun lisätiedot
€/hlö/kk
Sähkömaksu
Vuokralainen tekee sähkösopimuksen
Muut kustannukset
Autopaikkamaksu: 18,50 €/kk

Talon ja tontin tiedot

Rakennuksen tyyppi
Kerrostalo
Huoneistojen lukumäärä
15
Rakennuksen käyttöönottovuosi
1996
Kerroksia
3
Kiinteistön laajakaistayhteys
Elisa
Lämmitys
Kaukolämpö

Tilat ja materiaalit

Pysäköintitilan kuvaus
Pistokkeellisia autopaikkoja