755 € / kk40 m²

Nappulakatu 2, Hyrylä, Tuusula2H+KK+S

Vuokra/kk
755 € / kk
Asuinpinta-ala
40 m²
Huoneita
2
Kerros
3 / 5
Rakennusvuosi
1999
Rakennuksen tyyppi
Kerrostalo
Kaupunginosa
Hyrylä
Kaupunki
Tuusula

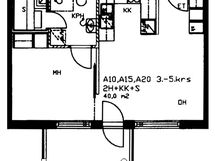
Näppärän kokoinen kaksio 3. kerroksessa. Huomioi että käynti kylpyhuoneeseen on makuuhuoneen kautta. Asuintilojen lattia on laminaattia ja kylpyhuone on laatoitettu. Parveke on ilta-auringon suuntaan.

Tässä asunnossa on myös vuokraus mahdollisuus (755 €/kk). Asunto on tarkoitettu ensisijaisesti asumisoikeusasumiseen ja asuntoa tarjotaan aina ensisijaisesti asumisoikeuden hakijoille. Mikäli asuntoon ei ole asumisoikeushakijoita tulemme olemaan erikseen yhteydessä vuokrahakemuksen jättäneisiin hakijoihin joille asuntoa voidaan tarjota, vuokrahakijoilla ei ole tulo- eikä varallisuusrajoja. Hakemus ei ole sitova eikä asuntoa myydä vuokrasopimuksen voimassaolon aikana. Vuokrasopimus on voimassa toistaiseksi eikä sido määräaikaisuuteen (irtisanomisaika vuokralaisella 1 kk) Kiinnostuitko vuokra-/asumisoikeusasumisesta? Katso lisätiedot ja täytä aso- tai vuokrahakemus sivuillamme: www.asuntosaatio.fi ja ota yhteyttä: raija.saario(at)asuntosaatio.fi

Nappulakatu on aivan Hyrylän keskustassa, Tuusulan ytimessä. Hissillinen kohde jonka ylemmistä kerroksista on hulppeat näkymät keskustan yli. Palvelevat kaupat ja kunnan palvelut terveyskeskuksen kera ovat lähes kotiovella. Uuteen Rykmentinpuiston kouluun on myös lyhyt ja turvallinen kävelymatka. Tien toisella puolella, Ravintola Kerhossa voi käydä nauttimassa maukasta lounasta. Hyrylän keskustasta on myös hyvät julkisen liikenteen yhteydet. HSL:n bussit palvelevat aluetta, ja lähimmät pysäkit ovat kävelymatkan päässä. Kohteeseen on käynnistetty tammikuussa 2026 rahoituksen hakeminen peruskorjausta varten ja hankkeen mahdollinen toteutuminen ja ajankohta tarkentuu kun suunnitteluvaihe etenee. Prosessi on kuitenkin pitkä ja voi kestää usean vuodenkin. Lisätietoja sivuillamme: www.asuntosaatio.fi/asukkaalle/tietoa-asokoti-asukkaalle/asokotien-peruskorjaus/

Tervetuloa asumaan Keski-Uudenmaan vetovoimaisimpaan taajamaan! Nopea yhteys pääkaupunkiseudulle ja kuitenkin asumisen viihtyisyys ja kustannustaso on omaa luokkaansa. Kunnassa on peruspalveluihin panostettu viime vuosina merkittävästi, ja uusia kouluja ja päiväkoteja on valmistunut useita. Tuusulan kunta myöntää myös kuntalisän pieniä lapsia kotona hoitaville vanhemmille. Kuntalaiset arvostavat ennen kaikkea rauhallista ja turvallista asuinympäristöä jossa on tilaa liikkua ja harrastaa.

Tupakointi asunnoissamme: Kaikki uudet asuinkiinteistömme ovat olleet jo pitkään täysin savuttomia heti valmistumisestaan lähtien. Muutumme vähitellen savuttomiksi kaikkien asuntojemme osalta: uusien asukkaiden sopimukset kieltävät tupakoinnin huoneistoissa ja parvekkeilla 1.1.2021 alkaen. Kiinteistö ei ole välttämättä savuton muiden huoneistojen osalta, koska niissä voi olla vanhoja sopimuksia, joissa ei ole tupakointikieltoa.

Perustiedot

Sijainti
Nappulakatu 2, 04300 Tuusula
Kaupunginosa
Hyrylä
Kerros
3 / 5
Asuinpinta-ala
40 m²
Huoneiston kokoonpano
2H+KK+S
Huoneita
2
Kunto
Tyydyttävä
Lisätietoa vapautumisesta
heti vapaa
Parveke
Kyllä
Asunnossa sauna
Kyllä
Asumistyyppi
Vuokra
Lisätiedot
Tupakointi sallittu: Ei.

Hinta

Vuokra/kk
755 € / kk
Lisätietoa vakuudesta
250

Muut maksut

Vesimaksu
15 € / kk

Talon ja tontin tiedot

Taloyhtiön nimi
Nappulakatu 2
Rakennuksen tyyppi
Kerrostalo
Rakennusvuosi
1999
Rakennusvuoden lisätiedot
1999
Kerroksia
5
Hissi
Kyllä
Taloyhtiössä on sauna
Ei
Rakennusmateriaali
Betoni
Energialuokka
E
Energiatodistus
Kyllä
Kiinteistönhoito
Laten KH-Palvelut Oy
Isännöinti
Asuntosäätiö - Isännöinti
Lämmitys
Kaukolämpö
Lisätietoja lämmityksestä
Kauko
Lisätietoja talosta
Siirry talosivulle