925 € / kk66 m²

Itäinen Rantakatu 64 A, Martti, Turku2H+K+S

Vuokra/kk
925 € / kk
Asuinpinta-ala
66 m²
Huoneita
2
Kerros
5
Rakennusvuosi
1999
Rakennuksen tyyppi
Kerrostalo
Kaupunginosa
Martti
Kaupunki
Turku

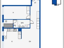
Asunnossa on hyvin suunnitellut neliöt ja valoa tähän päätykaksioon tulvii kahdesta ilmansuunnasta. Asunnon eteisestä löytyy hyvin säilytystilaa. Tässä kodissa pääsee myös nauttimaan oman saunan löylyistä.

KAMPANJA! Aloita uusi vuosi uudessa kodissa ja vuokraa Varman asunto. Saat nyt ensimmäisen täyden kuun vuokrasta -50 % alennuksen. Joulutarjous koskee kaikkia Varman vuokrattavia heti vapaita asuntoja ja on voimassa vain uusille asukkaille. Vuokrasopimus tulee allekirjoittaa 31.12.2025 mennessä ja etu edellyttää 6kk sitoutumista asumiseen.

Itäinen Rantakatu 64 tarjoaa loistavan sijainnin aivan Aurajoen äärellä! Manillan kulttuurimiljöön takana sijaitseva, rinteeseen rakennettu talo tarjoaa asumiselle mielettömän sijainnin. Alueen monipuoliset palvelut, kuten teatterit, ravintolat ja keskustan kaikki mahdollisuudet, ovat helposti saavutettavissa. Läheltä löytyvät myös urheilupuisto, kaupat ja perheille sopivat leikkipaikat sekä Föri kuljettaa kätevästi joen toiselle puolelle. Vuonna 1999 valmistuneessa talossa on koteja yksiöistä kolmioihin, ja jokaisessa asunnossa on oma sauna ja irtainvarasto, lisäksi talosta löytyy pyykkitupa, ulkoiluvälinevarasto sekä pyöränkorjauspiste asukkaiden arkea helpottamaan.

- Toistaiseksi voimassa oleva vuokrasopimus, irtisanomisaika normaali AHVL:n mukainen 1kk - Vakuus 1kk vuokran suuruinen - Ei erillistä vesimaksua - Telian 50M internetyhteys sisältyy vuokraan - Lemmikit tervetulleita - Lämpötolpallisia autopaikkoja parkkihallista hintaan 80 €/kk. - Vuokralainen tekee oman sähkösopimuksen ja ottaa kotivakuutuksen

Uusiin vuokrasopimuksiin laaja tupakointikielto: tupakointi on kielletty parvekkeilla ja taloyhtiön yhteisellä piha-alueella. Tarkistamme luottotiedot ja niiden on oltava kunnossa.

CO2-päästötön energiankulutus -merkki asuntokohteissamme: Osassa asuinkiinteistöjämme taloyhtiön käyttöaikainen kiinteistösähkö ja lämpö ovat hiilidioksidipäästöttömiä. Tämä tarkoittaa, että kiinteistölämpö on tuotettu joko uusiutuvan kaukolämmön tai maalämmön kautta ja kiinteistösähkö on uusiutuvaa. Voit lukea lisää vastuullisuudesta Varman asunnoissa:

https://www.varma.fi/vuokra-asunnot/ajankohtaista-vuokra-asunnoista/artikkelit/usein-kysyttya-varman-asuntojen-vastuullisuudesta/

Olisiko tämä uusi kotisi? Jätäthän pikaisesti asuntohakemuksen, niin pääset mukaan hakuun ja voimme sopia mahdollisesta näytöstä asuntoon.

Perustiedot

Sijainti
Itäinen Rantakatu 64 A, 20810 Turku
Kaupunginosa
Martti
Kerros
5
Asuinpinta-ala
66 m²
Huoneiston kokoonpano
2H+K+S
Huoneita
2
Kunto
Hyvä
Lisätietoa vapautumisesta
heti vapaa
Parveke
Kyllä
Asunnossa sauna
Kyllä
Asumistyyppi
Vuokra
Lemmikkieläimet sallittu
Kyllä
Lisätiedot
Tupakointi sallittu: Ei.

Hinta

Vuokra/kk
925 € / kk
Lisätietoa vakuudesta
925

Muut maksut

Rahoitusmuoto
Vapaa

Talon ja tontin tiedot

Rakennuksen tyyppi
Kerrostalo
Rakennusvuosi
1999
Rakennusvuoden lisätiedot
1999
Hissi
Kyllä
Taloyhtiössä on sauna
Ei
Energialuokka
B (2007)
Energiatodistus
Kyllä
Kiinteistönhoito
Kiinteistöhuolto J. Rusanen Oy