749 € / kk48 m²

Fysiikanpolku 3, Hervanta, Tampere2H+KK

Vuokra/kk
749 € / kk
Vapautuu
09.04.2026
Asuinpinta-ala
48 m²
Huoneita
2
Kerros
5 / 6
Rakennusvuosi
1979
Rakennuksen tyyppi
Kerrostalo
Kaupunginosa
Hervanta
Kaupunki
Tampere

Kun vuokraat tämän kodin, sopimus on toistaiseksi voimassa oleva vuokrasopimus, jossa minimiasumisaika on vain 6 kk.

When you rent this home, the contract is an open-ended lease with a minimum stay of only 6 months.


Vuokrataan kiva kaksio Hervannasta!

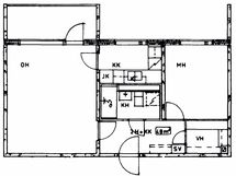
Tämän Lumo-kodin pohjaratkaisu palvelee montaa erilaista kodin etsijää. Olet sitten tilaa arvostava sinkku, yhteistä pesää rakentava pariskunta tai etsit asuntoa kämppiksen kanssa, tämä saattaa olla etsimäsi ratkaisu.

Lisää tilaa asunnolle tuo lasitettu parveke, josta pääset nauttimaan aikaisesta keväästä pitkälle syksyyn. Laatoitetussa kylpyhuoneessa on liitännät pyykinpesukoneelle. Säilytystilaa on mukavasti reilun kokoisen vaatehuoneen ansiosta. Huoneiston lattiamateriaalina on laminaatti ja seinät maalipinnalla.

Vuokraa tämäkin koti verkkokaupastamme!

 

Fysiikanpolku 3
Kiinteistö on lähellä Suolijärven upeita ulkoilumaastoja sekä uimarantaa. Fysiikanpolun talot sijaitsevat mäen päällä ja niiden keskellä on kaunis luonnonmukainen sisäpiha. Talon piha-alue on kunnostettu vuonna 2019.

Lähikauppaan on muutama sata metriä. Yhteisinä tiloina ovat pesutupa, kuivaushuone, mankeli, sauna, sekä irtaimisto- ja ulkoiluvälinevarastot. Saunaosasto on uusittu vuonna 2017. Katto on uusittu ja porrashuoneiden ala-aulat on kunnostettu vuonna 2016.
Lumo-asukkaana saat enemmän
Lumo-vuokrakodit tarjoavat turvallista ja ympäristöystävällistä asumista sekä parhaat asumisen palvelut.
Saat Lumo-palvelut ja Lumo-asukkaan edut käyttöösi My Lumo -palvelun kautta. Tutustu tarkemmin: lumo.fi/palvelut

Vuokraa nyt!

Helposti paras Lumo-koti: vuokravakuus 0 €, nopea netti sisältyy vuokraan, lemmikit tervetulleita, monipuoliset asukasedut ja lisäpalvelut. Tee siitä omasi!

Vuokraa tämä koti

Perustiedot

Kaupunginosa
Hervanta
Kerros
5 / 6
Asuinpinta-ala
48 m²
Huoneiston kokoonpano
2H+KK
Huoneita
2
Kunto
Hyvä
Kunnon lisätiedot
Hyvä
Vapautuu
09.04.2026
Parveke
Kyllä
Asunnossa sauna
Ei
Asumistyyppi
Vuokra
Lemmikkieläimet sallittu
Kyllä
Palvelut
Lue lisää Lumo-palveluista: https://lumo.fi/palvelut/
Muut ehdot
Asunto on savuton. Tupakointi asunnossa ja parvekkeella/asuntopihalla on kielletty.
Lisätiedot
Lasitettu parveke, Vaatehuone, Lämmin irtainvarasto, Kylpyhuone + WC, Henkilölukuun perustuva vesimaksu, Savuton asunto, Vuokraan sisältyvä DNA laajakaista 50 Mbit/s

Hinta

Vuokra/kk
749 € / kk
Vuokra-aika
Toistaiseksi. Sopimuksen minimikesto 6kk

Muut maksut

Vesimaksu
27 € / kk
Vesimaksun lisätiedot
hlö/kk
Muut kustannukset
Autopaikka- ja talon saunamaksut peritään erillisen hinnaston mukaisesti.

Talon ja tontin tiedot

Uudiskohde
Ei
Taloyhtiön nimi
Fysiikanpolku 3
Rakennuksen tyyppi
Kerrostalo
Rakennusvuosi
1979
Kerroksia
6
Hissi
Kyllä
Taloyhtiössä on sauna
Kyllä
Energialuokka
E_2018
Energiatodistus
Kyllä
Lisätietoja talosta
Siirry talosivulle
Tontin omistus
Oma

Tilat ja materiaalit

Yhteiset tilat
Pesutupa, Kerhohuone, Talosauna