495 € / kk28 m²

Hallituskatu 31 A, KESKUSTA, Oulu1h,kk,kh

Vuokra/kk
495 € / kk
Asuinpinta-ala
28 m²
Huoneita
1
Kerros
2 / 1
Rakennusvuosi
1963
Rakennuksen tyyppi
Kerrostalo
Kaupunginosa
KESKUSTA
Kaupunki
Oulu

Hyväkuntoinen yksiö Keskustassa. Laminaattilattiat, seinät maalipinnoin, ikkunoissa sälekaihtimet. Keittokomerossa jää/pakastinkaappi, liesi ja liesituuletin. Kylpyhuoneessa paikka 45cm leveälle päältä täytettävälle pyykinpesukoneelle. Lemmikit on kielletty allergiasyistä. Vuokrasopimus vähintään vuodeksi - aiemmin irtisanottaessa kuukauden vuokraa vastaava summa hyvitettävä vuokranantajalle. Hakijalta edellytetään puhtaat luottotiedot.

Perustiedot

Sijainti
Hallituskatu 31 A, 90100 Oulu
Kaupunginosa
KESKUSTA
Kerros
2 / 1
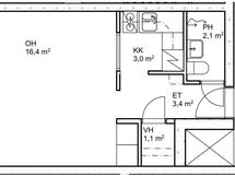
Asuinpinta-ala
28 m²
Huoneiston kokoonpano
1h,kk,kh
Huoneita
1
Kunto
Hyvä
Kunnon lisätiedot
Hyvä
Lisätietoa vapautumisesta
2026-04-01
Keittiön varusteet
Keittokomero.
Parveke
Ei
Tehdyt remontit
Ovipuhelinjärjestelmä uusittu, asuinhuoneistojen ikkunat vaihdettu, vesikatto peruskorjattu ja maalattu, julkisivujen rappauspinnat korjattu ja maalattu, IV-hormit puhdistettu, venttiilit uusittu, käyttövesijärjestelmä uusittu ja sähkörunkojohdot uusittu 1997. Antenniverkoston muutos 2005. Porraskäytävien ulko-ovien vaihto 2006. Parvekkeiden ja kattoterassin korjaus 2010. Viemäreiden kuntokartoitus 2011. Pohjaviemärit uusittu, muut viemärit sukitettu, piha uusittu, Molokit, pesulan kone uusittu (kotikäyttöön tarkoitettu kone) 2016. Vaihdettu vesimittarit 2017. Liikehuoneistojen takapihan ovet, laajakaista 2018. Ovipuhelinjärjestelmä uusittu 2019. Autohallin nosto-oven uusinta, tuuletusparvekeovien uusinta, vesimittarien tiivisteiden vaihto 2020. Liikehuoneistojen ikkunoiden ja ovien korjauksen suunnittelu 2021. Liikehuoneistojen ikkunoiden ja ovien korjaus, kattoterassin + B 38 korjaus, pesulan pyykkikone uusittu, L4 lattiakaivo uusittu + kellarin varastokopit uusittu 2022. Kattoterassin kaiteiden vahvistaminen, lämmönjakokeskuksen uusiminen ja räystäiden kuntotutkimus 2023. Uusittu rappujen valaisimet liiketunnistimille 2024.. Asunnon remontit: Edellisten asukkaiden toimesta mm. kylpyhuone remontoitu, keittiö remontontoitu ja keittiön koneet uusittu, makuuhuoneeseen asennettu liukuovi tilavan vaatekomeron suojaksi / eteen, lattiamaterialia vaihdettu laminaatiksi, seiniä maalattu.
Asumistyyppi
Vuokra

Hinta

Vuokra/kk
495 € / kk
Lisätietoa vakuudesta
Vakuus 250€

Muut maksut

Vesimaksun lisätiedot
Vesimaksu kulutuksen mukaan

Talon ja tontin tiedot

Uudiskohde
Ei
Taloyhtiön nimi
As Oy Oulun Hallituskatu 31
Rakennuksen tyyppi
Kerrostalo
Rakennusvuosi
1963
Kerroksia
1
Hissi
Kyllä
Energialuokka
E (2018)
Lämmitys
Kaukolämpö
Lisätietoja lämmityksestä
Kaukolämpö
Lisätietoja talosta
Siirry talosivulle