1 300 € / kk124 m²

Pajatie 3, Keskusta, Nousiainen4 h+k+s

Vuokra/kk
1 300 € / kk
Vapautuu
01.05.2026
Asuinpinta-ala
124 m²
Huoneita
4
Rakennusvuosi
2016
Rakennuksen tyyppi
Rivitalo
Kaupunginosa
Keskusta
Kaupunki
Nousiainen

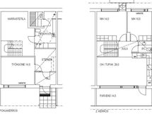
Isokokoinen huoneisto nyt vuokralla Nousiaisten keskussa. Huoneistossa on reilut tilat kahdessa tasossa, kolme makuuhuonetta, pihat molemmin puolin taloa ja lasitettu parveke. Sisääntulokerroksessa on yksi makuuhuone, oleskelu-/tv-huone, iso kylpyhuone ja sauna. Yläkerrassa on avara avokeittiö ja olohuone, wc ja kaksi makuuhuonetta. Autotallipaikka peräti kahdelle autolle, jossa leveys 5,1 metriä ja syvyys 7,2 metriä. Autotallin ovi on 4,5 metriä leveä ja varustettu kauko-ohjauksella. Vähintään vuoden mittainen sopimus, ei kotieläimiä. Nopea moottoritie vie Turkuun 15 minuutissa.

Varaa esittely Tero Ahtinen p. 0500 786496 tai tero.ahtinen@ahtinen.com

Perustiedot

Sijainti
Pajatie 3, 21270 Nousiainen
Kaupunginosa
Keskusta
Kohdenumero
69496614
Asuinpinta-ala
124 m²
Kokonaispinta-ala
124 m²
Huoneiston kokoonpano
4 h+k+s
Huoneita
4
Kunto
Hyvä
Vapautuu
01.05.2026
Lisätietoa vapautumisesta
1.5.2026.
Parveke
Kyllä
Parvekkeen lisätiedot
Lasitettu parveke. Parvekkeen ilmansuunta: Etelä. Isolta parvekkeelta avarat näkymät yli Nousiaisten keskustan.
Asunnossa sauna
Kyllä
Asumistyyppi
Vuokra
Lemmikkieläimet sallittu
Ei
Palvelut
Nousiaisten keskustan palvelut lähellä
Ala-aste, ylä-aste ja lukio lähellä
Päiväkoti lähellä
Lisätiedot
Tupakointi kielletty
Postitoimipaikka
Nousiainen
TV-palvelut
Kaapeli-TV

Hinta

Vuokra/kk
1 300 € / kk
Lisätietoa vakuudesta
Vakuuden antaja: vuokralainen 2 kk:n vuokraa vastaava määrä
Vuokra-aika
Toistaiseksi

Muut maksut

Muut kustannukset
Sähkö ja vesi oman kulutuksen mukaan.

Talon ja tontin tiedot

Uudiskohde
Ei
Taloyhtiön nimi
Asunto Oy Nousiaisten Nummenmäki
Rakennuksen tyyppi
Rivitalo
Rakennusvuosi
2016
Rakennuksen käyttöönottovuosi
2016
Energialuokka
B2018
Ilmastointijärjestelmä
Lämmöntalteenotto, Koneellinen tulo
Kiinteistönhoito
Huoltoyhtiö
Isännöinti
Mynämäen Isännöintipalvelu
Lämmitys
Kaukolämpö
Lisätietoja lämmityksestä
Lämmitystapa: Kaukolämpö. Lämmönjakotapa: Vesikiertoinen lattialämmitys
Lisätietoja talosta
Siirry talosivulle