899 € / kk50 m²

Viulutie 1 A, Kannelmäki, Helsinki2h+kk

Vuokra/kk
899 € / kk
Asuinpinta-ala
50 m²
Huoneita
2
Kerros
2 / 4
Rakennusvuosi
1977
Rakennuksen tyyppi
Kerrostalo
Kaupunginosa
Kannelmäki
Kaupunki
Helsinki

Maaliskuu 0 € Vuokraa tämä SATOkoti ja maaliskuun 2026 vuokra on 0€. Kampanja on voimassa 26.1. - 28.2.2026 ja se koskee uusia sopimuksia SATOkoteihin, joiden sivulla kampanjasta on erikseen mainittu. Kampanjakoteihin voit tehdä toistaiseksi voimassa olevan vuokrasopimuksen, jonka vähimmäiskesto on 12 kuukautta. Vesimaksu laskutetaan normaalisti.

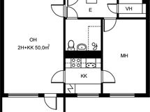
Parvekkeellinen kaksio Kannelmäessä Valoisa vuokrakoti perinteisessä kerrostalossa Valoisa kaksiossa on parveke, joka tuo mukavasti lisätilaa ja mahdollisuuden nauttia vaikka aamukahvit raittiissa ulkoilmassa.

Keittiö on toimivapohjainen ja sinne pääsee sekä makuuhuoneesta että olohuoneesta. Tämä asunto sopii hyvin siis kimppakämpäksi.

Talon vehreällä pihalla on runsaasti oleskelutilaa. Tervetuloa tutustumaan tarkemmin paikan päälle!

Vuokraa huoleton SATOkoti

Vakuus 0€, lemmikit tervetulleita, netti sisältyy vuokraan ja talomestari apunasi.

Vuokraa nyt

Perustiedot

Sijainti
Viulutie 1 A, 00420 Helsinki
Kaupunginosa
Kannelmäki
Kerros
2 / 4
Asuinpinta-ala
50 m²
Huoneiston kokoonpano
2h+kk
Huoneita
2
Lisätietoa vapautumisesta
HETI
Parveke
Kyllä
Parvekkeen lisätiedot
Parveke
Asunnossa sauna
Ei
Asumistyyppi
Vuokra
Vuokralaistyyppi
Päävuokralainen
Lemmikkieläimet sallittu
Kyllä
Muut ehdot
Lemmikit sallittu

Hinta

Vuokra/kk
899 € / kk
Lisätietoa vakuudesta
Asunnon vakuus 0 € (yrityksille vähintään 1 kk:n vuokra)

Muut maksut

Vesimaksu
27 € / kk
Vesimaksun lisätiedot
Kuukaudessa henkilöä kohti

Talon ja tontin tiedot

Uudiskohde
Ei
Taloyhtiön nimi
Kiinteistö Oy Helsingin Viulutie 1
Rakennuksen tyyppi
Kerrostalo
Rakennusvuosi
1977
Rakennusvuoden lisätiedot
1977
Huoneistojen lukumäärä
50
Kerroksia
4
Hissi
Ei
Taloyhtiössä on sauna
Kyllä
Kattotyyppi
Tasakatto
Energialuokka
F
Alueen kuvaus
Kannelmäki on monipuolinen asuinalue vehreässä ympäristössä. Kauppakeskus Kaari tarjoaa kattavan valikoiman päivittäistavara- ja erikoisliikkeitä sekä kahvila ja ravintolapalveluita. Lapsiperheiden iloksi Kannelmäessä on useita päiväkoteja ja kaksi ala-astetta. Yläaste löytyy Kaarelan puolelta. Lähistöllä on myös reippailijoille monipuoliset ulkoilumahdollisuudet ja Länsi-Helsingin kulttuurikeskus, Kanneltalo, tarjoaa kulttuurinnälkäisille tapahtumia ympäri vuoden.
Lisätietoja talosta
Siirry talosivulle
Tontin omistus
Vuokralla

Tilat ja materiaalit

Yhteiset tilat
Piha-alue, Irtaimistovarasto, Ulkoiluvälinevarasto, Sauna, Väestönsuoja, Kuivaushuone, Pesutupa, Jätepiste, Pukuhuone, Pesuhuone