1 350 € / kk88 m²

Malmin kauppatie 4 a, Malmi, Helsinki4H+K+S

Vuokra/kk
1 350 € / kk
Asuinpinta-ala
88 m²
Huoneita
4
Kerros
1 / 4
Rakennusvuosi
2001
Rakennuksen tyyppi
Kerrostalo
Kaupunginosa
Malmi
Kaupunki
Helsinki

Parvekkeellinen perheasunto puistomaisemin Malmilta!

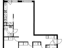
Tästä asunnosta löytyy kolme tilavaa makuuhuonetta, hyvän kokoinen olohuone-keittiö, erillinen wc-tila sekä saunallinen kylpyhuone. Asunto sijaitsee 1. kerroksessa, mutta ei maan tasalla. Lapsiperhearjen mukavuutena makuuhuoneiden ikkunoista näkee suoraan taloyhtiön leikkipihalle. Asunnon parveke on lasitettu ja hyvän kokoinen.

Malmilta löytyy kaikki - erinomaiset kulkuyhteydet moneen suuntaan ja toimivat päivittäispalvelut.

Ota yhteyttä niin varataan sinulle sopiva esittelyaika. Lähetä hakemus sivuiltamme www.asuntosaatio.fi. Asuntoa tarjotaan myös vuokralle.

Malmin keskustassa sijaitseva viihtyisä kerrostalokohde, jossa arki toimii. Asukkaiden käytössä on maksuton talopesula viereisessä rakennuksessa. Varattavissa myös kerhohuone esimerkiksi perhejuhliin. Kaikissa asunnoissa on oma sauna. Sisäpiha on kunnostettu ja siellä on mm. koripalloteline ja yhteiskäyttögrilli. Kohteessa on autotallipaikkoja sekä autohalli. Lähellä myös yhteispaikoitusalue sekä maksuttomia kadunvarsipaikkoja lyhytaikaiseen parkkeeraukseen.

Lähellä mm. Pukinmäen urheilupuisto sekä radan toisella puolella Longinojan varren ulkoilualueet. Vieressä Malmin juna-asema, josta pääsee nopeasti niin Helsingin keskustaan kuin Vantaan suuntaankin. Ruokaostokset pääsee hoitamaan aseman yhteydessä olevissa isoissa marketeissa. Alueella on koulut ammattikorkeakouluun saakka.

Tupakointi asunnoissamme: Kaikki uudet asuinkiinteistömme ovat olleet jo pitkään täysin savuttomia heti valmistumisestaan lähtien. Muutumme vähitellen savuttomiksi kaikkien asuntojemme osalta: uusien asukkaiden sopimukset kieltävät tupakoinnin huoneistoissa ja parvekkeilla 1.1.2021 alkaen. Kiinteistö ei ole välttämättä savuton muiden huoneistojen osalta, koska niissä voi olla vanhoja sopimuksia, joissa ei ole tupakointikieltoa.

Perustiedot

Kaupunginosa
Malmi
Kerros
1 / 4
Asuinpinta-ala
88 m²
Huoneiston kokoonpano
4H+K+S
Huoneita
4
Kunto
Hyvä
Lisätietoa vapautumisesta
heti vapaa
Parveke
Kyllä
Asunnossa sauna
Kyllä
Asumistyyppi
Vuokra
Lisätiedot
Tupakointi sallittu: Ei.

Hinta

Vuokra/kk
1 350 € / kk
Lisätietoa vakuudesta
1350

Muut maksut

Vesimaksu
25 € / kk

Talon ja tontin tiedot

Taloyhtiön nimi
Malmin Kauppatie 4 A
Rakennuksen tyyppi
Kerrostalo
Rakennusvuosi
2001
Rakennusvuoden lisätiedot
2001
Kerroksia
4
Hissi
Kyllä
Taloyhtiössä on sauna
Ei
Rakennusmateriaali
Betoni
Energialuokka
E
Energiatodistus
Kyllä
Kiinteistönhoito
Kotikatu Oy, Helsinki-Vantaa
Isännöinti
Asuntosäätiö - Isännöinti
Lämmitys
Kaukolämpö
Lisätietoja lämmityksestä
Kauko
Lisätietoja talosta
Siirry talosivulle