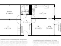
1 090 € / kk76,5 m²

Maininkitie 16 D, Kivenlahti, Espoo3 h + k+ kph+ et

Vuokra/kk
1 090 € / kk
Asuinpinta-ala
76,5 m²
Huoneita
3
Kerros
1 / 4
Rakennusvuosi
1972
Rakennuksen tyyppi
Kerrostalo
Kaupunginosa
Kivenlahti
Kaupunki
Espoo

Tyylikäs ensimmäisen kerroksen (ei maan tasossa) oleva asunto

Asunnon pohjaratkaisu antaa asunnolle avaran ja erittäin valoisan kokonaisuuden.

Tilava olohuone sijaitsee keittiön vieressä, jossa on reilusti kaapistoja sekä laskutilaa. Ruokapöydällä on oma paikkansa ruokailutilassa ison ikkunan alla, sekä kulku lasitetulle parvekkeelle.

Asunnossa on mukava kylpyhuone. Kylpyhuone on uusittu linjasaneerauksen yhteydessä. Asunnossa on erityisesti huomioitu säilytysjärjestelmät. Eteisessä ja makuuhuoneissa on paljon kaappitilaa.

Taloyhtiö seisoo omalla tontilla ja isoista remonteista linjasaneeraus on jo tehty.

Taloyhtiön sijainti on loistava. Vain kävelymatkan päässä kauppakeskus pikkulaivasta, päiväkodista sekä koulusta. Alueella viehättävät lenkkimaisemat luonnossa sekä merenrannassa. Liikuntamahdollisuuksia alue tarjoaa monen tarpeisiin. mm. kuntosali, uimahalli urheilukenttä. Taloyhtiössä ei ole hissiä.

Asunnolta erittäin hyvät kulkuyhteydet, noin 120m päästä bussit (165, 165N, 164A) Ison Omenaan (M) sekä Kamppiin. Tämän lisäksi 600m päästä bussit mm. Leppävaaraan, Isoon Omenaan (M), Tapiolaan (M) ja Espoon keskukseen.

Perustiedot

Sijainti
Maininkitie 16 D, 02320 Espoo
Kaupunginosa
Kivenlahti
Kohdenumero
80491670
Kerros
1 / 4
Asuinpinta-ala
76,5 m²
Kokonaispinta-ala
76,5 m²
Pinta-alojen lisätiedot
Pinta-alan peruste: Isännöitsijäntodistuksen mukainen
Huoneiston kokoonpano
3 h + k+ kph+ et
Huoneita
3
Kunto
Tyydyttävä
Lisätietoa vapautumisesta
01.05.2026.
Keittiön varusteet
VARUSTUS: Kaapisto, Astianpesukone, Allas, Hana, Sähköliesi, Uuni, Jääkaappi
LATTIA: Parketti, maali
SEINÄT:
Parveke
Kyllä
Parvekkeen lisätiedot
Parvekkeen tyyppi: Lasitettu
Kylpyhuoneen varusteet
Pesutilojen kuvaus: VARUSTUS: Suihku, Suihkuseinä, Wc istuin, Pyykinepesukoneliitäntä, Allas, Hana, Kuivauspatteri, Kaapisto, Pyykinpesukone
LATTIA: Laatta
SEINÄT: Laatta.
Vuokrataan kalustettuna
Ei
Säilytystilat
Lisätietoja säilytystiloista: Eteinen
VARUSTUS: Kaapistot, naulakko
LATTIA: Parketti
SEINÄT: Maali
Tulevat remontit
Kunnossapitotarve seuraavien viiden vuoden aikana: - Pihan ylläpitotyöt - Sokkelihalkeamat injektointi - Parvekkeiden kaiteiden kunnostus - ikkunoiden huoltotoimet, kartoitus ja puutekorjaukset 2026 - Lämmityjärjestelmän tasapainotus - huoneistosähköistykset
Tehdyt remontit
2024: pihakalusteet, porrashuoneet maalaus, sisäänkäyntien kunnostus. 2022-2023: VSS tilojen tarkastus. Vesikatteiden korjaussuunnittelu ja peruskunnostus. 2021: Porrasvalaistukset, elementtisaumat, lukitusjärjestelmä. 2017-2018: Sähköjärjestelmien peruskunnostus linjasaneerauksen yhteydessä huoneistosulaketauluun asti. Märkätilojen sähköistys uusittu ja huoneistoihin asennettu valokuitukaapeli huoneistokeskukseen asti, ilmanvaihtojärjestelmän peruskunnostus, vesi- ja viemärijärjestelmän peruskunnostus, lämmitysjärjestelmän venttiilien kunnostus ja järjestelmän tasapainotus, saunatilojen ja kylmähuonetilojen korjaus/muutostyöt, alapohjan tuuletus linjasaneerauksen yhteydessä v.2017-2018- 2016-2017: toteutussuunnittelu asiantuntijan avulla LVVIAS- peruskorjausta varten. 2015: IV-kanavien puhdistus ja ilmamäärien säätö, linjasaneerauksen hankesuunnittelu OPTIPLAN Oy. 2014: Piha-alueiden pihasuunnitelman päivitys ja työtapaselosteen laatiminen pihasuunnittelijan avulla yhdessä naapuriyhtiöiden kanssa, C-portaan maapohjakellarin ulko-oven uusinta, A ja B portaiden edessä asfalttiväylän kunnostus. 2012: kiinteistön lämpöliittymän ja käyttövesiliittymän uusinta, LV- runkoputkien uusinta alapohjarakenteissa ja lämmönavaihtimen uusinta.
Asumistyyppi
Vuokra
Vuokralaistyyppi
Päävuokralainen
Lemmikkieläimet sallittu
Kyllä
Lisätietoa lemmikeistä
Lemmikit neuvoteltavissa
Määräaikainen vuokrakohde
Ei
Palvelut
Alepa Kivenlahti ja K-Market Kivenlahti n. 700m, Lidl Pikkulaiva ja K-Supermarket Seilori n. 800m, R-kioski n. 130m.
Muut ehdot
Tupakointi sallittu: Ei. Sähkösopimus: Vuokralainen solmii oman sopimuksen energialaitoksen kanssa. Jälleenvuokraus: Ei sallittu. Vuokralaisen vastuu kotivakuutuksesta: Laaja. Sopimusrikkomuksen sakkokuukausien määrä: 1 kk.
Postitoimipaikka
Espoo
Tietoliikennepalvelut
Elisa, 10M

Hinta

Vuokra/kk
1 090 € / kk
Lisätietoa vakuudesta
1 kuukauden vuokraa vastaava. Vakuus maksettava viimeistään Ennen avainten luovutusta
Vuokrankorotusperusteet
Vuokran korotusperuste: 3 % / vuosi
Vuokra-aika
Vuokrasopimus on toistaiseksi voimassa oleva, ja irtisanottavissa aikaisintaan 11 kuukauden kuluttua vuokrasopimuksen alkamisesta

Muut maksut

Saunan kustannukset
15 € / kk
Vesimaksun lisätiedot
Veden käytöstä veloitetaan kulutuksen mukaan. Vesimaksuennakko on 20 € / hlö / kk.

Talon ja tontin tiedot

Uudiskohde
Ei
Taloyhtiön nimi
As Oy Satoriutta
Rakennuksen tyyppi
Kerrostalo
Rakennusvuosi
1972
Kerroksia
4
Taloyhtiössä on sauna
Kyllä
Energialuokka
D2018
Energiatodistus
Kyllä
Ilmastointijärjestelmä
Koneellinen ilmanvaihto
Kiinteistön antennijärjestelmä
Kaapeli-TV
Kiinteistönhoito
Huoltoyhtiö
Isännöinti
Kiinteistöpalvelu Talovarma, Pertti Burgman, posti@talovarma.fi, 09 256 2024
Liikenneyhteydet
Asunnolta erittäin hyvät kulkuyhteydet, noin 120m päästä bussit (165, 165N, 164A) Ison Omenaan (M) sekä Kamppiin. Tämän lisäksi 600m päästä bussit mm. Leppävaaraan, Isoon Omenaan (M), Tapiolaan (M) ja Espoon keskukseen.
Lämmitys
Kaukolämpö
Lisätietoja lämmityksestä
Kaukolämpö
Lisätietoja talosta
Siirry talosivulle

Tilat ja materiaalit

Pysäköintitilan kuvaus
Taloyhtiön autopaikat: Autokatosvuokrat 30,00 €/kk Autopaikkavuokrat 25.00 €/kk
Yhteiset tilat
Urheiluvälinevarasto ja kellarikomero
Lisätietoja makuuhuoneen varusteista
Makuuhuone 1. VARUSTUS: Kaapistot LATTIA: Parketti SEINÄT: Maali Makuuhuone 2. LATTIA: Parketti SEINÄT: Maali
Olohuoneen varusteet
LATTIA: Parketti SEINÄT: Maali