1 390 € / kk72 m²

Matinkatu 8 E, Matinkylä, Espoo3h+k

Vuokra/kk
1 390 € / kk
Vapautuu
Heti vapaa
Asuinpinta-ala
72 m²
Huoneita
3
Kerros
3
Rakennusvuosi
1970
Rakennuksen tyyppi
Kerrostalo
Kaupunginosa
Matinkylä
Kaupunki
Espoo

Erinomaisella sijainnilla Espoon Matinkylässä aivan palveluiden kupeessa tilava kolmio jossa toimiva pohjaratkaisu. Asunnossa vaaleat pintamateriaalit ja tasokkaissa Puustellin keittiöissä on astianpesukone ja keraaminen liesi. Eteisen yhteydessä olevat kaapistot lisäävät säilytystilaa mukavasti ja molemmista makuuhuoneista löytyy lisää kaapistoja. Laatoitetussa kylpyhuoneessa on mukavuuslattialämmitys sekä liitäntä pyykinpesukoneelle.

Asunnossa on huoneistokohtainen koneellinen ilmanvaihto joka on liitetty huoneiston sähköön. Lemmikit tervetulleita ja autopaikkoja vuokrattavissa erikseen!

Kiinnostuitko? Tämänkin kodin voit vuokrata verkkokaupastamme tai jättää hakemuksen asuntoilmoitukselta verkkosivuillamme. Asunnonhakuun liittyvissä kysymyksissä voitte olla yhteydessä asiakaspalveluumme, puh. 030 609 5555 tai asuntovuokraus@inna.fi

Espoon Matinkylässä sijaitseva Asunto Oy Espoon Matinkatu 8 tarjoaa viihtyisää asumista erinomaisten kulkuyhteyksien varrella. Nämä kauniisti peruskorjatut asunnot yhdistävät tyylikkään asumisen, erinomaiset ulkoilumahdollisuudet ja sujuvat liikenneyhteydet.

Laajamittainen saneeraus on valmistunut vuonna 2016, joten asunnot ovat siistejä ja moderneja. Jokainen asunto on varusteltu astianpesukoneella ja keraamisella liedellä. Mosaiikkilaattavälitila ja harmaa laminaattilattia luovat modernin ja kotoisan tunnelman. Taloyhtiössä on viihtyisät yhteiset saunatilat, jotka tarjoavat asukkaille rentoutumismahdollisuuden. Jokaiselle huoneistolle on irtainvarasto.

Merellinen Matinkylä tarjoaa upeita ulkoilumahdollisuuksia ja lyhyen matkan meren rannalle. Kauppakeskus Iso Omena monipuolisine liikkeineen ja palveluineen on kävelyetäisyydellä. Metroasema on kävelyetäisyydellä, mikä tarjoaa sujuvat liikenneyhteydet. Koulu sijaitsee kivenheiton päässä. Urheilusta nauttiville aivan vieressä sijaitseva Matinkylän urheilupuisto tarjoaa erinomaiset puitteet liikunnan harrastamiselle.

Asunnoissa on huoneistokohtainen koneellinen ilmanvaihto, jonka sähkönkulutuksesta vuokralainen vastaa.

Vesimaksu 20€/hlö/kk. Vuokravakuus 350€. Parveketupakointi on kielletty uusissa vuokrasopimuksissa vuodesta 2021 alkaen. Lemmikit ovat tervetulleita.

Vuokraa verkosta

Vuokraa tämäkin koti helposti verkosta 24/7

Vuokraa tästä

Perustiedot

Sijainti
Matinkatu 8 E, 02230 Espoo
Kaupunginosa
Matinkylä
Kerros
3
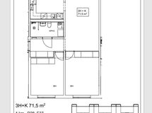
Asuinpinta-ala
72 m²
Huoneiston kokoonpano
3h+k
Huoneita
3
Vapautuu
Heti vapaa
Keittiön varusteet
Astianpesukone, Liesi, Lieden tyyppi: Keraaminen liesi, Kylmäkalusteet: Jää-pakastinkaappi
Parveke
Kyllä
Kylpyhuoneen varusteet
Peilikaappi, Pesukoneliitäntä, Lattialämmitys, Lattialämmityksen lisätieto: mukavuuslämmitys asunnon sähköstä
Säilytystilat
Huoneistokohtainen varasto, Varaston selite: irtaimistovarasto
Asunnossa sauna
Ei
Asumistyyppi
Vuokra
Vuokralaistyyppi
Päävuokralainen
Määräaikainen vuokrakohde
Ei
Muut ehdot
Tupakointi kielletty
Postitoimipaikka
Espoo
Tietoliikennepalvelut
DNA laajakaista

Hinta

Vuokra/kk
1 390 € / kk
Vakuus
350 €
Lisätietoa vakuudesta
Toistaiseksi voimassaoleva sopimus

Muut maksut

Vesimaksun lisätiedot
20.00 €/hlö/kk

Talon ja tontin tiedot

Uudiskohde
Ei
Taloyhtiön nimi
Matinkatu 8 - Asunto Oy Espoon Matinkatu 8
Rakennuksen tyyppi
Kerrostalo
Rakennusvuosi
1970
Hissi
Kyllä
Taloyhtiössä on sauna
Kyllä
Lisätietoja talosta
Siirry talosivulle

Tilat ja materiaalit

Yhteiset tilat
Sauna, Kuivaushuone, Ulkoiluvälinevarasto
Pintamateriaalit
Laminaatti
Kylpyhuoneen lattia
Laatta
Kylpyhuoneen seinät
Laatta