2 000 € / kk95,5 m²

Koivuviita 7, Pohjois-Tapiola, Espoo4h+k+s

Vuokra/kk
2 000 € / kk
Asuinpinta-ala
95,5 m²
Huoneita
4
Kerroksia
2
Rakennusvuosi
1995
Rakennuksen tyyppi
Rivitalo
Kaupunginosa
Pohjois-Tapiola
Kaupunki
Espoo

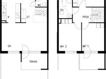
Vuokrataan rauhallisen rivitaloyhtiön kaksikerroksinen perheasunto omalla pihalla, pidetyltä alueelta Pohjois-Tapiolassa. Sisääntulokerroksen keittiössä on reilusti kaappi- ja työskentelytilaa sekä paikka ruokailuryhmälle ikkunan äärestä. Valoisasta olohuoneesta on kulku terassille ja takapihalle. Makuuhuoneet sijaitsevat yläkerran omassa rauhassa, ja yhdelle makuuhuoneelle kuuluu myös oma parvekkeensa. Yläkerran tilavan kylpyhuoneen saunan lämmöistä nautit koska haluat. Perhearkea sujuvoittamassa on alakerrassa erillis-wc ja kodinhoitohuone. Vuokraan sisältyy 50 Mbit/s internetyhteys.

Kiinteistö on savuton. Savuttomuus tarkoittaa, että tupakointi on kielletty koko kiinteistössä, sen huoneistoissa, parvekkeilla, piha-alueilla ja yhteisissä tiloissa.

Perustiedot

Sijainti
Koivuviita 7, 02130 Espoo
Kaupunginosa
Pohjois-Tapiola
Kerroksien lukumäärä
2
Asuinpinta-ala
95,5 m²
Kokonaispinta-ala
95,5 m²
Huoneiston kokoonpano
4h+k+s
Huoneita
4
Lisätietoa vapautumisesta
Heti vapaa
Parveke
Kyllä
Vuokrataan kalustettuna
Ei
Asunnossa sauna
Kyllä
Asumistyyppi
Vuokra
Vuokralaistyyppi
Päävuokralainen
Lemmikkieläimet sallittu
Kyllä
Postitoimipaikka
ESPOO

Hinta

Vuokra/kk
2 000 € / kk
Vakuus
4 000 €

Muut maksut

Vesimaksun lisätiedot
Vesimaksu 21,00 €/kk/hlö

Talon ja tontin tiedot

Uudiskohde
Ei
Rakennuksen tyyppi
Rivitalo
Rakennusvuosi
1995
Kerroksia
2
Taloyhtiössä on sauna
Ei
Lämmitys
Kaukolämpö
Lisätietoja lämmityksestä
Kaukolämpö
Lisätietoja talosta
Siirry talosivulle