749 € / kk30 m²

Peijinkuja 10 A, Finnoo, Espoo1h+kt+alk

Vuokra/kk
749 € / kk
Asuinpinta-ala
30 m²
Huoneita
1
Rakennusvuosi
2024
Rakennuksen tyyppi
Kerrostalo
Kaupunginosa
Finnoo
Kaupunki
Espoo

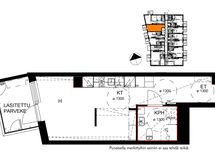
Finnoon metro ja palvelut kävelyetäisyydellä Persoonallinen yksiö, jossa kaikelle on paikkansa Moneen taipuvassa tehoyksiössä on tehokas ja toimiva pohja. Pikkukodin ajattoman neutraalit värivalinnat tarjoavat mainion perustan oman tyylisi ilmaisuun. Keittiö on sopivasti hieman sivussa olohuoneesta, joten voit kalustaa huoneen monella tapaa. Makuusopen erottaa olohuoneesta pieni seinäke. Kesäaikaan voit jatkaa oleskelutilaa länteen avautuvalle, lasitetulle parvekkeelle. Säilytyskomeroita on sekä eteisessä että makuunurkkauksessa. Hyvin varustellussa keittiössä on ilo kokkailla: astianpesukone hoitaa tiskit ja keraaminen liesi on helppo pitää puhtaana. Mikroaaltouunillekin on paikka valmiina. Raikkaan kylpyhuoneen seinät ovat valkoista ja lattia harmaata keraamista laattaa. Tilaa on rentoutumisen lisäksi myös vaatehuollolle. Heti oven vieressä on paikka pyykinpesukoneelle ja kuivausrummulle, kätevä pyykkikaappi taas helpottaa pyykkien lajittelua ja säilytystä. Tule näytölle tutustumaan! Olisiko tässä uusi elämäsi vuokrakoti?

Vuokraa huoleton SATOkoti

Vakuus 0€, lemmikit tervetulleita, netti sisältyy vuokraan ja talomestari apunasi.

Vuokraa nyt

Perustiedot

Sijainti
Peijinkuja 10 A, 02270 Espoo
Kaupunginosa
Finnoo
Kerroksien lukumäärä
13
Asuinpinta-ala
30 m²
Huoneiston kokoonpano
1h+kt+alk
Huoneita
1
Kunto
Uusi
Lisätietoa vapautumisesta
Vapaa 16.02.2026
Parveke
Kyllä
Parvekkeen lisätiedot
Lasitettu parveke
Asunnossa sauna
Ei
Asumistyyppi
Vuokra
Vuokralaistyyppi
Päävuokralainen
Lemmikkieläimet sallittu
Kyllä
Muut ehdot
Tupakointi on kielletty. Lemmikit sallittu

Hinta

Vuokra/kk
749 € / kk
Lisätietoa vakuudesta
Asunnon vakuus 0 € (yrityksille vähintään 1 kk:n vuokra)

Muut maksut

Vesimaksun lisätiedot
Kulutuksen mukaan

Talon ja tontin tiedot

Uudiskohde
Ei
Taloyhtiön nimi
Peijinkuja 10
Rakennuksen tyyppi
Kerrostalo
Rakennusvuosi
2024
Rakennusvuoden lisätiedot
2024
Huoneistojen lukumäärä
121
Kerroksia
13
Hissi
Kyllä
Taloyhtiössä on sauna
Kyllä
Energialuokka
A
Lisätietoja talosta
Siirry talosivulle
Tontin omistus
Vuokralla

Tilat ja materiaalit

Yhteiset tilat
Pesuhuone, Pukuhuone, Sauna, Kerhohuone, Piha-alue, Kuivaushuone, Pesutupa, Polkupyörävarasto, Lastenvaunuvarasto, Irtaimistovarasto, Irtaimistovarasto/Väestönsuoja, Jätepiste, Ulkoiluvälinevarasto
Ominaisuudet
Lattiat ovat vaalean tammen väristä laminaattia ja jalkalistat valkoiset. Seinät on maalattu valkoisiksi ja ikkunoissa on valkoiset sälekaihtimet ja edessä on kaksiuraiset verhokiskot. Vaatekomeroiden ovet ovat valkoisia. Keittiökaapit ovat valkoisia mikrolaminaattiovia ja työtason ja välitilan komposiittisisustuslevy harjatun kuparin värisiä. Keittiöissä on 50 tai 60 cm leveä keraaminen liesi, 45 tai 60-centtinen astianpesukone, jääkaappi-pakastin tai jääkaappi ja erillinen pakastin, liesikupu sekä kalusteissa varaus mikroaaltouunille. Kodinkoneet ovat valkoisia. Kylpyhuoneet on laatoitettu: lattia mattaharmaata 10x10 laattaa ja seinät valkoista 20x40 kiiltävää laattaa. Märkätilojen katot ovat valkoiseksi maalattua tervaleppää. Kylpyhuoneen kaapit ovat kotimaisia Kide-kylpyhuonekalusteita. Kylpyhuoneessa on paikka ja liitännät pyykinpesukoneelle ja kuivausrummulle. Parvekkeiden lattiat ovat betonielementtejä. Parvekkeiden kaiteet ovat metallirunkoisia lasikaiteita, kaiteen yläpuolella avattavat parvekelasit. Parvekkeilla ja terasseilla on pistorasia ja tuuletusteline. Asunnoissa on keskitetty koneellinen ilmanvaihto. Rakennuksessa on puheyhteydellä varustettu ovipuhelin ja iLOQ-lukitusjärjestelmä. Lämmityksenä on vesikiertoinen patterilämmitys, joka on liitetty kaukolämpöverkostoon. Kylpyhuoneiden ja saunojen laattalattioissa on vesikiertoinen lattialämmitys. Väestönsuoja/irtaimistovarastot, ulkoiluvälinevarastot ja lastenvaunuvarastot sijaitsevat rakennuksen 1. kerroksessa. Osa irtaimistovarastoista on sijoitettuna ylempiin kerroksiin käytävän varrelle. Kerhotila, talosaunat ja pesulat kuivaushuoneineen sijaitsevat rakennuksen 13. kerroksessa. Kerhotilalla on lasitettu parveke. Pihalla on istutuksia, polkupyöräpaikkoja, mattojen tomutusteline, lasten leikkipaikkoja ja oleskelualueita. Piha-alue on korttelin yhteiskäytössä Peijinkuja 6A:n ja 6B:n kanssa.