675 € / kk48 m²

Kalliopohjantie 1, Hyrylä2h + k + parveke/terassi

Vuokra/kk
675 € / kk
Vapautuu
01.05.2026
Asuinpinta-ala
48 m²
Huoneita
2
Kerros
4 / 6
Rakennusvuosi
1975
Rakennuksen tyyppi
Kerrostalo
Kaupunki
Hyrylä

Pintaremontoitu kaksio lasitetulla parvekkeella – Tuusula, Hyrylä / Mahlamäki

Huom: Remontoin juuri, joten tuoreita kuvia on tulossa!

Vuokrataan 47,5 m²:n asunto erinomaisella sijainnilla Tuusulan Hyrylän Mahlamäessä. Asunto sijaitsee 4. kerroksessa ja tarjoaa viihtyisää asumista rauhallisella alueella, vain 1 km Hyrylän keskustan palveluista (mm. pian avattava Prisma-keskus).

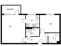
Asunnossa on selkeä pohjaratkaisu ja olohuoneesta käynti lasitetulle parvekkeelle. Tilava vaatehuone helpottaa arjen järjestelyä.

Taloyhtiön asukkaiden käytössä on mm. sauna, lämmin pyörävarasto, kerhohuone sekä runsas määrä autopaikkoja. Lisätilaa tuo häkkivarasto kellarissa.

Asunto sopii erinomaisesti esimerkiksi yksin asuvalle tai pariskunnalle, joka arvostaa hyviä palveluja ja kulkuyhteyksiä, mutta myös rauhallista asuinaluetta.

Vuokra: 675 €/kk Vesimaksu: 16 €/kk/hlö (Autopaikka 8 €/kk, saunamaksu 10 €/kk) Vapautuu arviolta: 1.5.2026

Huom! Taloyhtiössä on suunnitteilla putkiremontti n. vuoden päästä.

HUOM! Jätä asuntohakemus klikkaamalla Vuokraa tästä -painiketta. Hakemuksen jättäminen ei sido sinua, mutta mahdollistaa yhteydenoton vuokranantajaan!

Perustiedot

Kerros
4 / 6
Asuinpinta-ala
48 m²
Huoneiston kokoonpano
2h + k + parveke/terassi
Huoneita
2
Kunto
Hyvä
Vapautuu
01.05.2026
Lisätietoa vapautumisesta
2026-05-01 – Toistaiseksi voimassa
Keittiön varusteet
Jääkaappi, Pakastin, Uuni, Liesi, Mikro
Parveke
Kyllä
Kylpyhuoneen varusteet
Suihku, WC, Pyykkitupa
Säilytystilat
Pyöräsäilytys, Varastotila
Asumistyyppi
Vuokra
Lemmikkieläimet sallittu
Kyllä
Muut ehdot
Tupakointi kielletty

Hinta

Vuokra/kk
675 € / kk
Lisätietoa vakuudesta
Ei vakuutta, kun käytät Qasan vuokrasopimusta ja sinulla on moitteettomat luottotiedot.
Vuokra-aika
Toistaiseksi voimassa oleva

Muut maksut

Vesimaksu
16 € / kk
Vesimaksun lisätiedot
16 € / hlö / kk

Talon ja tontin tiedot

Rakennuksen tyyppi
Kerrostalo
Rakennusvuosi
1975
Kerroksia
6
Hissi
Kyllä
Taloyhtiössä on sauna
Kyllä